Ваш регион: Москва г
+
Объявления / Продажа / Жилая / квартира

Жилая квартира Академика Волгина ул, дом 2, квартира 422 в Москва г

1744294183900-69e6184b15806d1f58cab0123e06cc6c.sizes.svg@png
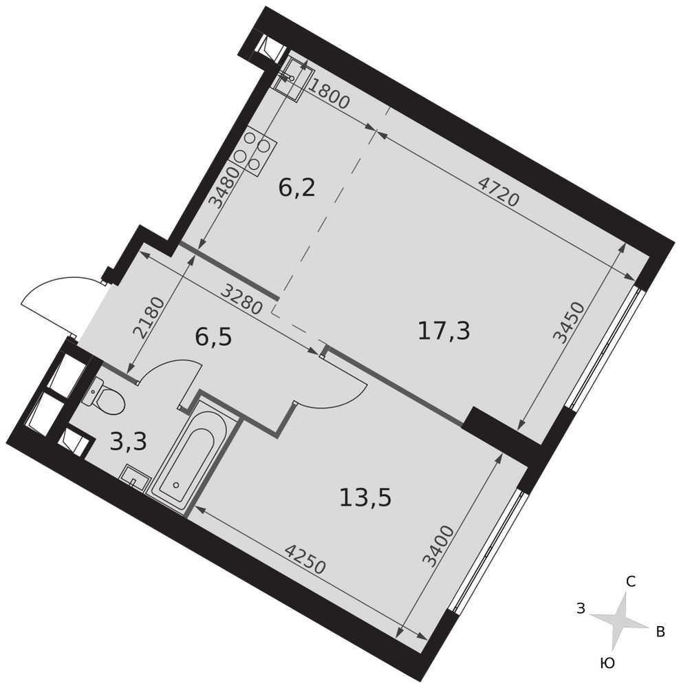
Планировка
1744294183900-69e6184b15806d1f58cab0123e06cc6c.sizes.svg@png
14 (+5 сегодня)
29 Декабря 2025
8 Января 2026
Обновлено:
28 457 114 ₽
46.8 кв. м
43 этаж
Изменение цены кратко
Изменение цены
Цена кв.м. по адресу для 2комн.кв.
Москва г, ул Академика Волгина, дом 2 , квартира 422
застройщик
Описание
Максимальная скидка при 100% оплате. Готовый дом! Прямая продажа от застройщика! Жилой Комплекс премиум-класса. Продаётся 2-к квартира №422 в сданном корпусе общей площадью 46.8 кв.м на 43-м этаже 47 этажного дома. Особенности: - Квартира доступна к покупке в Trade-In. - Просторная спальня, в которой можно разместить большую кровать. - Линейная планировка - максимальная функциональность и удобство. - Евроформат - просторное и удобное жилье с отличной планировкой. - Гибкая планировка - создайте пространство по своему вкусу. - Можно оборудовать рабочее место - комфорт для работы и учёбы. - Линейная кухня - функциональность и практичность в одном решении. - Возможность добавить спальное место - дополнительный комфорт для гостей. - Вид из окна: город - Идеальная планировка - Живите в квартире сейчас, платите потом - Лидер продаж - Двухуровневый двор без машин - Успей купить до отмены скидок - Скоро ключи! - Готовый премиум-класс - Премиум с панорамой на МГУ - Престижный юго-запад Москвы Расположение комплекса: Ощущение уютного дома должно начинаться с подъезда. Мы постарались предусмотреть все нюансы, чтобы наши лифты отвечали самым строгим современным требованиям. Вы всегда сможете увидеть, кто звонит в домофон. В каждой квартире подключен базовый пакет “Умная квартира” забудьте о беспокойстве о протечке; настройте свои сценарии управления техникой и электричеством; общайтесь с“Умной квартирой” голосом; Можете легко расширить “базовый пакет” и подключить дополнительные опции и устройства, чтобы из любой точки мира управляй работой бытовых приборов и систем. Наличие кладовых позволит вам поддерживать идеальный порядок и уют! Под башнями расположился трехуровневый паркинг на 670 машино-мест с прямым доступом из квартир любого подъезда. По периметру паркинга предусмотрена гостевая парковка на 30 мест. Транспортная доступность: До метро «Калужская» - 12 минут пешком, 14 минут (7 км) до ТТК, 9 минут (6 км) до МКАД, 18 минут (11 км) до Садового кольца. В шаговой доступности до Воронцовского парка Внутренняя инфраструктура: В ЖК продуманная, богатая инфраструктура из трех зон. В основной входной группе сконцентрированы все блага современного мегаполиса: супермаркет, ресторан, фитнес-клуб, аптеки, салоны красоты и кофейня. Под шумные детские игры отведен нижний уровень, мы предусмотрели игры как для самых маленьких, так и для деток постарше. Для досуга взрослых есть места для спорта, занятий йогой, шезлонги и деревянные террасы для отдыха.
Доступные ипотечные программы
Сбербанк
Ставка: 13.5%
Сумма: 300 тыс. ₽ - 100 млн. ₽
Первоначальный взнос: без взноса
Совкомбанк
Ставка: 13.24%
Сумма: 300 тыс. ₽ - 50 млн. ₽
Первоначальный взнос: без взноса
ВТБ
Ставка: 11.7%
Сумма: 500 тыс. ₽ - 60 млн. ₽
Первоначальный взнос: без взноса
Альфа-Банк
Ставка: 12.49%
Сумма: 600 тыс. ₽ - 70 млн. ₽
Первоначальный взнос: без взноса
Газпромбанк
Ставка: 12.8%
Сумма: 700 тыс. ₽ - 80 млн. ₽
Первоначальный взнос: без взноса
ФК Открытие
Ставка: 11.69%
Сумма: 500 тыс. ₽ - 60 млн. ₽
Первоначальный взнос: без взноса
Московский Кредитный Банк
Ставка: 15.9%
Сумма: 500 тыс. ₽ - 50 млн. ₽
Первоначальный взнос: без взноса
Уральский Банк реконструкции и развития
Ставка: 12.9%
Сумма: 300 тыс. ₽ - 30 млн. ₽
Первоначальный взнос: без взноса
Райффайзенбанк
Ставка: 12.89%
Сумма: 1.5 млн. ₽ - 40 млн. ₽
Первоначальный взнос: без взноса
МТС-Банк
Ставка: 12.4%
Сумма: 1 млн. ₽ - 50 млн. ₽
Первоначальный взнос: без взноса
ЮниКредит Банк
Ставка: 12%
Сумма: 1 млн. ₽ - 30 млн. ₽
Первоначальный взнос: без взноса
Посмотреть все доступные ипотечные программы
По закону «О рекламе» № 38-ФЗ мы обязаны указывать полную стоимость кредита (ПСК) — сумму ваших реальных расходов по кредиту включая ставку, страховку и стоимость других доп. услуг. Значения ПСК получены из открытых источников. Итоговая процентная ставка и ПСК будут указаны в кредитном договоре и рассчитываются индивидуально
Информация о здании
Новостройка
Да
 
Название ЖК
ЖК «Архитектор»
 
Год сдачи
2024
 
Тип дома
кирпично-монолитный
 
Корпус дома
3
 
Наличие лифта
Да
 
Закрытая территория
Да
 
Общее кол-во этажей
47
 
Стадия строительства дома
Сдан в эксплуатацию
 
Квартал сдачи
4
 
Серия дома
Индивидуальный проект
 
Высота потолков
3.15
 
Наличие мусоропровода
Нет
 
Наличие охраны
Да
 
Описание жилого помещения
Этаж
43
 
Покрытие пола
паркет
 
Наличие мебели
Нет
 
Общее количество комнат
2
 
Наличие системы кондиционирования
Да
 
Информация об объекте
Площадь
46.8 кв. м
 
Площадь кухни
6.2 кв. м
 
Жилая площадь
30.8 кв. м
 
Ремонт
чистовая отделка
 
Условия сделки
Вид сделки
первичная продажа
 
Цена
28457114 RUB
 
Ипотека
Да
 
Москва г, ул Академика Волгина
Цена кв.м. студии
Цена кв.м. 1 комн.кв
Цена кв.м. 2 комн.кв
Цена кв.м. 3 комн.кв
Цена кв.м. 4+ комн.кв
Рекомендованные ЖК

Реклама: adv@mapestate.ru

Редакция: info@mapestate.ru

О проекте

Контакты

Реклама на сайте

Правообладателям

X
Авторизуйтесь для этого действия
Нажимая на иконку социальной сети для регистрации или авторизации, я соглашаюсь с условиями использования сайта Mapestate.ru и подтверждаю, что ознакомился с политикой обработки персональных данных.