Ваш регион: Москва г
+
Объявления / Продажа / Жилая / квартира

Жилая квартира Михалковская ул, дом 48 в Москва г

voice3_6566b5df-bcd1-ef11-a5e5-00155d1f3e49_y.jpg?202512270651
Планировка
voice3_6566b5df-bcd1-ef11-a5e5-00155d1f3e49_y.jpg?202512270651
Объявление снято с публикации
13 (+1 сегодня)
6 Февраля 2026
6 Февраля 2026
Обновлено:
30 442 500 ₽
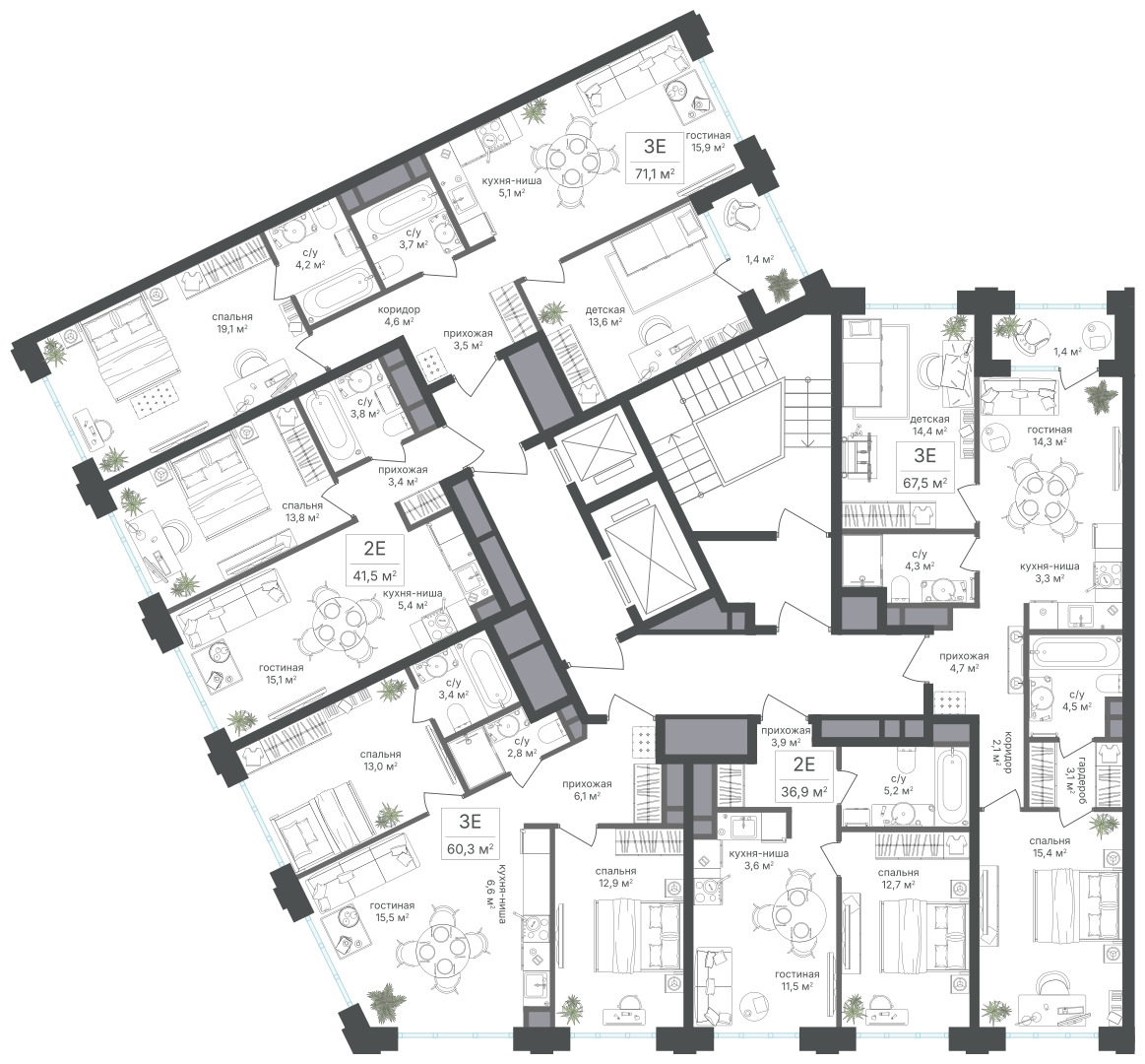
67.5 кв. м
7 этаж
Изменение цены кратко
Изменение цены
Цена кв.м. по адресу для 3комн.кв.
Москва г, ул Михалковская, дом 48
developer
Описание
Скидка 9% при покупке квартиры! Продаётся 3-к квартира 67,5 кв.м. в ЖК «Михалковский» на 7-м этаже 20 этажного дома. Компания «РГ-Девелопмент» предоставляет скидку на квартиры в жилом комплексе. Акция действительна до 15.02.2026 включительно. Для того чтобы воспользоваться предложением, необходимо подписать договор на приобретение недвижимости до 15.02.2026 включительно. Рассрочка 0% + Скидка 5%. При приобретении дольщиком квартиры в любом из двух данных корпусов с использованием способа оплаты "Рассрочка 0%", у покупателя также есть право воспользоваться скидкой в размере 5% от полной стоимости квартиры. Условия программы рассрочки: Первый платеж составляет 20% от стоимости объекта и вносится при заключении ДДУ. Второй платеж в размере 20% от стоимости объекта вносится по истечении 12 месяцев со дня подписания ДДУ. Оставшаяся сумма, в размере 60%, выплачивается за месяц до планового срока ввода ЖК в эксплуатацию, то есть не позднее 31.05.2027. Действует на приобретение квартир в корп. 2, 7 Действует программа «Растет семья - растет и квартира». Компания "РГ-Девелопмент" вошла в ТОП-10 девелоперов по объёму введённого жилья в "Старой Москве" по итогам 2025 года. Прямая продажа от застройщика! Квартиры без отделки. Срок сдачи – IV кв. 2027г. Особенности проекта: Завораживающие виды Красивое благоустройство Уникальная локация для Москвы (рядом Головинский парк, пруды, усадьба Михалково) Рядом с центром В проекте присутствует: архитектура голландского бюро MLA+, зеленые зоны, транспортная доступность, благоустроенная территория, подземный паркинг, детский сад и выход на Головинский парк с пятью прудами. Название комплекса указывает на одну из его черт - соседство с имением Михалково. Позвольте себе жить в месте, где проводили свой досуг династии Дашковых и Паниных.
Доступные ипотечные программы
Сбербанк
Ставка: 13.5%
Сумма: 300 тыс. ₽ - 100 млн. ₽
Первоначальный взнос: без взноса
Совкомбанк
Ставка: 12.24%
Сумма: 300 тыс. ₽ - 50 млн. ₽
Первоначальный взнос: без взноса
ВТБ
Ставка: 11.7%
Сумма: 500 тыс. ₽ - 60 млн. ₽
Первоначальный взнос: без взноса
Альфа-Банк
Ставка: 12.49%
Сумма: 600 тыс. ₽ - 70 млн. ₽
Первоначальный взнос: без взноса
Газпромбанк
Ставка: 12.8%
Сумма: 700 тыс. ₽ - 80 млн. ₽
Первоначальный взнос: без взноса
ФК Открытие
Ставка: 11.69%
Сумма: 500 тыс. ₽ - 60 млн. ₽
Первоначальный взнос: без взноса
Московский Кредитный Банк
Ставка: 15.9%
Сумма: 500 тыс. ₽ - 50 млн. ₽
Первоначальный взнос: без взноса
Райффайзенбанк
Ставка: 12.89%
Сумма: 1.5 млн. ₽ - 40 млн. ₽
Первоначальный взнос: без взноса
МТС-Банк
Ставка: 12.4%
Сумма: 1 млн. ₽ - 50 млн. ₽
Первоначальный взнос: без взноса
Всероссийский Банк развития регионов
Ставка: 11.2%
Сумма: 1 млн. ₽ - 50 млн. ₽
Первоначальный взнос: без взноса
Банк ДОМ.РФ
Ставка: 11.8%
Сумма: 500 тыс. ₽ - 50 млн. ₽
Первоначальный взнос: без взноса
Посмотреть все доступные ипотечные программы
По закону «О рекламе» № 38-ФЗ мы обязаны указывать полную стоимость кредита (ПСК) — сумму ваших реальных расходов по кредиту включая ставку, страховку и стоимость других доп. услуг. Значения ПСК получены из открытых источников. Итоговая процентная ставка и ПСК будут указаны в кредитном договоре и рассчитываются индивидуально
Информация о здании
Новостройка
Да
 
Название ЖК
ЖК «Михалковский»
 
Год сдачи
2027
 
Тип дома
монолит
 
Наличие лифта
Да
 
Общее кол-во этажей
20
 
Стадия строительства дома
Строится
 
Квартал сдачи
4
 
Корпус дома
2
 
Наличие охраняемой парковки
Да
 
Описание жилого помещения
Этаж
7
 
Аппаратменты
Нет
 
Общее количество комнат
3
 
Информация об объекте
Площадь
67.5 кв. м
 
Комната номер 0
14.3 кв. м
 
Комната номер 2
15.4 кв. м
 
Жилая площадь
44.1 кв. м
 
Комната номер 1
14.4 кв. м
 
Площадь кухни
3.3 кв. м
 
Условия сделки
Вид сделки
первичная продажа
 
Цена
30442500 RUB
 
Ипотека
Да
 
Москва г, ул Михалковская
Цена кв.м. студии
Цена кв.м. 1 комн.кв
Цена кв.м. 2 комн.кв
Цена кв.м. 3 комн.кв
Цена кв.м. 4+ комн.кв
Рекомендованные ЖК

Реклама: adv@mapestate.ru

Редакция: info@mapestate.ru

О проекте

Контакты

Реклама на сайте

Правообладателям

X
Авторизуйтесь для этого действия
Нажимая на иконку социальной сети для регистрации или авторизации, я соглашаюсь с условиями использования сайта Mapestate.ru и подтверждаю, что ознакомился с политикой обработки персональных данных.
Отправить заявку
Заполните все обязательные поля
Вы не дали согласия на обработку персональных данных и рекламную рассылку
Вы не верно ввели код
Ваши данные отправлены
Нажимая кнопку «Отправить», я соглашаюсь с условиями использования сайта Mapestate.ru и подтверждаю, что ознакомился с политикой обработки персональных данных.