Ваш регион: Москва г
+
Объявления / Продажа / Жилая / квартира

Жилая квартира Кавказский б-р, дом зем.уч. 51/3, корпус 3.7 в Москва г

6417415.png?v=1772922238
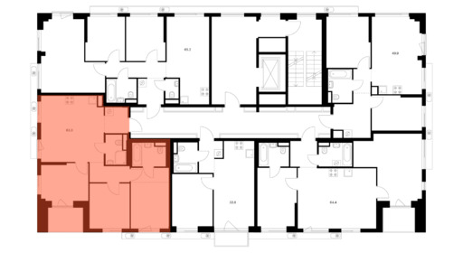
Планировка
6417415.png?v=1772922238
28 (+2 сегодня)
18 Марта 2026
18 Марта 2026
Обновлено:
24 585 720 ₽
63.3 кв. м
4 этаж
Изменение цены кратко
Изменение цены
Цена кв.м. по адресу для 3комн.кв.
Москва г, б-р Кавказский, дом зем.уч. 51/3 , корпус 3.7
Недвижимость от застройщика застройщик
Описание
Продаётся 3-комн.квартира площадью 63.30 кв.м на 4 этаже 7 этажного дома (Корпус 3.7, секция 4) проекта ПИК Кавказский бульвар 51. Светлый просторный подъезд на уровне земли, функциональная планировка, большие окна, с отделкой. «Кавказский бульвар 51» — современный квартал в районе Царицыно на юге Москвы. До метро «Кантемировская» 17 минут пешком, а за 20 можно дойти до станции «Чертаново». В 10 минутах на машине — МКАД, в 11 минутах — Варшавское шоссе, а в 16 минутах — ТТК. В районе вокруг «Кавказского бульвара 51» есть всё для комфортной жизни: детские сады, школы, поликлиники, магазины и торговые центры. Девять минут на машине — и вы у музея-заповедника «Царицыно». До Аршиновского парка от проекта можно дойти пешком за 8 минут, а до парка «Сосенки» — за 13 минут. Архитектура и лобби Архитектурную концепцию корпусов «Серии плюс» разработало бюро «Сага». Доминантой проекта станет 32-этажное здание-скульптура, чья активная пластика с цветовыми вкраплениями приковывает взгляды. Другие корпуса поддерживают её образ и не теряются на фоне за счёт фасадных и цветовых решений. Дизайн проработан и внутри домов. На первых этажах — просторные и светлые лобби с дизайнерской отделкой. Здесь появятся зоны ожидания, кондиционеры, скоростные лифты и помещение для хранения колясок и велосипедов. Инфраструктура проекта На территории проекта появятся детский сад и школа. На первых этажах откроются магазины, кафе, салоны красоты и другие сервисы. А для владельцев автомобилей предусмотрены многоуровневый и подземные паркинги. В уютных дворах-парках есть места для отдыха и детские площадки. Через квартал протянется пешеходный бульвар, где приятно гулять, отдыхать на удобных скамейках и шезлонгах или играть в настольный теннис. Маленькие жители оценят современные детские площадки с каруселями, горками и лазательными комплексами. Для любителей спорта в квартале появится СпортПарк — большое пространство для командных игр и индивидуальных тренировок. Планировки Квартиры с умными планировками подойдут для любого сценария жизни: есть варианты с мастер-спальней, гардеробной и постирочной. Увеличенные окна дадут больше естественного света. А угловые окна и террасы позволят создать собственное уникальное пространство для работы или отдыха. Артикул - 1009923
Доступные ипотечные программы
Сбербанк
Ставка: 13.5%
Сумма: 300 тыс. ₽ - 100 млн. ₽
Первоначальный взнос: без взноса
Совкомбанк
Ставка: 13%
Сумма: 300 тыс. ₽ - 50 млн. ₽
Первоначальный взнос: без взноса
ВТБ
Ставка: 11.7%
Сумма: 500 тыс. ₽ - 60 млн. ₽
Первоначальный взнос: без взноса
Альфа-Банк
Ставка: 12.49%
Сумма: 600 тыс. ₽ - 70 млн. ₽
Первоначальный взнос: без взноса
Газпромбанк
Ставка: 12.8%
Сумма: 700 тыс. ₽ - 80 млн. ₽
Первоначальный взнос: без взноса
ФК Открытие
Ставка: 11.69%
Сумма: 500 тыс. ₽ - 60 млн. ₽
Первоначальный взнос: без взноса
Московский Кредитный Банк
Ставка: 15.9%
Сумма: 500 тыс. ₽ - 50 млн. ₽
Первоначальный взнос: без взноса
Уральский Банк реконструкции и развития
Ставка: 12.9%
Сумма: 300 тыс. ₽ - 30 млн. ₽
Первоначальный взнос: без взноса
Райффайзенбанк
Ставка: 12.89%
Сумма: 1.5 млн. ₽ - 40 млн. ₽
Первоначальный взнос: без взноса
МТС-Банк
Ставка: 12.4%
Сумма: 1 млн. ₽ - 50 млн. ₽
Первоначальный взнос: без взноса
ЮниКредит Банк
Ставка: 12.5%
Сумма: 1 млн. ₽ - 30 млн. ₽
Первоначальный взнос: без взноса
Посмотреть все доступные ипотечные программы
По закону «О рекламе» № 38-ФЗ мы обязаны указывать полную стоимость кредита (ПСК) — сумму ваших реальных расходов по кредиту включая ставку, страховку и стоимость других доп. услуг. Значения ПСК получены из открытых источников. Итоговая процентная ставка и ПСК будут указаны в кредитном договоре и рассчитываются индивидуально
Информация о здании
Новостройка
Да
 
Название ЖК
Кавказский бульвар 51
 
Год сдачи
2028
 
Тип дома
монолит
 
Высота потолков
2.72
 
Наличие мусоропровода
Нет
 
Общее кол-во этажей
7
 
Стадия строительства дома
Строится
 
Квартал сдачи
2
 
Корпус дома
3.7
 
Наличие лифта
Да
 
Наличие охраны
Нет
 
Описание жилого помещения
Этаж
4
 
Тип балкона
балкон
 
Общее количество комнат
3
 
Тип санузла
 
Информация об объекте
Площадь
63.3 кв. м
 
Комната номер 0
9 кв. м
 
Комната номер 2
8.5 кв. м
 
Жилая площадь
26.20 кв. м
 
Комната номер 1
8.7 кв. м
 
Площадь кухни
20.20 кв. м
 
Условия сделки
Вид сделки
первичная продажа
 
Цена
24585720 RUB
 
Ипотека
Да
 
Москва г, б-р Кавказский
Цена кв.м. студии
Цена кв.м. 1 комн.кв
Цена кв.м. 2 комн.кв
Цена кв.м. 3 комн.кв
Цена кв.м. 4+ комн.кв
Рекомендованные ЖК

Реклама: adv@mapestate.ru

Редакция: info@mapestate.ru

О проекте

Контакты

Реклама на сайте

Правообладателям

X
Авторизуйтесь для этого действия
Нажимая на иконку социальной сети для регистрации или авторизации, я соглашаюсь с условиями использования сайта Mapestate.ru и подтверждаю, что ознакомился с политикой обработки персональных данных.
Отправить заявку
Заполните все обязательные поля
Вы не дали согласия на обработку персональных данных и рекламную рассылку
Вы не верно ввели код
Ваши данные отправлены
Нажимая кнопку «Отправить», я соглашаюсь с условиями использования сайта Mapestate.ru и подтверждаю, что ознакомился с политикой обработки персональных данных.