ЖК "Живописный" — 17 монолитных 4-этажных корпусов комфорт-класса от группы компаний "Гранель" вблизи Измайлово и деревни Жабкино. Строительство ведется на участке 21 га в Ленинском районе Московской области. Проект был заявлен еще в 2015 году, но продажи открылись лишь в мае 2021-го.
Детали проекта
Строительство микрорайона разделено на несколько этапов. В состав первой очереди входит четыре дома общей площадью 90 тысяч квадратных метров.
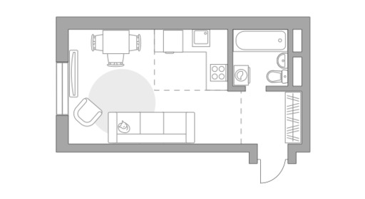
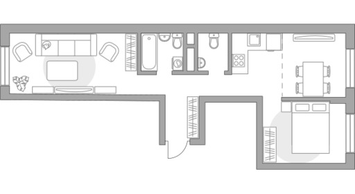
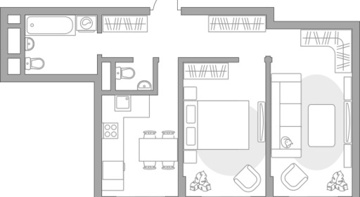
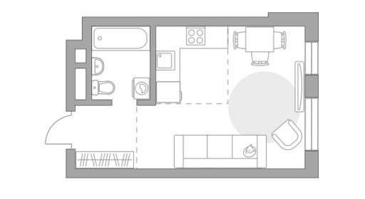
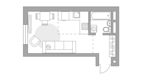
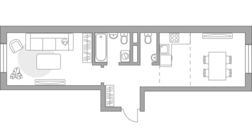
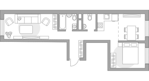
Покупателям предлагаются студии и 1-3-комнатные квартиры от 24 до 80 кв. м. Есть варианты с двумя уровнями, вторым светом и потолками 6 метров. Отделка двух типов — черновая и чистовая. Для хранения сезонных вещей на минус первом этаже застройщик продает кладовые.
В проект входят три дошкольных учреждения на 330 мест. Помещения на первом этаже коммерческого типа, их предназначение определят владельцы и арендаторы. Предполагается, что в стилобате откроются магазины, кафе, аптеки и прочая инфраструктура.
Дворы сделают закрытыми для машин и посторонних, с видеонаблюдением по периметру и системой контроля доступа. На территории будут игровые площадки, спортивные зоны, велопарковки и места для отдыха. Оставить автомобиль жители смогут в подземном паркинге или на открытой стоянке у дома. Большое внимание застройщик уделяет озеленению.
Расположение
Жилой комплекс "Живописный" окружен Бутовским лесопарком. Рядом Булатниковский пруд и усадьба "Троицкое на Обитце". Дома расположены вдали от дорог и промышленных предприятий.
Строительство микрорайона ведется с нуля. В ближайшем окружении нет социальных объектов, поэтому до школ и детсадов придется добираться транспортом. Ближе всего до Видного, где работают детская и взрослая поликлиники, гимназия, конный и баскетбольный клубы, родильный дом. Из магазинов жителям "Живописного" доступны несколько небольших точек в Измайлово. До торгово-развлекательного центра Vegas можно доехать за 10 минут.
Дорога на МКАД по Симферопольскому шоссе отнимет 5 минут времени. Расстояние — 2 км. Рядом проходит платная трасса М-4 и Симферопольское шоссе. До станции метро "Пражская" курсируют маршрутные такси. В перспективе вблизи от новостройки протянут Бирюлевскую ветку метро и линию рельсового скоростного пассажирского транспорта.










Аннино
10 мин
за МКАДом



