Ваш регион: Москва г
+
Жилые комплексы / ЖК «Аникеевский»

ЖК «Аникеевский» в Московская обл, г Красногорск, с Николо-Урюпино от Застройщика Гранель

Московская обл, г Красногорск, с Николо-Урюпино
Строгино
20 мин         за МКАДом
Срок сдачи: 2 кв. 2025 г.
Описание

ЖК "Аникеевский" — микрорайон комфорт-класса возле деревни Николо-Урюпино в городском округе Красногорск. Продажи стартовали в конце января 2022 года. Строительство ведет группа компаний "Гранель". Проектное финансирование в размере 27 миллиардов рублей застройщику предоставляет банк ДОМ.РФ.

Детали проекта

Проект между Волоколамским и Новорижским шоссе реализуется в несколько очередей. Первыми построят десять 4-6-этажных монолитных домов.

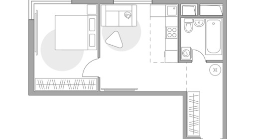
Покупателям предлагаются свободные планировки, которые условно разделены на 1-, 2- и 3-комнатные. Площадь жилья от 22,04 до 68,18 кв. м. Недвижимость сдается без отделки, но чистовую можно дозаказать. Продажи осуществляются с использованием счетов-эскроу.

Первый этаж нежилой, с помещениями под магазины, кафе, аптеки и салоны красоты. В рамках проекта возводятся собственные социальные объекты, в том числе поликлиника и детский сад.

Застройщик выполнит ландшафтное озеленение с высадкой хвойных пород деревьев — сосен и можжевельника. В закрытых от машин дворах устроят игровые и спортивные площадки, места для отдыха со скамейками.

Окружение

Жилой комплекс "Аникеевский" находится в окружении хвойного леса. Поблизости протекает река Липка. В 10 минутах автомобилем озеро Генеральское и еще несколько водоемов с благоустроенными местами для отдыха.

Инфраструктура Николо-Урюпино развита слабо. Рядом в основном дома частного сектора. Действующие объекты в получасе ходьбы — в Нахабино. За пять минут транспортом можно добраться до школы №2, детских садов №13 и "Рябинка", городской больницы, универсамов "Дикси" и "Пятерочка", ТЦ "Элизиум". При выезде на Новорижское шоссе в 7,4 км работает торгово-развлекательный центр "РИГАМОЛЛ".

Транспортную доступность обеспечивают Волоколамское и Новорижское шоссе. Расстояние до МКАД 11 км. Ближайшая автобусная остановка в 900 метрах. В 2,5 км от новостройки станция МЦД-2 "Аникеевка", откуда поезда отправляются в сторону метро "Тушинская", "Волоколамская" и "Дмитровская" каждые 5-10 минут. В перспективе поблизости откроется платформа Рублево-Архангельской ветки.

Этажей
4-6
 
Тип дома
монолит
 
Класс жилья
Комфорт
 
Тип жилья
квартира
 
Парковка
Да
 
Огороженная территория
Нет
 
Отделка
с отделкой/без отделки
 
Срок сдачи
2 кв. 2025 г.
 
Документация
Рекомендованные ЖК
Новостройки на старте продаж
Летчик
22 Июня 2023
Классное место, рядом сосновый бор, чистый воздух и нет больших дорог, что ещё нужно для хорошего отдыха после трудового дня
Антон Ш.
21 Июня 2023
Купили здесь двушку прошлой осенью, очень понравилось место. Природа, лес, тишина. Сам Аникеевский малоэтажный и рядом нет человейников. Очень комфортно и бюджетно кстати. Особенно по акции.
Дарья Некрасова
18 Июня 2023
Решили купить однушку в этом жк, чтобы жить в тихом спокойном и живописном месте. Это главное преимущества, но и квартира в целом устроила. Нормальные планировки есть, можно выбрать по запросу и бюджету.
Светлана К.
14 Июня 2023
Уютный компактный жилой комплекс рядом с лесом. Стоит выбрать здесь квартиру ради чистого воздуха, хорошей экологии и красивой природы. Съездили с менеджером на объект и поняли, что здесь нам нравится, квартиру берём
Екатерина Т.
9 Мая 2023
Ну насчет своей дороги наверное менеджеры пишут😃нам, будущим собственникам, дорогу не обещали. Строят быстро, следим за стройкой. Сдадут, думаю, в срок, если не раньше. Малоэтажки - это огромный плюс. Рядом военный полигон саперский - это наверное огромный минус. Детский сад обещают в самом жк, школа в соседнем жк Лесобережный. Поликлиники по плану на первых этажах жилых домов. Ждем с нетерпением. Может кому-то пригодится эта инфа😊
Леонида Сорокина
16 Мая 2022
Купили трёхкомнатную квартиру , цены шоколадные, район золотой, природа и направление очень удобное и для меня самое важное, экология и не муравейник! Я прям рада Ура! Спасибо Гранель ❤️
Анастасия Т.
13 Мая 2022
Долго выбирали квартиру за городом, хотелось в уютном месте, чтобы дышалось хорошо. Сразу хотели брать в гранель. много посмотрели их жк. в итоге решились на Аникеевский. здесь будет уютно, комфортно, тихо как мы и хотели. малоэтажные дома это большой плюс. их быстрее строят. движуха на стройплощадке уже началась
Показать все отзывы
Написать отзыв
Нажимая кнопку «Отправить», я соглашаюсь с условиями использования сайта Mapestate.ru и подтверждаю, что ознакомился с политикой обработки персональных данных.

Реклама: adv@mapestate.ru

Редакция: info@mapestate.ru

О проекте

Контакты

Реклама на сайте

Правообладателям

X
Авторизуйтесь для этого действия
Нажимая на иконку социальной сети для регистрации или авторизации, я соглашаюсь с условиями использования сайта Mapestate.ru и подтверждаю, что ознакомился с политикой обработки персональных данных.
Отправить заявку
Заполните все обязательные поля
Вы не дали согласия на обработку персональных данных и рекламную рассылку
Вы не верно ввели код
Ваши данные отправлены
Нажимая кнопку «Отправить», я соглашаюсь с условиями использования сайта Mapestate.ru и подтверждаю, что ознакомился с политикой обработки персональных данных.