ЖК "ЛесART" — пять 8-13-этажных панельных домов от специализированного застройщика "Аврора". Фирма является структурным подразделением группы "ЛенРусСтрой".
Строительство развернулось на участке 7,6 га вблизи Рябиновой улицы на территории поселка Новоселье. Земля раньше принадлежала научно-исследовательскому институту гидротехники и мелиорации.
Детали проекта
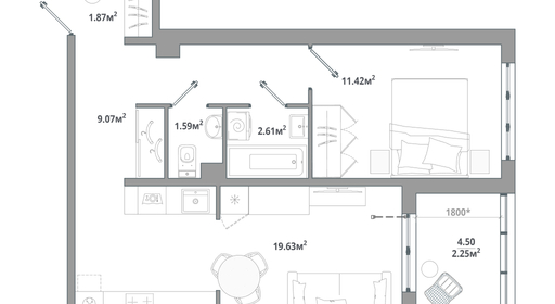
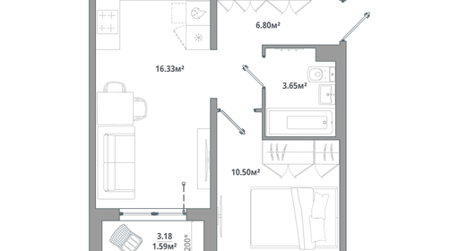
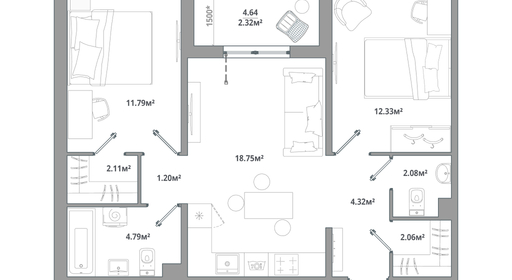
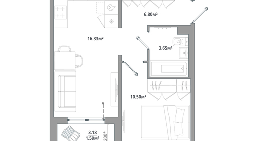
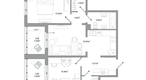
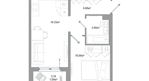
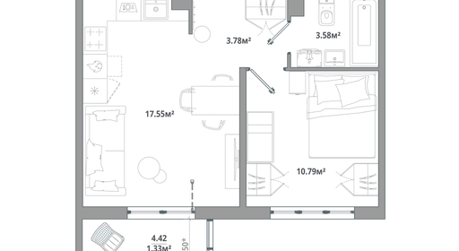
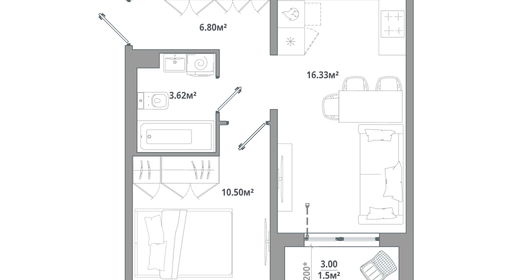
В первом доме 973 квартиры, в среднем по шесть на этаже. Есть студии, одно- и двухкомнатные планировки. Часть жилья с гардеробными, кухнями-гостиными и мастер-спальнями. Застройщик выполнит финишную отделку в светлых тонах.
Комплекс обеспечат системой интеллектуального управления "умный дом". На первом этаже отведена площадь под коммерческие объекты. Магазины, кафе, аптеки и прочий ритейл займет пять тысяч квадратных метров.
Во дворах предусмотрены игровые площадки, спортивные зоны и места для отдыха. Застройщик высадит деревья и кустарники. В проект входят подземные и гостевые открытые автостоянки.
Окружение
Жилой комплекс "ЛесART" находится возле безымянной зеленой зоны. В километре от новостройки, по другую сторону КАД, Шунгеровский лесопарк площадью 333 га. До Финского залива автомобилем ехать 15 минут.
В Новоселье невысокая плотность населения, но со временем количество жителей увеличится. В Ломоносовском районе ведется строительство крупных проектов по освоению территории.
Инфраструктура поселка на стадии развития. В соседних микрорайонах работают школа на 550 мест, два детских сада. Поблизости Ледовый дворец, спортивный центр с кружками по вольной борьбе и художественной гимнастике. В перспективе в Новоселье построят поликлинику. Торговые точки сосредоточены вдоль Красносельского шоссе — "ВкусВилл", "Магнит" и "Семишагофф".
Выезд на Красносельское шоссе обеспечивает Центральная улица. Расстояние до КАД 2,5 км. Автобусом за полчаса можно добраться до станций метро "Проспект Ветеранов" и "Купчино".









