"Новая Алексеевская роща" — жилой комплекс комфорт-класса от компании "Гранель", расположенный на улице Дмитриева в Балашихе. Новостройка занимает участок 27 га. В ее состав входит:
11 семнадцатиэтажных монолитных домов;
4 детских сада на 592 места;
3 многофункциональных комплекса с кафе, банками, аптеками и салонами красоты;
1 школа на 1230 учеников;
1 поликлиника на 100 посещений в смену.
Проект разделен на несколько очередей и будет реализован к 2021 году.
Квартиры, паркинг, двор
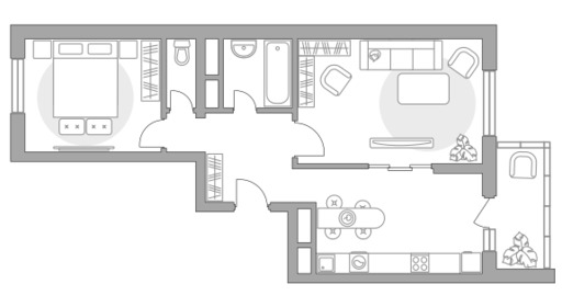
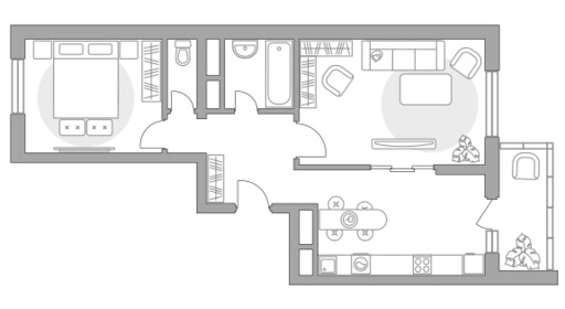
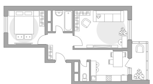
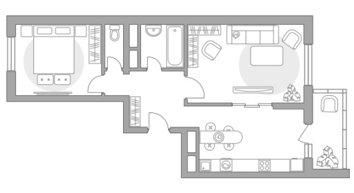
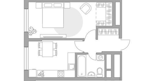
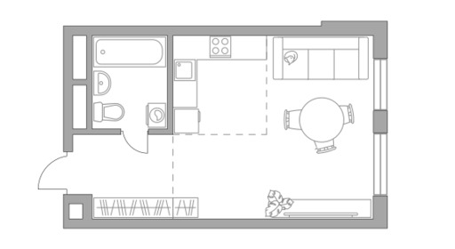
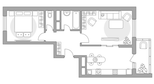
В "Новой Алексеевской роще" предложены квартиры от студий до трехкомнатных. Около 25 тысяч кв. м в комплексе предназначено для расселения жителей аварийного фонда. Площадь жилья составляет 19,25-77,27 квадратных метра. Отделку застройщик выполнять не будет.
Дворы задуманы закрытыми от машин. Оставить автомобиль владельцы смогут в крытом наземном паркинге. На территории их будет два — на 1000 и 600 мест. В кварталах разобьют игровые и спортивные площадка, организуют места для отдыха и проведут озеленение.
Окружение
ЖК "Новая Алексеевская роща" граничит с национальным заповедником "Лосиный остров". Рядом пруды с каскадом мостов и река Пехорка. Микрорайон, в котором ведется строительство, еще развивается. Поблизости возводятся кварталы с детскими садами, школами и поликлиниками. Например, в соседних кварталах откроют лицей и три детских сада. На пересечении Щелковского шоссе и Звездной улицы работает торговый комплекс "Пехорка". В 7 километрах, на пересечении МКАД и Щелковского шоссе, находятся гипермаркеты "Ашан" и "Метро".
От квартала до станции метро "Щелковская" ездят автобусы №№ 300, 396 и 447. Их остановка в 500 метрах. В получасе езды — ж/д станция Балашиха. От платформы до Курского вокзала электрички идут 45 минут






Щелковская
30 мин
за МКАДом



