Ваш регион: Москва г
+
Объявления / Продажа / Жилая / Москва г
Сортировка:
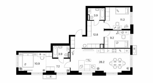
Ключи в 2025 году. Максимальные скидки при 100% оплате. Прямая продажа от застройщика с гарантией чистоты проведения сделки! Продаётся 4-к квартира №64 общей площадью 100.1 кв.м на 10-м этаже 29 этажного дома. Без отделки. Особенности: - Квартира доступна к покупке в Trade-In. - Мастер-зона с гардеробной. Просторное место для отдыха и удобного хранения вещей. - Мастер-зона с санузлом. Уют и комфорт в одном пространстве. - Угловая планировка - больше пространства для ваших идей. - Мало квартир на этаже - уединение и тишина. - Окно в ванной - натуральное освещение для уюта и комфорта. - Увеличенная ширина окна/окон - больше света и визуального простора. - Увеличенное число окон - Угловое остекление - свет и воздушность в каждой комнате. - Гостевой санузел - комфорт и удобство для ваших гостей. - Душ помимо ванной - дополнительное удобство для вашей семьи. - Постирочная - организуйте пространство для стирки и сушки вещей. - Гибкая планировка - создайте пространство по своему вкусу. - Место для игры/занятия спортом - идеальное пространство для активных детей. - Просторная мягкая зона - комфорт и уют для отдыха всей семьи. - Возможность добавить спальное место - дополнительный комфорт для гостей. - Гардеробная - удобство для хранения и организации вещей. - Вид из окна: двор Квартира без отделки. Чистый холст для воплощения интерьера вашей мечты. Расположение комплекса: В ЖК "Роттердам" отличное расположение, которое позволит вам выбирать свой сегодняшний маршрут и транспорт исходя из настроения, целей и погоды. Отсюда удобно добираться в центр как на метро - станция находится в пешей доступности, так и на автомобиле. Варшавское шоссе связывает жилой комплекс с ТТК, а через Люсиновскую и Мытную улицы - с Садовым кольцом. В качестве альтернативного маршрута можно использовать Нагатинскую набережную: дорога вдоль Москва-реки приведет к Кремлю и Павелецкому вокзалу. Для неспешной поездки предусмотрены трамвайные маршруты, а в теплое время года - веломаршруты вдоль реки. Транспортная доступность: Всего в 5 минутах пешком до метро "Нагатинская" и 8 минутах от МЦК "Верхние Котлы". Рядом Аэроэкспресс до метро "Домодево". До ТТК 2,2 км и 4,9 км до Садового кольца. Внутренняя инфраструктура: Если вы ищете идеальный баланс между отдыхом и работой и обладаете активной жизненной позицией - ЖК "Роттердам" вам понравится. В ЖК: зоны коворкинга, плейхаб и детские площадки для отдыха всей семьей. Близость к деловому центру Москвы, в окружении 5 парков, рядом спортивные и развлекательные центры Если вы любите живописные виды и долгие прогулки - ЖК "Роттердам" - отличный вариант для вас, так как он расположен прямо на Нагатинской набережной с выходом на Москву реку! В ЖК "Роттердам" соблюден баланс между высоткой и малоэтатажным зданием, которое не потеряло ощущение уюта и не создает впечатление городских джунглей Если вы любите быть на высоте и без ограничений - выбирайте верхние этажи Для тех, кто ценит комфорт и собственное время Для тех, кто ценит комфорт и личное пространство Для тех, кому важен комфорт, безопасность и личное пространство на придомовой территории
ЖК бизнес-лайт класса в Новой Москве! Хорошая инвестиция - уже утвержден проект новой линии метро вдоль Калужского шоссе, добираться до столицы станет еще быстрее. Плюсы ЖК Детали, которые станут вам доступны: • Московская прописка • Близость к столице - сочетание комфорта и отдых на природе • Приемлемая стоимость • Локация с парком и рекой • Два собственных детских сада • Транспортная доступность Продается 3-комнатная квартира общей площадью 51.9 кв. метров на 9 этаже комплекса бизнес-класса "Детали" Благодаря продуманной архитектуре и расположению секций ЖК, квартиры здесь получают максимум естественного освещения в течение дня. Это означает, что ваш дом будет не только светлым и привлекательным, но и экономичным в плане затрат на освещение. Ваша квартира в ЖК Детали это возможность быть ближе к природе и уйти от городской суеты, не теряя преимуществ и возможностей крупного мегаполиса! Транспортная доступность: - Метро «Филатов Луг» – 12 минут, «Прокшино» – 20 минут, «Ольховая» – 20 минут - МКАД всего в 18 км - 50 минут и вы в центре Москвы - Аэропорт Внуково в 20 минутах - Действует несколько маршрутов наземного транспорта по расписанию. - В 20 минутах расположены крупные ТРЦ. Марьино – это исторический район, богатый природным ландшафтом. В районе хорошая экологическая обстановка. Местность богата природными пейзажами и ароматными сосновыми лесами. В шаговой доступности располагаются парк «Марьино» и река «Незнайка». Своя инфраструктура На территории ЖК девелопер реализует: - Два собственных детских садика по 250 мест. Ввод в эксплуатацию планируется в 4-м квартале 2026 года, в 1-м квартале 2027 года. - Запроектированы отдельные помещения для хранения колясок, велосипедов и самокатов, а также помещения для мойки лап собакам и самокатов. - Безбарьерный вход по индивидуальному чипу, а на входе вас встретит приветливый консьерж. - Каждая секция ЖК с панорамным остеклением, индивидуальным дизайном и приятным интерьером в общественных зонах. - Подземный охраняемый паркинг с доступом к лифту - Безопасная закрытая территория комплекса - Приватный двор с многоуровневым ландшафтом - На внутренней территории пространство с ландшафтным парком, детскими площадками, зонами для отдыха и арт-объектами. - Двор без машин - изюминка проекта. В “Деталях” вся территория будет под видеонаблюдением и охраной. Поселение Филимоновское Здесь развита образовательная инфраструктура: школы, детские сады, спортивные и творческие секции. Безусловно, здесь также есть всё необходимое и для повседневной жизни. Все условия для покупки: - Семейная ипотека - Материнский капитал. - IT-ипотека - Военная ипотека - Trade-In - 100% Оплата Звоните и записывайтесь на просмотр!
ЖК бизнес-лайт класса в Новой Москве! Хорошая инвестиция - уже утвержден проект новой линии метро вдоль Калужского шоссе, добираться до столицы станет еще быстрее. Плюсы ЖК Детали, которые станут вам доступны: • Московская прописка • Близость к столице - сочетание комфорта и отдых на природе • Приемлемая стоимость • Локация с парком и рекой • Два собственных детских сада • Транспортная доступность Продается 2-комнатная квартира общей площадью 38.4 кв. метров на 12 этаже комплекса бизнес-класса "Детали" Благодаря продуманной архитектуре и расположению секций ЖК, квартиры здесь получают максимум естественного освещения в течение дня. Это означает, что ваш дом будет не только светлым и привлекательным, но и экономичным в плане затрат на освещение. Ваша квартира в ЖК Детали это возможность быть ближе к природе и уйти от городской суеты, не теряя преимуществ и возможностей крупного мегаполиса! Транспортная доступность: - Метро «Филатов Луг» – 12 минут, «Прокшино» – 20 минут, «Ольховая» – 20 минут - МКАД всего в 18 км - 50 минут и вы в центре Москвы - Аэропорт Внуково в 20 минутах - Действует несколько маршрутов наземного транспорта по расписанию. - В 20 минутах расположены крупные ТРЦ. Марьино – это исторический район, богатый природным ландшафтом. В районе хорошая экологическая обстановка. Местность богата природными пейзажами и ароматными сосновыми лесами. В шаговой доступности располагаются парк «Марьино» и река «Незнайка». Своя инфраструктура На территории ЖК девелопер реализует: - Два собственных детских садика по 250 мест. Ввод в эксплуатацию планируется в 4-м квартале 2026 года, в 1-м квартале 2027 года. - Запроектированы отдельные помещения для хранения колясок, велосипедов и самокатов, а также помещения для мойки лап собакам и самокатов. - Безбарьерный вход по индивидуальному чипу, а на входе вас встретит приветливый консьерж. - Каждая секция ЖК с панорамным остеклением, индивидуальным дизайном и приятным интерьером в общественных зонах. - Подземный охраняемый паркинг с доступом к лифту - Безопасная закрытая территория комплекса - Приватный двор с многоуровневым ландшафтом - На внутренней территории пространство с ландшафтным парком, детскими площадками, зонами для отдыха и арт-объектами. - Двор без машин - изюминка проекта. В “Деталях” вся территория будет под видеонаблюдением и охраной. Поселение Филимоновское Здесь развита образовательная инфраструктура: школы, детские сады, спортивные и творческие секции. Безусловно, здесь также есть всё необходимое и для повседневной жизни. Все условия для покупки: - Семейная ипотека - Материнский капитал. - IT-ипотека - Военная ипотека - Trade-In - 100% Оплата Звоните и записывайтесь на просмотр!
ЖК бизнес-лайт класса в Новой Москве! Хорошая инвестиция - уже утвержден проект новой линии метро вдоль Калужского шоссе, добираться до столицы станет еще быстрее. Плюсы ЖК Детали, которые станут вам доступны: • Московская прописка • Близость к столице - сочетание комфорта и отдых на природе • Приемлемая стоимость • Локация с парком и рекой • Два собственных детских сада • Транспортная доступность Продается 1-комнатная квартира общей площадью 40.2 кв. метров на 3 этаже комплекса бизнес-класса "Детали" Благодаря продуманной архитектуре и расположению секций ЖК, квартиры здесь получают максимум естественного освещения в течение дня. Это означает, что ваш дом будет не только светлым и привлекательным, но и экономичным в плане затрат на освещение. Ваша квартира в ЖК Детали это возможность быть ближе к природе и уйти от городской суеты, не теряя преимуществ и возможностей крупного мегаполиса! Транспортная доступность: - Метро «Филатов Луг» – 12 минут, «Прокшино» – 20 минут, «Ольховая» – 20 минут - МКАД всего в 18 км - 50 минут и вы в центре Москвы - Аэропорт Внуково в 20 минутах - Действует несколько маршрутов наземного транспорта по расписанию. - В 20 минутах расположены крупные ТРЦ. Марьино – это исторический район, богатый природным ландшафтом. В районе хорошая экологическая обстановка. Местность богата природными пейзажами и ароматными сосновыми лесами. В шаговой доступности располагаются парк «Марьино» и река «Незнайка». Своя инфраструктура На территории ЖК девелопер реализует: - Два собственных детских садика по 250 мест. Ввод в эксплуатацию планируется в 4-м квартале 2026 года, в 1-м квартале 2027 года. - Запроектированы отдельные помещения для хранения колясок, велосипедов и самокатов, а также помещения для мойки лап собакам и самокатов. - Безбарьерный вход по индивидуальному чипу, а на входе вас встретит приветливый консьерж. - Каждая секция ЖК с панорамным остеклением, индивидуальным дизайном и приятным интерьером в общественных зонах. - Подземный охраняемый паркинг с доступом к лифту - Безопасная закрытая территория комплекса - Приватный двор с многоуровневым ландшафтом - На внутренней территории пространство с ландшафтным парком, детскими площадками, зонами для отдыха и арт-объектами. - Двор без машин - изюминка проекта. В “Деталях” вся территория будет под видеонаблюдением и охраной. Поселение Филимоновское Здесь развита образовательная инфраструктура: школы, детские сады, спортивные и творческие секции. Безусловно, здесь также есть всё необходимое и для повседневной жизни. Все условия для покупки: - Семейная ипотека - Материнский капитал. - IT-ипотека - Военная ипотека - Trade-In - 100% Оплата Звоните и записывайтесь на просмотр!
Максимальные скидки при 100% оплате. Прямая продажа от застройщика! Жилой Комплекс премиум-класса. Продаётся 2-к квартира №207 общей площадью 58.7 кв.м на 15-м этаже 46 этажного дома. Чистовая отделка. Особенности: - Квартира доступна к покупке в Trade-In. - Мастер-зона с санузлом и гардеробной. Всё для вашего комфорта и удобства, включая личный санузел и гардероб. - Просторная спальня, в которой можно разместить большую кровать. - Линейная планировка - максимальная функциональность и удобство. - Увеличенная ширина окна/окон - больше света и визуального простора. - Увеличенное число окон - Гостевой санузел - комфорт и удобство для ваших гостей. - Постирочная - организуйте пространство для стирки и сушки вещей. - Евроформат - просторное и удобное жилье с отличной планировкой. - Гибкая планировка - создайте пространство по своему вкусу. - Место для игры/занятия спортом - идеальное пространство для активных детей. - Линейная кухня - функциональность и практичность в одном решении. - Возможность добавить спальное место - дополнительный комфорт для гостей. - Проходная кухня-гостиная - идеальное пространство для общения и готовки. - Гардеробная - удобство для хранения и организации вещей. - Вид из окна: город - Вид из окна на соседний ЖК - Вид из окна на бульвар - Премиальный Lifehab Квартал - Виды на центр и Сити - Премиальные лобби с камином, игровой и коворкингом - 6 га собственного парка Квартира с чистовой отделкой. Раскройте свою индивидуальность в создании своего уникального проекта, а трудоемкий ремонт мы возьмем на себя! Вы идете в ногу со временем и предпочитаете современные, универсальные дизайнерские решения? Или вы любитель строгой лаконичной классики? Тогда наши интерьеры придутся вам по душе! Выбирайте то, что ближе лично Вам и реализуйте свои задумки вместе с нами! Расположение комплекса: Amber City - это не просто квартал. Это место, куда ведут все маршруты, где рождается вдохновение работать и творить, где счастлива семья и жизнь кипит 24/7. Модная архитектура, высокотехнологичные решения и самодостаточная инфраструктура приближают Amber City к лучшим районам Гонконга и Нью-Йорка. Потрясающие виды на Москва-Сити и центр позволяют заряжаться их амбициозностью, не подчиняясь суете. Стремящиеся ввысь небоскребы, благоустроенный парк с зонами отдыха для взрослых и детей, а также многочисленные объекты инфраструктуры возводятся в западной части центра Москвы. Транспортная доступность: Квартал отличается исключительной транспортной доступностью: большая часть значимых мест Москвы находится на расстоянии 15-20 минут. Такое расположение позволит полностью погрузиться в деловую и культурную жизнь столицы и тратить на дорогу только необходимый минимум времени. Общественный транспорт: - Станция метро «Беговая» - 5 минут пешком - Станция «Беговая» (МЦД-1) - 5 минут пешком - Ж/д станция Беговая - 12 минут пешком - Остановка «2-й Хорошёвский проезд» - 3 минуты пешком - Станция метро «Звенигородская» (строящаяся) - 10 минут пешком На автомобиле: - Звенигородское шоссе - 3 минуты - TTK - 5 минут - Хорошёвское шоссе - 9 минут - Садовое кольцо - 12 минут - Красная Пресня - 15 минут - Тверская - 20 минут - Серебряный бор - 8 минут - Строгинский затон - 8 минут - Москва-Сити - 10 минут - Кремль - 20 минут - Аэропорт Шереметьево - 40 минут Внутренняя инфраструктура: Умелая работа над ландшафтом позволила правильно зонировать многоуровневое пространство, общей площадью 6 гектаров, открывая разнообразные возможности для резидентов Amber City и их детей. Главной артерией квартала станет собственный зеленый бульвар. Он начнется с площади у входа на территорию и, объединяя все внутренние пространства, пройдет через ключевые площади с арт-объектами, водными зонами и архитектурными формами. Дополнительные пространства для отдыха будут размещены в закрытых зеленых дворах на стилобате. Здесь будут расположены детские площадки с песочницами, тактильными дорожками, каруселями и природными игровыми элементами. Те, кто привык работать и отдыхать с комфортом, по достоинству оценят тишину зон отдыха, наличие удобных кресел и настила для йоги. В холодное время года будет приятно воспользоваться навесами, оснащенными подогревом и зарядными устройствами. Благодаря разнообразному наполнению в Amber City вы каждый день сможете заняться чем-то интересным. - Поиграть в настольный теннис на столах в специально отведенной для этого безветренной зоне - Заняться йогой на природе - Разделиться на команды и поиграть во французский петанк - Почитать в тишине специально отведенных зон, оборудованных скамейками и шезлонгами - Переждать непогоду под удобными навесами
Максимальные скидки при 100% оплате. Прямая продажа от застройщика! Жилой Комплекс Бизнес класса. Продаётся 2-к квартира №769 общей площадью 68.9 кв.м на 40-м этаже 44 этажного дома. Без отделки. Особенности: - Квартира доступна к покупке в Trade-In. - Мастер-зона с санузлом и гардеробной. Всё для вашего комфорта и удобства, включая личный санузел и гардероб. - Просторная спальня, в которой можно разместить большую кровать. - Угловая планировка - больше пространства для ваших идей. - Окно в ванной - натуральное освещение для уюта и комфорта. - Увеличенное число окон - Угловое остекление - свет и воздушность в каждой комнате. - Душ помимо ванной - дополнительное удобство для вашей семьи. - Евроформат - просторное и удобное жилье с отличной планировкой. - Гибкая планировка - создайте пространство по своему вкусу. - Место для игры/занятия спортом - идеальное пространство для активных детей. - Можно оборудовать 2 или более рабочих места - пространство для нескольких человек. - Можно оборудовать рабочее место - комфорт для работы и учёбы. - Просторная мягкая зона - комфорт и уют для отдыха всей семьи. - Кухня-гостиная - идеальное пространство для встреч с близкими. - Наличие острова на кухне - удобство и стиль для вашей кухни. - Возможность добавить спальное место - дополнительный комфорт для гостей. - Гардеробная - удобство для хранения и организации вещей. - Ниша под шкаф - компактное и удобное место для вещей. - Лоджия - уютное место для отдыха и тишины. - Вид из окна: двор - Вид из окна: город - Вид из окна: река Сходня - Вид из окна на Сходненский канал Квартира без отделки. Чистый холст для воплощения интерьера вашей мечты. Расположение комплекса: Sky Garden расположен в районе Покровское-Стрешнево. На территории этого района шумит листвой одноименный парк. Зеленый живописный район, реки и каналы поблизости, чистый свежий воздух из подмосковных листов - идеальное место, чтобы ощутить себя частью природы. При этом развитая образовательная, социальная и транспортная инфраструктура оставят вам все преимущества жизни в мегаполисе. Sky Garden - идеальный баланс между природной и городской средой. Транспортная доступность: Всего в 12 минутах пешком до м. Тушинская и 15 минутах до станции "Тушинская" МЦД. На автомобиле: 2 км до Волоколамского шоссе, 2,5 км до МКАД и 15 км до Садового кольца Внутренняя инфраструктура: К вашим услугам современные игровые площадки: тут ваши дети с удовольствием смогут лазить по бревнам, штурмовать горки и стараться не промокнуть, бегая под струями фонтана. В Sky Garden полно возможностей как для совсем маленьких, так и для взрослых. Предусмотрены активности: мастер классы по йоге на английском газоне, воркаут- площадка, велопарковки. Также в вашем распоряжении на территории комплекса будут: поликлиника, аптека, супермаркет, зона для отдыха, сухой фонтан и площадка для подростков. Пространство для работы, оборудованное кофепоинтом и удобными переговорными. Также к вашим услугам кафе и рестораны в коммерческом кластере. Игровая комната, расположенная в центральном лобби, оборудована двухэтажным комплексом, мягкими татами, книжками и играми, способными увлечь ребятню В каждом подъезде на минус первом этаже оборудованы комнаты для хранения взрослых и детских велосипедов, колясок и самокатов Вкуснейшая горячая выпечка, ресторан с любимыми блюдами, надежная мастерская по ремонту обуви, художественная или спортивная секция для ребенка, фитнес или йога для вас, а также всё, что вам нужно для повседневной жизни - есть в нескольких минутах от вашего подъезда Внутри проекта расположена парковая территория площадью 3,5 га с игровыми и спортивными площадками, зонами для отдыха, центральной площадью, сухим фонтаном и декоративным прудом. Прилегающая набережная благоустроена для неспешных прогулок и отдыха у воды Мы создали все условия, чтобы вы могли себя поддерживать в отличной физической форме: площадка для воркаута на свежем воздухе, зона для занятий йогой, спортивные студии, отдельная инфраструктура для любителей велоспорта и живописные маршрутры для любителей бега
Максимальные скидки при 100% оплате. Прямая продажа от застройщика! Жилой Комплекс Бизнес класса. Продаётся 2-к квартира №518 общей площадью 56.7 кв.м на 24-м этаже 26 этажного дома. Отделка Whitebox. Особенности: - Квартира доступна к покупке в Trade-In. - Мастер-зона с санузлом и гардеробной. Всё для вашего комфорта и удобства, включая личный санузел и гардероб. - Просторная спальня, в которой можно разместить большую кровать. - Линейная планировка - максимальная функциональность и удобство. - Увеличенная ширина окна/окон - больше света и визуального простора. - Душ помимо ванной - дополнительное удобство для вашей семьи. - Гибкая планировка - создайте пространство по своему вкусу. - Место для игры/занятия спортом - идеальное пространство для активных детей. - Можно оборудовать рабочее место - комфорт для работы и учёбы. - Кухня-гостиная - идеальное пространство для встреч с близкими. - Возможность добавить спальное место - дополнительный комфорт для гостей. - Гардеробная - удобство для хранения и организации вещей. - Лоджия - уютное место для отдыха и тишины. - Вид из окна: двор - Вид из окна: город Квартира с предчистовой отделкой (White box). Вам не придётся заниматься черновыми трудоёмкими работами, а чистовую отделку и дизайн сделаете по своему вкусу. Расположение комплекса: Sky Garden расположен в районе Покровское-Стрешнево. На территории этого района шумит листвой одноименный парк. Зеленый живописный район, реки и каналы поблизости, чистый свежий воздух из подмосковных листов - идеальное место, чтобы ощутить себя частью природы. При этом развитая образовательная, социальная и транспортная инфраструктура оставят вам все преимущества жизни в мегаполисе. Sky Garden - идеальный баланс между природной и городской средой. Транспортная доступность: Всего в 12 минутах пешком до м. Тушинская и 15 минутах до станции "Тушинская" МЦД. На автомобиле: 2 км до Волоколамского шоссе, 2,5 км до МКАД и 15 км до Садового кольца Внутренняя инфраструктура: К вашим услугам современные игровые площадки: тут ваши дети с удовольствием смогут лазить по бревнам, штурмовать горки и стараться не промокнуть, бегая под струями фонтана. В Sky Garden полно возможностей как для совсем маленьких, так и для взрослых. Предусмотрены активности: мастер классы по йоге на английском газоне, воркаут- площадка, велопарковки. Также в вашем распоряжении на территории комплекса будут: поликлиника, аптека, супермаркет, зона для отдыха, сухой фонтан и площадка для подростков. Пространство для работы, оборудованное кофепоинтом и удобными переговорными. Также к вашим услугам кафе и рестораны в коммерческом кластере. Игровая комната, расположенная в центральном лобби, оборудована двухэтажным комплексом, мягкими татами, книжками и играми, способными увлечь ребятню В каждом подъезде на минус первом этаже оборудованы комнаты для хранения взрослых и детских велосипедов, колясок и самокатов Вкуснейшая горячая выпечка, ресторан с любимыми блюдами, надежная мастерская по ремонту обуви, художественная или спортивная секция для ребенка, фитнес или йога для вас, а также всё, что вам нужно для повседневной жизни - есть в нескольких минутах от вашего подъезда Внутри проекта расположена парковая территория площадью 3,5 га с игровыми и спортивными площадками, зонами для отдыха, центральной площадью, сухим фонтаном и декоративным прудом. Прилегающая набережная благоустроена для неспешных прогулок и отдыха у воды Мы создали все условия, чтобы вы могли себя поддерживать в отличной физической форме: площадка для воркаута на свежем воздухе, зона для занятий йогой, спортивные студии, отдельная инфраструктура для любителей велоспорта и живописные маршрутры для любителей бега
Максимальные скидки при 100% оплате. Прямая продажа от застройщика! Жилой Комплекс Бизнес класса. Продаётся 2-к квартира №757 общей площадью 68.9 кв.м на 38-м этаже 44 этажного дома. Без отделки. Особенности: - Квартира доступна к покупке в Trade-In. - Мастер-зона с санузлом и гардеробной. Всё для вашего комфорта и удобства, включая личный санузел и гардероб. - Просторная спальня, в которой можно разместить большую кровать. - Угловая планировка - больше пространства для ваших идей. - Окно в ванной - натуральное освещение для уюта и комфорта. - Увеличенное число окон - Угловое остекление - свет и воздушность в каждой комнате. - Душ помимо ванной - дополнительное удобство для вашей семьи. - Евроформат - просторное и удобное жилье с отличной планировкой. - Гибкая планировка - создайте пространство по своему вкусу. - Место для игры/занятия спортом - идеальное пространство для активных детей. - Можно оборудовать 2 или более рабочих места - пространство для нескольких человек. - Можно оборудовать рабочее место - комфорт для работы и учёбы. - Просторная мягкая зона - комфорт и уют для отдыха всей семьи. - Кухня-гостиная - идеальное пространство для встреч с близкими. - Наличие острова на кухне - удобство и стиль для вашей кухни. - Возможность добавить спальное место - дополнительный комфорт для гостей. - Гардеробная - удобство для хранения и организации вещей. - Ниша под шкаф - компактное и удобное место для вещей. - Лоджия - уютное место для отдыха и тишины. - Вид из окна: двор - Вид из окна: город - Вид из окна: река Сходня - Вид из окна на Сходненский канал Квартира без отделки. Чистый холст для воплощения интерьера вашей мечты. Расположение комплекса: Sky Garden расположен в районе Покровское-Стрешнево. На территории этого района шумит листвой одноименный парк. Зеленый живописный район, реки и каналы поблизости, чистый свежий воздух из подмосковных листов - идеальное место, чтобы ощутить себя частью природы. При этом развитая образовательная, социальная и транспортная инфраструктура оставят вам все преимущества жизни в мегаполисе. Sky Garden - идеальный баланс между природной и городской средой. Транспортная доступность: Всего в 12 минутах пешком до м. Тушинская и 15 минутах до станции "Тушинская" МЦД. На автомобиле: 2 км до Волоколамского шоссе, 2,5 км до МКАД и 15 км до Садового кольца Внутренняя инфраструктура: К вашим услугам современные игровые площадки: тут ваши дети с удовольствием смогут лазить по бревнам, штурмовать горки и стараться не промокнуть, бегая под струями фонтана. В Sky Garden полно возможностей как для совсем маленьких, так и для взрослых. Предусмотрены активности: мастер классы по йоге на английском газоне, воркаут- площадка, велопарковки. Также в вашем распоряжении на территории комплекса будут: поликлиника, аптека, супермаркет, зона для отдыха, сухой фонтан и площадка для подростков. Пространство для работы, оборудованное кофепоинтом и удобными переговорными. Также к вашим услугам кафе и рестораны в коммерческом кластере. Игровая комната, расположенная в центральном лобби, оборудована двухэтажным комплексом, мягкими татами, книжками и играми, способными увлечь ребятню В каждом подъезде на минус первом этаже оборудованы комнаты для хранения взрослых и детских велосипедов, колясок и самокатов Вкуснейшая горячая выпечка, ресторан с любимыми блюдами, надежная мастерская по ремонту обуви, художественная или спортивная секция для ребенка, фитнес или йога для вас, а также всё, что вам нужно для повседневной жизни - есть в нескольких минутах от вашего подъезда Внутри проекта расположена парковая территория площадью 3,5 га с игровыми и спортивными площадками, зонами для отдыха, центральной площадью, сухим фонтаном и декоративным прудом. Прилегающая набережная благоустроена для неспешных прогулок и отдыха у воды Мы создали все условия, чтобы вы могли себя поддерживать в отличной физической форме: площадка для воркаута на свежем воздухе, зона для занятий йогой, спортивные студии, отдельная инфраструктура для любителей велоспорта и живописные маршрутры для любителей бега
Максимальные скидки при 100% оплате. Прямая продажа от застройщика! Жилой Комплекс Бизнес класса. Продаётся 2-к квартира №189 общей площадью 52.5 кв.м на 39-м этаже 44 этажного дома. Отделка Whitebox. Особенности: - Квартира доступна к покупке в Trade-In. - Мастер-зона с санузлом и гардеробной. Всё для вашего комфорта и удобства, включая личный санузел и гардероб. - Просторная спальня, в которой можно разместить большую кровать. - Линейная планировка - максимальная функциональность и удобство. - Увеличенная ширина окна/окон - больше света и визуального простора. - Гостевой санузел - комфорт и удобство для ваших гостей. - Душ помимо ванной - дополнительное удобство для вашей семьи. - Гибкая планировка - создайте пространство по своему вкусу. - Можно оборудовать рабочее место - комфорт для работы и учёбы. - Наличие острова на кухне - удобство и стиль для вашей кухни. - Гардеробная - удобство для хранения и организации вещей. - Ниша под шкаф - компактное и удобное место для вещей. - Лоджия - уютное место для отдыха и тишины. - Вид из окна: город - Вид из окна: река Сходня - Вид из окна на Сходненский канал Квартира с предчистовой отделкой (White box). Вам не придётся заниматься черновыми трудоёмкими работами, а чистовую отделку и дизайн сделаете по своему вкусу. Расположение комплекса: Sky Garden расположен в районе Покровское-Стрешнево. На территории этого района шумит листвой одноименный парк. Зеленый живописный район, реки и каналы поблизости, чистый свежий воздух из подмосковных листов - идеальное место, чтобы ощутить себя частью природы. При этом развитая образовательная, социальная и транспортная инфраструктура оставят вам все преимущества жизни в мегаполисе. Sky Garden - идеальный баланс между природной и городской средой. Транспортная доступность: Всего в 12 минутах пешком до м. Тушинская и 15 минутах до станции "Тушинская" МЦД. На автомобиле: 2 км до Волоколамского шоссе, 2,5 км до МКАД и 15 км до Садового кольца Внутренняя инфраструктура: К вашим услугам современные игровые площадки: тут ваши дети с удовольствием смогут лазить по бревнам, штурмовать горки и стараться не промокнуть, бегая под струями фонтана. В Sky Garden полно возможностей как для совсем маленьких, так и для взрослых. Предусмотрены активности: мастер классы по йоге на английском газоне, воркаут- площадка, велопарковки. Также в вашем распоряжении на территории комплекса будут: поликлиника, аптека, супермаркет, зона для отдыха, сухой фонтан и площадка для подростков. Пространство для работы, оборудованное кофепоинтом и удобными переговорными. Также к вашим услугам кафе и рестораны в коммерческом кластере. Игровая комната, расположенная в центральном лобби, оборудована двухэтажным комплексом, мягкими татами, книжками и играми, способными увлечь ребятню В каждом подъезде на минус первом этаже оборудованы комнаты для хранения взрослых и детских велосипедов, колясок и самокатов Вкуснейшая горячая выпечка, ресторан с любимыми блюдами, надежная мастерская по ремонту обуви, художественная или спортивная секция для ребенка, фитнес или йога для вас, а также всё, что вам нужно для повседневной жизни - есть в нескольких минутах от вашего подъезда Внутри проекта расположена парковая территория площадью 3,5 га с игровыми и спортивными площадками, зонами для отдыха, центральной площадью, сухим фонтаном и декоративным прудом. Прилегающая набережная благоустроена для неспешных прогулок и отдыха у воды Мы создали все условия, чтобы вы могли себя поддерживать в отличной физической форме: площадка для воркаута на свежем воздухе, зона для занятий йогой, спортивные студии, отдельная инфраструктура для любителей велоспорта и живописные маршрутры для любителей бега
Максимальные скидки при 100% оплате. Прямая продажа от застройщика! Жилой Комплекс премиум-класса. Продаётся 3-к квартира №554 общей площадью 82.5 кв.м на 40-м этаже 46 этажного дома. Без отделки. Особенности: - Квартира доступна к покупке в Trade-In. - Мастер-зона с санузлом и гардеробной. Всё для вашего комфорта и удобства, включая личный санузел и гардероб. - Просторная спальня, в которой можно разместить большую кровать. - Линейная планировка - максимальная функциональность и удобство. - Увеличенная ширина окна/окон - больше света и визуального простора. - Душ помимо ванной - дополнительное удобство для вашей семьи. - Ниша под стиральную машину - удобство и экономия пространства. - Евроформат - просторное и удобное жилье с отличной планировкой. - Место для игры/занятия спортом - идеальное пространство для активных детей. - Можно оборудовать рабочее место - комфорт для работы и учёбы. - Просторная мягкая зона - комфорт и уют для отдыха всей семьи. - П-образная утопленная кухня - оптимальное решение для большой семьи. - Возможность добавить спальное место - дополнительный комфорт для гостей. - Гардеробная - удобство для хранения и организации вещей. - Вид из окна: город - Вид из окна на соседний корпус - Премиальный Lifehab Квартал - Виды на центр и Сити - Премиальные лобби с камином, игровой и коворкингом - 6 га собственного парка Квартира без отделки. Чистый холст для воплощения интерьера вашей мечты. Расположение комплекса: Amber City - это не просто квартал. Это место, куда ведут все маршруты, где рождается вдохновение работать и творить, где счастлива семья и жизнь кипит 24/7. Модная архитектура, высокотехнологичные решения и самодостаточная инфраструктура приближают Amber City к лучшим районам Гонконга и Нью-Йорка. Потрясающие виды на Москва-Сити и центр позволяют заряжаться их амбициозностью, не подчиняясь суете. Стремящиеся ввысь небоскребы, благоустроенный парк с зонами отдыха для взрослых и детей, а также многочисленные объекты инфраструктуры возводятся в западной части центра Москвы. Транспортная доступность: Квартал отличается исключительной транспортной доступностью: большая часть значимых мест Москвы находится на расстоянии 15-20 минут. Такое расположение позволит полностью погрузиться в деловую и культурную жизнь столицы и тратить на дорогу только необходимый минимум времени. Общественный транспорт: - Станция метро «Беговая» - 5 минут пешком - Станция «Беговая» (МЦД-1) - 5 минут пешком - Ж/д станция Беговая - 12 минут пешком - Остановка «2-й Хорошёвский проезд» - 3 минуты пешком - Станция метро «Звенигородская» (строящаяся) - 10 минут пешком На автомобиле: - Звенигородское шоссе - 3 минуты - TTK - 5 минут - Хорошёвское шоссе - 9 минут - Садовое кольцо - 12 минут - Красная Пресня - 15 минут - Тверская - 20 минут - Серебряный бор - 8 минут - Строгинский затон - 8 минут - Москва-Сити - 10 минут - Кремль - 20 минут - Аэропорт Шереметьево - 40 минут Внутренняя инфраструктура: Умелая работа над ландшафтом позволила правильно зонировать многоуровневое пространство, общей площадью 6 гектаров, открывая разнообразные возможности для резидентов Amber City и их детей. Главной артерией квартала станет собственный зеленый бульвар. Он начнется с площади у входа на территорию и, объединяя все внутренние пространства, пройдет через ключевые площади с арт-объектами, водными зонами и архитектурными формами. Дополнительные пространства для отдыха будут размещены в закрытых зеленых дворах на стилобате. Здесь будут расположены детские площадки с песочницами, тактильными дорожками, каруселями и природными игровыми элементами. Те, кто привык работать и отдыхать с комфортом, по достоинству оценят тишину зон отдыха, наличие удобных кресел и настила для йоги. В холодное время года будет приятно воспользоваться навесами, оснащенными подогревом и зарядными устройствами. Благодаря разнообразному наполнению в Amber City вы каждый день сможете заняться чем-то интересным. - Поиграть в настольный теннис на столах в специально отведенной для этого безветренной зоне - Заняться йогой на природе - Разделиться на команды и поиграть во французский петанк - Почитать в тишине специально отведенных зон, оборудованных скамейками и шезлонгами - Переждать непогоду под удобными навесами

Реклама: adv@mapestate.ru

Редакция: info@mapestate.ru

О проекте

Контакты

Реклама на сайте

Правообладателям

X
Авторизуйтесь для этого действия
Нажимая на иконку социальной сети для регистрации или авторизации, я соглашаюсь с условиями использования сайта Mapestate.ru и подтверждаю, что ознакомился с политикой обработки персональных данных.