Ваш регион: Москва г
+
Объявления / Продажа / Жилая / Московская обл, г Красногорск
Сортировка:
Продаётся 3-комн.квартира площадью 88.70 кв.м на 6 этаже 9 этажного дома (Корпус 3.1, секция 1) проекта ПИК Ильинские луга. Светлый просторный подъезд на уровне земли, функциональная планировка, большие окна, с отделкой. «Ильинские луга» — масштабный проект с собственной инфраструктурой в 10 километрах от МКАД по Новорижскому шоссе. Квартал возводится в экологичном районе, рядом с музеем-усадьбой «Архангельское» и живописным Лохиным островом — памятником природы с речными черепахами, кемпингом и сплавами по реке. В 20 минутах пути на автомобиле от проекта расположены три станции метро — «Волоколамская», «Тушинская» и «Строгино», а также МЦД «Павшино». Уже в 2028 году в 9 минутах пути на машине откроется новая станция «Ильинская» на Рублёво-Архангельской линии. До крупного торгового центра «Ригамолл» всего 5 минут на автомобиле, а до ТЦ «Твой дом» и гипермаркета «Глобус» — 10 минут. Архитектура и лобби В проекте только 9-этажные дома, окружённые живописными локациями и природными памятниками, — всё это создаёт атмосферу спокойной загородной жизни. Первые этажи домов — просторные и светлые, с быстрыми и тихими лифтами. Благодаря стеклянным дверям в подъезды попадает много солнечного света. У подъездов два выхода: на улицу и во двор — не придётся обходить дом, если оставили машину на парковке, а дети будут выходить гулять, минуя проезжую часть. Инфраструктура проекта На территории квартала будет вся необходимая инфраструктура. В проекте 9 детских садов, два из которых уже работают, 4 школы, одна из которых уже открыта, и современная поликлиника. Через квартал протянется широкий пешеходный бульвар для прогулок и отдыха. Уже открыт ПлейХаб «Гравити» — большая игровая площадка для детей разного возраста с лазательным комплексом, песочной станцией и зонами отдыха для родителей. На первых этажах домов работают магазины, кафе и полезные сервисы. А на парковке установлены зарядные станции для электрокаров. В квартирах продуман каждый метр — мы детально просчитываем все возможные сценарии и способы использовать пространство. Например, большой семье подойдёт квартира с кухней-гостиной, выделенной постирочной и спальнями, разнесёнными по разные стороны гостиной. А кому-то важнее просторная мастер-спальня с гардеробной и собственным санузлом. Для ценителей простора и обилия солнечного света мы предусмотрели квартиры с окнами в пол, террасами, а также французскими, фигурными и открытыми классическими балконами. Артикул - 1001288
Продается 3-к квартира на 8-м этаже 14-этажного нового дома в корпусе 1.1 в ЖК «Аникеевский».
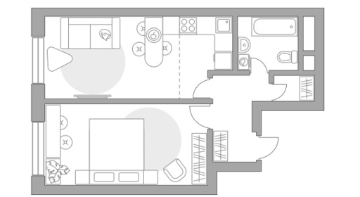
Продаётся 2-комн.квартира площадью 54.10 кв.м на 4 этаже 9 этажного дома (Корпус 4.3, секция 6) проекта ПИК Ильинские луга. Светлый просторный подъезд на уровне земли, функциональная планировка, большие окна, с отделкой. «Ильинские луга» — масштабный проект с собственной инфраструктурой в 10 километрах от МКАД по Новорижскому шоссе. Квартал возводится в экологичном районе, рядом с музеем-усадьбой «Архангельское» и живописным Лохиным островом — памятником природы с речными черепахами, кемпингом и сплавами по реке. В 20 минутах пути на автомобиле от проекта расположены три станции метро — «Волоколамская», «Тушинская» и «Строгино», а также МЦД «Павшино». Уже в 2028 году в 9 минутах пути на машине откроется новая станция «Ильинская» на Рублёво-Архангельской линии. До крупного торгового центра «Ригамолл» всего 5 минут на автомобиле, а до ТЦ «Твой дом» и гипермаркета «Глобус» — 10 минут. Архитектура и лобби В проекте только 9-этажные дома, окружённые живописными локациями и природными памятниками, — всё это создаёт атмосферу спокойной загородной жизни. Первые этажи домов — просторные и светлые, с быстрыми и тихими лифтами. Благодаря стеклянным дверям в подъезды попадает много солнечного света. У подъездов два выхода: на улицу и во двор — не придётся обходить дом, если оставили машину на парковке, а дети будут выходить гулять, минуя проезжую часть. Инфраструктура проекта На территории квартала будет вся необходимая инфраструктура. В проекте 9 детских садов, два из которых уже работают, 4 школы, одна из которых уже открыта, и современная поликлиника. Через квартал протянется широкий пешеходный бульвар для прогулок и отдыха. Уже открыт ПлейХаб «Гравити» — большая игровая площадка для детей разного возраста с лазательным комплексом, песочной станцией и зонами отдыха для родителей. На первых этажах домов работают магазины, кафе и полезные сервисы. А на парковке установлены зарядные станции для электрокаров. В квартирах продуман каждый метр — мы детально просчитываем все возможные сценарии и способы использовать пространство. Например, большой семье подойдёт квартира с кухней-гостиной, выделенной постирочной и спальнями, разнесёнными по разные стороны гостиной. А кому-то важнее просторная мастер-спальня с гардеробной и собственным санузлом. Для ценителей простора и обилия солнечного света мы предусмотрели квартиры с окнами в пол, террасами, а также французскими, фигурными и открытыми классическими балконами. Артикул - 1012331
Продаётся 1-комн.квартира площадью 37.19 кв.м на 2 этаже 9 этажного дома (Корпус 4.2, секция 2) проекта ПИК Ильинские луга. Светлый просторный подъезд на уровне земли, функциональная планировка, большие окна, с отделкой. «Ильинские луга» — масштабный проект с собственной инфраструктурой в 10 километрах от МКАД по Новорижскому шоссе. Квартал возводится в экологичном районе, рядом с музеем-усадьбой «Архангельское» и живописным Лохиным островом — памятником природы с речными черепахами, кемпингом и сплавами по реке. В 20 минутах пути на автомобиле от проекта расположены три станции метро — «Волоколамская», «Тушинская» и «Строгино», а также МЦД «Павшино». Уже в 2028 году в 9 минутах пути на машине откроется новая станция «Ильинская» на Рублёво-Архангельской линии. До крупного торгового центра «Ригамолл» всего 5 минут на автомобиле, а до ТЦ «Твой дом» и гипермаркета «Глобус» — 10 минут. Архитектура и лобби В проекте только 9-этажные дома, окружённые живописными локациями и природными памятниками, — всё это создаёт атмосферу спокойной загородной жизни. Первые этажи домов — просторные и светлые, с быстрыми и тихими лифтами. Благодаря стеклянным дверям в подъезды попадает много солнечного света. У подъездов два выхода: на улицу и во двор — не придётся обходить дом, если оставили машину на парковке, а дети будут выходить гулять, минуя проезжую часть. Инфраструктура проекта На территории квартала будет вся необходимая инфраструктура. В проекте 9 детских садов, два из которых уже работают, 4 школы, одна из которых уже открыта, и современная поликлиника. Через квартал протянется широкий пешеходный бульвар для прогулок и отдыха. Уже открыт ПлейХаб «Гравити» — большая игровая площадка для детей разного возраста с лазательным комплексом, песочной станцией и зонами отдыха для родителей. На первых этажах домов работают магазины, кафе и полезные сервисы. А на парковке установлены зарядные станции для электрокаров. В квартирах продуман каждый метр — мы детально просчитываем все возможные сценарии и способы использовать пространство. Например, большой семье подойдёт квартира с кухней-гостиной, выделенной постирочной и спальнями, разнесёнными по разные стороны гостиной. А кому-то важнее просторная мастер-спальня с гардеробной и собственным санузлом. Для ценителей простора и обилия солнечного света мы предусмотрели квартиры с окнами в пол, террасами, а также французскими, фигурными и открытыми классическими балконами. Артикул - 1015395
Продаётся 1-комн.квартира площадью 34.25 кв.м на 7 этаже 9 этажного дома (Корпус 4.1, секция 6) проекта ПИК Ильинские луга. Светлый просторный подъезд на уровне земли, функциональная планировка, большие окна, с отделкой. «Ильинские луга» — масштабный проект с собственной инфраструктурой в 10 километрах от МКАД по Новорижскому шоссе. Квартал возводится в экологичном районе, рядом с музеем-усадьбой «Архангельское» и живописным Лохиным островом — памятником природы с речными черепахами, кемпингом и сплавами по реке. В 20 минутах пути на автомобиле от проекта расположены три станции метро — «Волоколамская», «Тушинская» и «Строгино», а также МЦД «Павшино». Уже в 2028 году в 9 минутах пути на машине откроется новая станция «Ильинская» на Рублёво-Архангельской линии. До крупного торгового центра «Ригамолл» всего 5 минут на автомобиле, а до ТЦ «Твой дом» и гипермаркета «Глобус» — 10 минут. Архитектура и лобби В проекте только 9-этажные дома, окружённые живописными локациями и природными памятниками, — всё это создаёт атмосферу спокойной загородной жизни. Первые этажи домов — просторные и светлые, с быстрыми и тихими лифтами. Благодаря стеклянным дверям в подъезды попадает много солнечного света. У подъездов два выхода: на улицу и во двор — не придётся обходить дом, если оставили машину на парковке, а дети будут выходить гулять, минуя проезжую часть. Инфраструктура проекта На территории квартала будет вся необходимая инфраструктура. В проекте 9 детских садов, два из которых уже работают, 4 школы, одна из которых уже открыта, и современная поликлиника. Через квартал протянется широкий пешеходный бульвар для прогулок и отдыха. Уже открыт ПлейХаб «Гравити» — большая игровая площадка для детей разного возраста с лазательным комплексом, песочной станцией и зонами отдыха для родителей. На первых этажах домов работают магазины, кафе и полезные сервисы. А на парковке установлены зарядные станции для электрокаров. В квартирах продуман каждый метр — мы детально просчитываем все возможные сценарии и способы использовать пространство. Например, большой семье подойдёт квартира с кухней-гостиной, выделенной постирочной и спальнями, разнесёнными по разные стороны гостиной. А кому-то важнее просторная мастер-спальня с гардеробной и собственным санузлом. Для ценителей простора и обилия солнечного света мы предусмотрели квартиры с окнами в пол, террасами, а также французскими, фигурными и открытыми классическими балконами. Артикул - 1016302
Продается 2-к квартира на 6-м этаже 25-этажного нового дома в корпусе 3 в ЖК «Ильинойс».
Продается 2-к квартира на 19-м этаже 25-этажного нового дома в корпусе 3 в ЖК «Ильинойс».
Продаётся 1-комн.квартира площадью 37.87 кв.м на 4 этаже 9 этажного дома (Корпус 4.2, секция 3) проекта ПИК Ильинские луга. Светлый просторный подъезд на уровне земли, функциональная планировка, большие окна, с отделкой. «Ильинские луга» — масштабный проект с собственной инфраструктурой в 10 километрах от МКАД по Новорижскому шоссе. Квартал возводится в экологичном районе, рядом с музеем-усадьбой «Архангельское» и живописным Лохиным островом — памятником природы с речными черепахами, кемпингом и сплавами по реке. В 20 минутах пути на автомобиле от проекта расположены три станции метро — «Волоколамская», «Тушинская» и «Строгино», а также МЦД «Павшино». Уже в 2028 году в 9 минутах пути на машине откроется новая станция «Ильинская» на Рублёво-Архангельской линии. До крупного торгового центра «Ригамолл» всего 5 минут на автомобиле, а до ТЦ «Твой дом» и гипермаркета «Глобус» — 10 минут. Архитектура и лобби В проекте только 9-этажные дома, окружённые живописными локациями и природными памятниками, — всё это создаёт атмосферу спокойной загородной жизни. Первые этажи домов — просторные и светлые, с быстрыми и тихими лифтами. Благодаря стеклянным дверям в подъезды попадает много солнечного света. У подъездов два выхода: на улицу и во двор — не придётся обходить дом, если оставили машину на парковке, а дети будут выходить гулять, минуя проезжую часть. Инфраструктура проекта На территории квартала будет вся необходимая инфраструктура. В проекте 9 детских садов, два из которых уже работают, 4 школы, одна из которых уже открыта, и современная поликлиника. Через квартал протянется широкий пешеходный бульвар для прогулок и отдыха. Уже открыт ПлейХаб «Гравити» — большая игровая площадка для детей разного возраста с лазательным комплексом, песочной станцией и зонами отдыха для родителей. На первых этажах домов работают магазины, кафе и полезные сервисы. А на парковке установлены зарядные станции для электрокаров. В квартирах продуман каждый метр — мы детально просчитываем все возможные сценарии и способы использовать пространство. Например, большой семье подойдёт квартира с кухней-гостиной, выделенной постирочной и спальнями, разнесёнными по разные стороны гостиной. А кому-то важнее просторная мастер-спальня с гардеробной и собственным санузлом. Для ценителей простора и обилия солнечного света мы предусмотрели квартиры с окнами в пол, террасами, а также французскими, фигурными и открытыми классическими балконами. Артикул - 1015514
Продаётся 1-комн.квартира площадью 34.10 кв.м на 8 этаже 9 этажного дома (Корпус 4.2, секция 1) проекта ПИК Ильинские луга. Светлый просторный подъезд на уровне земли, функциональная планировка, большие окна, с отделкой. «Ильинские луга» — масштабный проект с собственной инфраструктурой в 10 километрах от МКАД по Новорижскому шоссе. Квартал возводится в экологичном районе, рядом с музеем-усадьбой «Архангельское» и живописным Лохиным островом — памятником природы с речными черепахами, кемпингом и сплавами по реке. В 20 минутах пути на автомобиле от проекта расположены три станции метро — «Волоколамская», «Тушинская» и «Строгино», а также МЦД «Павшино». Уже в 2028 году в 9 минутах пути на машине откроется новая станция «Ильинская» на Рублёво-Архангельской линии. До крупного торгового центра «Ригамолл» всего 5 минут на автомобиле, а до ТЦ «Твой дом» и гипермаркета «Глобус» — 10 минут. Архитектура и лобби В проекте только 9-этажные дома, окружённые живописными локациями и природными памятниками, — всё это создаёт атмосферу спокойной загородной жизни. Первые этажи домов — просторные и светлые, с быстрыми и тихими лифтами. Благодаря стеклянным дверям в подъезды попадает много солнечного света. У подъездов два выхода: на улицу и во двор — не придётся обходить дом, если оставили машину на парковке, а дети будут выходить гулять, минуя проезжую часть. Инфраструктура проекта На территории квартала будет вся необходимая инфраструктура. В проекте 9 детских садов, два из которых уже работают, 4 школы, одна из которых уже открыта, и современная поликлиника. Через квартал протянется широкий пешеходный бульвар для прогулок и отдыха. Уже открыт ПлейХаб «Гравити» — большая игровая площадка для детей разного возраста с лазательным комплексом, песочной станцией и зонами отдыха для родителей. На первых этажах домов работают магазины, кафе и полезные сервисы. А на парковке установлены зарядные станции для электрокаров. В квартирах продуман каждый метр — мы детально просчитываем все возможные сценарии и способы использовать пространство. Например, большой семье подойдёт квартира с кухней-гостиной, выделенной постирочной и спальнями, разнесёнными по разные стороны гостиной. А кому-то важнее просторная мастер-спальня с гардеробной и собственным санузлом. Для ценителей простора и обилия солнечного света мы предусмотрели квартиры с окнами в пол, террасами, а также французскими, фигурными и открытыми классическими балконами. Артикул - 1015372
Продаётся квартира-студия площадью 22.00 кв.м на 6 этаже 9 этажного дома (Корпус 3.1, секция 1) проекта ПИК Ильинские луга. Светлый просторный подъезд на уровне земли, функциональная планировка, большие окна, с отделкой. «Ильинские луга» — масштабный проект с собственной инфраструктурой в 10 километрах от МКАД по Новорижскому шоссе. Квартал возводится в экологичном районе, рядом с музеем-усадьбой «Архангельское» и живописным Лохиным островом — памятником природы с речными черепахами, кемпингом и сплавами по реке. В 20 минутах пути на автомобиле от проекта расположены три станции метро — «Волоколамская», «Тушинская» и «Строгино», а также МЦД «Павшино». Уже в 2028 году в 9 минутах пути на машине откроется новая станция «Ильинская» на Рублёво-Архангельской линии. До крупного торгового центра «Ригамолл» всего 5 минут на автомобиле, а до ТЦ «Твой дом» и гипермаркета «Глобус» — 10 минут. Архитектура и лобби В проекте только 9-этажные дома, окружённые живописными локациями и природными памятниками, — всё это создаёт атмосферу спокойной загородной жизни. Первые этажи домов — просторные и светлые, с быстрыми и тихими лифтами. Благодаря стеклянным дверям в подъезды попадает много солнечного света. У подъездов два выхода: на улицу и во двор — не придётся обходить дом, если оставили машину на парковке, а дети будут выходить гулять, минуя проезжую часть. Инфраструктура проекта На территории квартала будет вся необходимая инфраструктура. В проекте 9 детских садов, два из которых уже работают, 4 школы, одна из которых уже открыта, и современная поликлиника. Через квартал протянется широкий пешеходный бульвар для прогулок и отдыха. Уже открыт ПлейХаб «Гравити» — большая игровая площадка для детей разного возраста с лазательным комплексом, песочной станцией и зонами отдыха для родителей. На первых этажах домов работают магазины, кафе и полезные сервисы. А на парковке установлены зарядные станции для электрокаров. В квартирах продуман каждый метр — мы детально просчитываем все возможные сценарии и способы использовать пространство. Например, большой семье подойдёт квартира с кухней-гостиной, выделенной постирочной и спальнями, разнесёнными по разные стороны гостиной. А кому-то важнее просторная мастер-спальня с гардеробной и собственным санузлом. Для ценителей простора и обилия солнечного света мы предусмотрели квартиры с окнами в пол, террасами, а также французскими, фигурными и открытыми классическими балконами. Артикул - 1001293
Новостройки на старте продаж

Реклама: adv@mapestate.ru

Редакция: info@mapestate.ru

О проекте

Контакты

Реклама на сайте

Правообладателям

X
Авторизуйтесь для этого действия
Нажимая на иконку социальной сети для регистрации или авторизации, я соглашаюсь с условиями использования сайта Mapestate.ru и подтверждаю, что ознакомился с политикой обработки персональных данных.
Отправить заявку
Заполните все обязательные поля
Вы не дали согласия на обработку персональных данных и рекламную рассылку
Вы не верно ввели код
Ваши данные отправлены
Нажимая кнопку «Отправить», я соглашаюсь с условиями использования сайта Mapestate.ru и подтверждаю, что ознакомился с политикой обработки персональных данных.