Ваш регион: Москва г
+
Объявления / Продажа / Жилая / Москва г
Сортировка:
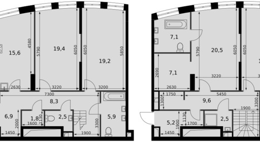
Максимальные скидки при 100% оплате. Корпус сдан! Прямая продажа от застройщика! Жилой Комплекс премиум-класса. Продаётся 3-к квартира №515 в сданном корпусе общей площадью 86.1 кв.м на 38-м этаже 44 этажного дома. Особенности: - Квартира доступна к покупке в Trade-In. - Мастер-зона с санузлом и гардеробной. Всё для вашего комфорта и удобства, включая личный санузел и гардероб. - Угловая планировка - больше пространства для ваших идей. - Увеличенное число окон - Увеличенная высота окна - больше воздуха и света. - Гостевой санузел - комфорт и удобство для ваших гостей. - Душ помимо ванной - дополнительное удобство для вашей семьи. - Евроформат - просторное и удобное жилье с отличной планировкой. - Место для игры/занятия спортом - идеальное пространство для активных детей. - Можно оборудовать рабочее место - комфорт для работы и учёбы. - Просторная мягкая зона - комфорт и уют для отдыха всей семьи. - Линейная кухня - функциональность и практичность в одном решении. - Возможность добавить спальное место - дополнительный комфорт для гостей. - Просторная гардеробная - место для вашего личного пространства. - Вид из окна: улица - Вид из окна на ВЭБ Арена - Успей купить до отмены скидок - Планировка повышенной комфортности - Живите в квартире сейчас, платите потом - Лидер продаж - Идеальная планировка - Готовые квартиры премиум-класса - Внесите больше – цена ниже. - Квартиры премиум-класса на Шелепихинской набережной Расположение комплекса: Премиум-класс прямо на берегу Москвы-реки, с прямым выходом на набережную и потрясающими панорамными видами! На Шелепихинской набережной, расположен причал для речных трамваев. Вам станет доступна единственная столичная транспортная артерия, на которой никогда нет пробок: 20 минут до Москва-Сити, да еще и с вдохновляющими видами по пути. Входные группы домов - это индивидуальные дизайн-проекты, посвященные трем главным местам в жизни Лермонтова: Тарханам, Петербургу и Кавказу, которые объединяют сочетание эстетики и комфорта. Бурная жизнь соседей больше не сможет нарушить ваш покой, а к вам никто не постучит, если вы захотите прибавить громкость в любимом музыкальном треке или Ваши дети захотят устроить ночную пробежку! Живите только по своим правилам. В каждой квартире подключен базовый пакет “Умная квартира” забудьте о беспокойстве о протечке; настройте свои сценарии управления техникой и электричеством; общайтесь с “Умной квартирой” голосом; Можете легко расширить “базовый пакет” и подключить дополнительные опции и устройства, чтобы из любой точки мира управляй работой бытовых приборов и систем, например: включайте разогрев ужина; регулируйте яркость яркость света; регулируйте громкость музыки; настраивайте работу теплых полов; Транспортная доступность: В 50 м до новой станции метро «Звенигородская». Вторая улица от ЦАО и соседство с Москва-Сити. Все виды общественного транспорта, в том числе речные трамвайчики, в пешей доступности. Внутренняя инфраструктура: Основная артерия жизни квартала - центральный бульвар. Вы с радостью обнаружите, что путь до престижных школ и вузов, развлечений и магазинов сжался до нескольких минут езды на машине.
Максимальные скидки при 100% оплате. Корпус сдан! Прямая продажа от застройщика! Жилой Комплекс премиум-класса. Продаётся 4-к квартира №502 в сданном корпусе общей площадью 156.4 кв.м на 35-м этаже 44 этажного дома. Особенности: - Квартира доступна к покупке в Trade-In. - Мастер-зона с санузлом и гардеробной. Всё для вашего комфорта и удобства, включая личный санузел и гардероб. - Просторная спальня, в которой можно разместить большую кровать. - Линейная планировка - максимальная функциональность и удобство. - Окно в ванной - натуральное освещение для уюта и комфорта. - Увеличенное число окон - Увеличенная высота окна - больше воздуха и света. - Просторная ванная - место для расслабления и уединения. - Гостевой санузел - комфорт и удобство для ваших гостей. - Душ помимо ванной - дополнительное удобство для вашей семьи. - Постирочная - организуйте пространство для стирки и сушки вещей. - Место для игры/занятия спортом - идеальное пространство для активных детей. - Дополнительный вход - удобство для семьи и гостей. - Можно оборудовать рабочее место - комфорт для работы и учёбы. - Двухуровневая квартира - пространство и стиль в одном. - Просторная кухня - место для семейных ужинов и кулинарных экспериментов. - Линейная кухня - функциональность и практичность в одном решении. - Гардеробная - удобство для хранения и организации вещей. - Просторная гардеробная - место для вашего личного пространства. - Ниша под шкаф - компактное и удобное место для вещей. - Кладовая - дополнительное пространство для хранения. - Вид из окна: улица - Вид из окна на ВЭБ Арена - Успей купить до отмены скидок - Планировка повышенной комфортности - Живите в квартире сейчас, платите потом - Лидер продаж - Идеальная планировка - Готовые квартиры премиум-класса - Внесите больше – цена ниже. - Квартиры премиум-класса на Шелепихинской набережной Расположение комплекса: Премиум-класс прямо на берегу Москвы-реки, с прямым выходом на набережную и потрясающими панорамными видами! На Шелепихинской набережной, расположен причал для речных трамваев. Вам станет доступна единственная столичная транспортная артерия, на которой никогда нет пробок: 20 минут до Москва-Сити, да еще и с вдохновляющими видами по пути. Входные группы домов - это индивидуальные дизайн-проекты, посвященные трем главным местам в жизни Лермонтова: Тарханам, Петербургу и Кавказу, которые объединяют сочетание эстетики и комфорта. Бурная жизнь соседей больше не сможет нарушить ваш покой, а к вам никто не постучит, если вы захотите прибавить громкость в любимом музыкальном треке или Ваши дети захотят устроить ночную пробежку! Живите только по своим правилам. В каждой квартире подключен базовый пакет “Умная квартира” забудьте о беспокойстве о протечке; настройте свои сценарии управления техникой и электричеством; общайтесь с “Умной квартирой” голосом; Можете легко расширить “базовый пакет” и подключить дополнительные опции и устройства, чтобы из любой точки мира управляй работой бытовых приборов и систем, например: включайте разогрев ужина; регулируйте яркость яркость света; регулируйте громкость музыки; настраивайте работу теплых полов; Транспортная доступность: В 50 м до новой станции метро «Звенигородская». Вторая улица от ЦАО и соседство с Москва-Сити. Все виды общественного транспорта, в том числе речные трамвайчики, в пешей доступности. Внутренняя инфраструктура: Основная артерия жизни квартала - центральный бульвар. Вы с радостью обнаружите, что путь до престижных школ и вузов, развлечений и магазинов сжался до нескольких минут езды на машине.
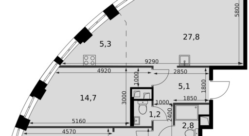
Максимальные скидки при 100% оплате. Прямая продажа от застройщика! Жилой Комплекс премиум-класса. Продаётся 4-к квартира №1078 общей площадью 86.9 кв.м на 35-м этаже 57 этажного дома. Без отделки. Особенности: - Квартира доступна к покупке в Trade-In. - Мастер-зона с санузлом и гардеробной. Всё для вашего комфорта и удобства, включая личный санузел и гардероб. - Просторная спальня, в которой можно разместить большую кровать. - Угловая планировка - больше пространства для ваших идей. - Увеличенная ширина окна/окон - больше света и визуального простора. - Увеличенное число окон - Нестандартное окно - особенный акцент в вашем интерьере. - Увеличенная высота окна - больше воздуха и света. - Панорамное окно - создайте атмосферу открытости и простора. - Гостевой санузел - комфорт и удобство для ваших гостей. - Душ помимо ванной - дополнительное удобство для вашей семьи. - Постирочная - организуйте пространство для стирки и сушки вещей. - Евроформат - просторное и удобное жилье с отличной планировкой. - Место для игры/занятия спортом - идеальное пространство для активных детей. - Можно оборудовать 2 или более рабочих места - пространство для нескольких человек. - Просторная мягкая зона - комфорт и уют для отдыха всей семьи. - Гардеробная - удобство для хранения и организации вещей. - Вид из окна: город - Вид из окна на соседний корпус - Премиальный Lifehab Квартал - Виды на центр и Сити - Премиальные лобби с камином, игровой и коворкингом - 6 га собственного парка Квартира без отделки. Чистый холст для воплощения интерьера вашей мечты. Расположение комплекса: Amber City - это не просто квартал. Это место, куда ведут все маршруты, где рождается вдохновение работать и творить, где счастлива семья и жизнь кипит 24/7. Модная архитектура, высокотехнологичные решения и самодостаточная инфраструктура приближают Amber City к лучшим районам Гонконга и Нью-Йорка. Потрясающие виды на Москва-Сити и центр позволяют заряжаться их амбициозностью, не подчиняясь суете. Стремящиеся ввысь небоскребы, благоустроенный парк с зонами отдыха для взрослых и детей, а также многочисленные объекты инфраструктуры возводятся в западной части центра Москвы. Транспортная доступность: Квартал отличается исключительной транспортной доступностью: большая часть значимых мест Москвы находится на расстоянии 15-20 минут. Такое расположение позволит полностью погрузиться в деловую и культурную жизнь столицы и тратить на дорогу только необходимый минимум времени. Общественный транспорт: - Станция метро «Беговая» - 5 минут пешком - Станция «Беговая» (МЦД-1) - 5 минут пешком - Ж/д станция Беговая - 12 минут пешком - Остановка «2-й Хорошёвский проезд» - 3 минуты пешком - Станция метро «Звенигородская» (строящаяся) - 10 минут пешком На автомобиле: - Звенигородское шоссе - 3 минуты - TTK - 5 минут - Хорошёвское шоссе - 9 минут - Садовое кольцо - 12 минут - Красная Пресня - 15 минут - Тверская - 20 минут - Серебряный бор - 8 минут - Строгинский затон - 8 минут - Москва-Сити - 10 минут - Кремль - 20 минут - Аэропорт Шереметьево - 40 минут Внутренняя инфраструктура: Умелая работа над ландшафтом позволила правильно зонировать многоуровневое пространство, общей площадью 6 гектаров, открывая разнообразные возможности для резидентов Amber City и их детей. Главной артерией квартала станет собственный зеленый бульвар. Он начнется с площади у входа на территорию и, объединяя все внутренние пространства, пройдет через ключевые площади с арт-объектами, водными зонами и архитектурными формами. Дополнительные пространства для отдыха будут размещены в закрытых зеленых дворах на стилобате. Здесь будут расположены детские площадки с песочницами, тактильными дорожками, каруселями и природными игровыми элементами. Те, кто привык работать и отдыхать с комфортом, по достоинству оценят тишину зон отдыха, наличие удобных кресел и настила для йоги. В холодное время года будет приятно воспользоваться навесами, оснащенными подогревом и зарядными устройствами. Благодаря разнообразному наполнению в Amber City вы каждый день сможете заняться чем-то интересным. - Поиграть в настольный теннис на столах в специально отведенной для этого безветренной зоне - Заняться йогой на природе - Разделиться на команды и поиграть во французский петанк - Почитать в тишине специально отведенных зон, оборудованных скамейками и шезлонгами - Переждать непогоду под удобными навесами
Максимальные скидки при 100% оплате. Прямая продажа от застройщика! Жилой Комплекс Бизнес класса. Продаётся 3-к квартира №291 общей площадью 82.3 кв.м на 20-м этаже 31 этажного дома. Без отделки. Особенности: - Квартира доступна к покупке в Trade-In. - Мастер-зона с санузлом и гардеробной. Всё для вашего комфорта и удобства, включая личный санузел и гардероб. - Просторная спальня, в которой можно разместить большую кровать. - Распашная планировка - отличное сочетание удобства и свободы. - Панорамное остекление тёплого окна - наслаждайтесь видами, не выходя из дома. - Увеличенная ширина окна/окон - больше света и визуального простора. - Панорамное окно (1 и более) - раскрывает просторы вашего дома. - Душ помимо ванной - дополнительное удобство для вашей семьи. - Постирочная - организуйте пространство для стирки и сушки вещей. - Постирочная с возможностью установки сушилки - удобство для ежедневных дел. - Евроформат - просторное и удобное жилье с отличной планировкой. - Гибкая планировка - создайте пространство по своему вкусу. - Место для игры/занятия спортом - идеальное пространство для активных детей. - Можно оборудовать 2 или более рабочих места - пространство для нескольких человек. - Можно оборудовать рабочее место - комфорт для работы и учёбы. - Просторная мягкая зона - комфорт и уют для отдыха всей семьи. - Кухня-гостиная - идеальное пространство для встреч с близкими. - Линейная кухня - функциональность и практичность в одном решении. - Наличие острова на кухне - удобство и стиль для вашей кухни. - Возможность добавить спальное место - дополнительный комфорт для гостей. - Гардеробная - удобство для хранения и организации вещей. - Ниша под шкаф - компактное и удобное место для вещей. - Лоджия - уютное место для отдыха и тишины. - Вид из окна: улица - Вид из окна: город - Просторная квартира бизнес-класса от 21 400 руб./мес. Квартира без отделки. Чистый холст для воплощения интерьера вашей мечты. Расположение комплекса: Sky Garden расположен в районе Покровское-Стрешнево. На территории этого района шумит листвой одноименный парк. Зеленый живописный район, реки и каналы поблизости, чистый свежий воздух из подмосковных листов - идеальное место, чтобы ощутить себя частью природы. При этом развитая образовательная, социальная и транспортная инфраструктура оставят вам все преимущества жизни в мегаполисе. Sky Garden - идеальный баланс между природной и городской средой. Транспортная доступность: Всего в 12 минутах пешком до м. Тушинская и 15 минутах до станции "Тушинская" МЦД. На автомобиле: 2 км до Волоколамского шоссе, 2,5 км до МКАД и 15 км до Садового кольца Внутренняя инфраструктура: К вашим услугам современные игровые площадки: тут ваши дети с удовольствием смогут лазить по бревнам, штурмовать горки и стараться не промокнуть, бегая под струями фонтана. В Sky Garden полно возможностей как для совсем маленьких, так и для взрослых. Предусмотрены активности: мастер классы по йоге на английском газоне, воркаут- площадка, велопарковки. Также в вашем распоряжении на территории комплекса будут: поликлиника, аптека, супермаркет, зона для отдыха, сухой фонтан и площадка для подростков. Пространство для работы, оборудованное кофепоинтом и удобными переговорными. Также к вашим услугам кафе и рестораны в коммерческом кластере. Игровая комната, расположенная в центральном лобби, оборудована двухэтажным комплексом, мягкими татами, книжками и играми, способными увлечь ребятню В каждом подъезде на минус первом этаже оборудованы комнаты для хранения взрослых и детских велосипедов, колясок и самокатов Вкуснейшая горячая выпечка, ресторан с любимыми блюдами, надежная мастерская по ремонту обуви, художественная или спортивная секция для ребенка, фитнес или йога для вас, а также всё, что вам нужно для повседневной жизни - есть в нескольких минутах от вашего подъезда Внутри проекта расположена парковая территория площадью 3,5 га с игровыми и спортивными площадками, зонами для отдыха, центральной площадью, сухим фонтаном и декоративным прудом. Прилегающая набережная благоустроена для неспешных прогулок и отдыха у воды Мы создали все условия, чтобы вы могли себя поддерживать в отличной физической форме: площадка для воркаута на свежем воздухе, зона для занятий йогой, спортивные студии, отдельная инфраструктура для любителей велоспорта и живописные маршрутры для любителей бега
Максимальные скидки при 100% оплате. Прямая продажа от застройщика! Жилой Комплекс премиум-класса. Продаётся 2-к квартира №260 общей площадью 59.1 кв.м на 19-м этаже 46 этажного дома. Отделка Whitebox. Особенности: - Квартира доступна к покупке в Trade-In. - Мастер-зона с санузлом и гардеробной. Всё для вашего комфорта и удобства, включая личный санузел и гардероб. - Просторная спальня, в которой можно разместить большую кровать. - Линейная планировка - максимальная функциональность и удобство. - Увеличенная ширина окна/окон - больше света и визуального простора. - Увеличенное число окон - Гостевой санузел - комфорт и удобство для ваших гостей. - Ниша под стиральную машину - удобство и экономия пространства. - Евроформат - просторное и удобное жилье с отличной планировкой. - Гибкая планировка - создайте пространство по своему вкусу. - Место для игры/занятия спортом - идеальное пространство для активных детей. - Можно оборудовать рабочее место - комфорт для работы и учёбы. - Просторная мягкая зона - комфорт и уют для отдыха всей семьи. - Линейная кухня - функциональность и практичность в одном решении. - Возможность добавить спальное место - дополнительный комфорт для гостей. - Проходная кухня-гостиная - идеальное пространство для общения и готовки. - Гардеробная - удобство для хранения и организации вещей. - Вид из окна: город - Вид из окна на соседний корпус - Премиальный Lifehab Квартал - Виды на центр и Сити - Премиальные лобби с камином, игровой и коворкингом - 6 га собственного парка Квартира с предчистовой отделкой (White box). Вам не придётся заниматься черновыми трудоёмкими работами, а чистовую отделку и дизайн сделаете по своему вкусу. Расположение комплекса: Amber City - это не просто квартал. Это место, куда ведут все маршруты, где рождается вдохновение работать и творить, где счастлива семья и жизнь кипит 24/7. Модная архитектура, высокотехнологичные решения и самодостаточная инфраструктура приближают Amber City к лучшим районам Гонконга и Нью-Йорка. Потрясающие виды на Москва-Сити и центр позволяют заряжаться их амбициозностью, не подчиняясь суете. Стремящиеся ввысь небоскребы, благоустроенный парк с зонами отдыха для взрослых и детей, а также многочисленные объекты инфраструктуры возводятся в западной части центра Москвы. Транспортная доступность: Квартал отличается исключительной транспортной доступностью: большая часть значимых мест Москвы находится на расстоянии 15-20 минут. Такое расположение позволит полностью погрузиться в деловую и культурную жизнь столицы и тратить на дорогу только необходимый минимум времени. Общественный транспорт: - Станция метро «Беговая» - 5 минут пешком - Станция «Беговая» (МЦД-1) - 5 минут пешком - Ж/д станция Беговая - 12 минут пешком - Остановка «2-й Хорошёвский проезд» - 3 минуты пешком - Станция метро «Звенигородская» (строящаяся) - 10 минут пешком На автомобиле: - Звенигородское шоссе - 3 минуты - TTK - 5 минут - Хорошёвское шоссе - 9 минут - Садовое кольцо - 12 минут - Красная Пресня - 15 минут - Тверская - 20 минут - Серебряный бор - 8 минут - Строгинский затон - 8 минут - Москва-Сити - 10 минут - Кремль - 20 минут - Аэропорт Шереметьево - 40 минут Внутренняя инфраструктура: Умелая работа над ландшафтом позволила правильно зонировать многоуровневое пространство, общей площадью 6 гектаров, открывая разнообразные возможности для резидентов Amber City и их детей. Главной артерией квартала станет собственный зеленый бульвар. Он начнется с площади у входа на территорию и, объединяя все внутренние пространства, пройдет через ключевые площади с арт-объектами, водными зонами и архитектурными формами. Дополнительные пространства для отдыха будут размещены в закрытых зеленых дворах на стилобате. Здесь будут расположены детские площадки с песочницами, тактильными дорожками, каруселями и природными игровыми элементами. Те, кто привык работать и отдыхать с комфортом, по достоинству оценят тишину зон отдыха, наличие удобных кресел и настила для йоги. В холодное время года будет приятно воспользоваться навесами, оснащенными подогревом и зарядными устройствами. Благодаря разнообразному наполнению в Amber City вы каждый день сможете заняться чем-то интересным. - Поиграть в настольный теннис на столах в специально отведенной для этого безветренной зоне - Заняться йогой на природе - Разделиться на команды и поиграть во французский петанк - Почитать в тишине специально отведенных зон, оборудованных скамейками и шезлонгами - Переждать непогоду под удобными навесами
Максимальные скидки при 100% оплате. Прямая продажа от застройщика! Жилой Комплекс Бизнес класса. Продаётся 2-к квартира №717 общей площадью 59.5 кв.м на 23-м этаже 30 этажного дома. Отделка Whitebox. Особенности: - Квартира доступна к покупке в Trade-In. - Мастер-зона с гардеробной. Просторное место для отдыха и удобного хранения вещей. - Просторная спальня, в которой можно разместить большую кровать. - Распашная планировка - отличное сочетание удобства и свободы. - Гостевой санузел - комфорт и удобство для ваших гостей. - Душ помимо ванной - дополнительное удобство для вашей семьи. - Постирочная с возможностью установки сушилки - удобство для ежедневных дел. - Линейная кухня - функциональность и практичность в одном решении. - Лоджия - уютное место для отдыха и тишины. - Вид из окна: город Квартира с предчистовой отделкой (White box). Вам не придётся заниматься черновыми трудоёмкими работами, а чистовую отделку и дизайн сделаете по своему вкусу. Расположение комплекса: Sky Garden расположен в районе Покровское-Стрешнево. На территории этого района шумит листвой одноименный парк. Зеленый живописный район, реки и каналы поблизости, чистый свежий воздух из подмосковных листов - идеальное место, чтобы ощутить себя частью природы. При этом развитая образовательная, социальная и транспортная инфраструктура оставят вам все преимущества жизни в мегаполисе. Sky Garden - идеальный баланс между природной и городской средой. Транспортная доступность: Всего в 12 минутах пешком до м. Тушинская и 15 минутах до станции "Тушинская" МЦД. На автомобиле: 2 км до Волоколамского шоссе, 2,5 км до МКАД и 15 км до Садового кольца Внутренняя инфраструктура: К вашим услугам современные игровые площадки: тут ваши дети с удовольствием смогут лазить по бревнам, штурмовать горки и стараться не промокнуть, бегая под струями фонтана. В Sky Garden полно возможностей как для совсем маленьких, так и для взрослых. Предусмотрены активности: мастер классы по йоге на английском газоне, воркаут- площадка, велопарковки. Также в вашем распоряжении на территории комплекса будут: поликлиника, аптека, супермаркет, зона для отдыха, сухой фонтан и площадка для подростков. Пространство для работы, оборудованное кофепоинтом и удобными переговорными. Также к вашим услугам кафе и рестораны в коммерческом кластере. Игровая комната, расположенная в центральном лобби, оборудована двухэтажным комплексом, мягкими татами, книжками и играми, способными увлечь ребятню В каждом подъезде на минус первом этаже оборудованы комнаты для хранения взрослых и детских велосипедов, колясок и самокатов Вкуснейшая горячая выпечка, ресторан с любимыми блюдами, надежная мастерская по ремонту обуви, художественная или спортивная секция для ребенка, фитнес или йога для вас, а также всё, что вам нужно для повседневной жизни - есть в нескольких минутах от вашего подъезда Внутри проекта расположена парковая территория площадью 3,5 га с игровыми и спортивными площадками, зонами для отдыха, центральной площадью, сухим фонтаном и декоративным прудом. Прилегающая набережная благоустроена для неспешных прогулок и отдыха у воды Мы создали все условия, чтобы вы могли себя поддерживать в отличной физической форме: площадка для воркаута на свежем воздухе, зона для занятий йогой, спортивные студии, отдельная инфраструктура для любителей велоспорта и живописные маршрутры для любителей бега
Максимальные скидки при 100% оплате. Прямая продажа от застройщика! Жилой Комплекс Бизнес класса. Продаётся 3-к квартира №323 общей площадью 82.3 кв.м на 28-м этаже 31 этажного дома. Без отделки. Особенности: - Квартира доступна к покупке в Trade-In. - Мастер-зона с санузлом и гардеробной. Всё для вашего комфорта и удобства, включая личный санузел и гардероб. - Просторная спальня, в которой можно разместить большую кровать. - Угловая планировка - больше пространства для ваших идей. - Панорамное остекление тёплого окна - наслаждайтесь видами, не выходя из дома. - Увеличенная ширина окна/окон - больше света и визуального простора. - Панорамное окно (1 и более) - раскрывает просторы вашего дома. - Душ помимо ванной - дополнительное удобство для вашей семьи. - Постирочная - организуйте пространство для стирки и сушки вещей. - Постирочная с возможностью установки сушилки - удобство для ежедневных дел. - Евроформат - просторное и удобное жилье с отличной планировкой. - Гибкая планировка - создайте пространство по своему вкусу. - Место для игры/занятия спортом - идеальное пространство для активных детей. - Можно оборудовать 2 или более рабочих места - пространство для нескольких человек. - Можно оборудовать рабочее место - комфорт для работы и учёбы. - Просторная мягкая зона - комфорт и уют для отдыха всей семьи. - Кухня-гостиная - идеальное пространство для встреч с близкими. - Линейная кухня - функциональность и практичность в одном решении. - Наличие острова на кухне - удобство и стиль для вашей кухни. - Возможность добавить спальное место - дополнительный комфорт для гостей. - Гардеробная - удобство для хранения и организации вещей. - Ниша под шкаф - компактное и удобное место для вещей. - Лоджия - уютное место для отдыха и тишины. - Вид из окна: двор - Вид из окна: город - Вид из окна: река Сходня - Вид из окна на Сходненский канал - Просторная квартира бизнес-класса от 21 400 руб./мес. Квартира без отделки. Чистый холст для воплощения интерьера вашей мечты. Расположение комплекса: Sky Garden расположен в районе Покровское-Стрешнево. На территории этого района шумит листвой одноименный парк. Зеленый живописный район, реки и каналы поблизости, чистый свежий воздух из подмосковных листов - идеальное место, чтобы ощутить себя частью природы. При этом развитая образовательная, социальная и транспортная инфраструктура оставят вам все преимущества жизни в мегаполисе. Sky Garden - идеальный баланс между природной и городской средой. Транспортная доступность: Всего в 12 минутах пешком до м. Тушинская и 15 минутах до станции "Тушинская" МЦД. На автомобиле: 2 км до Волоколамского шоссе, 2,5 км до МКАД и 15 км до Садового кольца Внутренняя инфраструктура: К вашим услугам современные игровые площадки: тут ваши дети с удовольствием смогут лазить по бревнам, штурмовать горки и стараться не промокнуть, бегая под струями фонтана. В Sky Garden полно возможностей как для совсем маленьких, так и для взрослых. Предусмотрены активности: мастер классы по йоге на английском газоне, воркаут- площадка, велопарковки. Также в вашем распоряжении на территории комплекса будут: поликлиника, аптека, супермаркет, зона для отдыха, сухой фонтан и площадка для подростков. Пространство для работы, оборудованное кофепоинтом и удобными переговорными. Также к вашим услугам кафе и рестораны в коммерческом кластере. Игровая комната, расположенная в центральном лобби, оборудована двухэтажным комплексом, мягкими татами, книжками и играми, способными увлечь ребятню В каждом подъезде на минус первом этаже оборудованы комнаты для хранения взрослых и детских велосипедов, колясок и самокатов Вкуснейшая горячая выпечка, ресторан с любимыми блюдами, надежная мастерская по ремонту обуви, художественная или спортивная секция для ребенка, фитнес или йога для вас, а также всё, что вам нужно для повседневной жизни - есть в нескольких минутах от вашего подъезда Внутри проекта расположена парковая территория площадью 3,5 га с игровыми и спортивными площадками, зонами для отдыха, центральной площадью, сухим фонтаном и декоративным прудом. Прилегающая набережная благоустроена для неспешных прогулок и отдыха у воды Мы создали все условия, чтобы вы могли себя поддерживать в отличной физической форме: площадка для воркаута на свежем воздухе, зона для занятий йогой, спортивные студии, отдельная инфраструктура для любителей велоспорта и живописные маршрутры для любителей бега
Максимальные скидки при 100% оплате. Прямая продажа от застройщика! Жилой Комплекс Бизнес класса. Продаётся 2-к квартира №147 общей площадью 56.5 кв.м на 31-м этаже 44 этажного дома. Без отделки. Особенности: - Квартира доступна к покупке в Trade-In. - Мастер-зона с санузлом и гардеробной. Всё для вашего комфорта и удобства, включая личный санузел и гардероб. - Просторная спальня, в которой можно разместить большую кровать. - Линейная планировка - максимальная функциональность и удобство. - Увеличенная ширина окна/окон - больше света и визуального простора. - Душ помимо ванной - дополнительное удобство для вашей семьи. - Гибкая планировка - создайте пространство по своему вкусу. - Можно оборудовать рабочее место - комфорт для работы и учёбы. - Наличие острова на кухне - удобство и стиль для вашей кухни. - Гардеробная - удобство для хранения и организации вещей. - Ниша под шкаф - компактное и удобное место для вещей. - Лоджия - уютное место для отдыха и тишины. - Вид из окна: город - Вид из окна: река Сходня - Вид из окна на Сходненский канал Квартира без отделки. Чистый холст для воплощения интерьера вашей мечты. Расположение комплекса: Sky Garden расположен в районе Покровское-Стрешнево. На территории этого района шумит листвой одноименный парк. Зеленый живописный район, реки и каналы поблизости, чистый свежий воздух из подмосковных листов - идеальное место, чтобы ощутить себя частью природы. При этом развитая образовательная, социальная и транспортная инфраструктура оставят вам все преимущества жизни в мегаполисе. Sky Garden - идеальный баланс между природной и городской средой. Транспортная доступность: Всего в 12 минутах пешком до м. Тушинская и 15 минутах до станции "Тушинская" МЦД. На автомобиле: 2 км до Волоколамского шоссе, 2,5 км до МКАД и 15 км до Садового кольца Внутренняя инфраструктура: К вашим услугам современные игровые площадки: тут ваши дети с удовольствием смогут лазить по бревнам, штурмовать горки и стараться не промокнуть, бегая под струями фонтана. В Sky Garden полно возможностей как для совсем маленьких, так и для взрослых. Предусмотрены активности: мастер классы по йоге на английском газоне, воркаут- площадка, велопарковки. Также в вашем распоряжении на территории комплекса будут: поликлиника, аптека, супермаркет, зона для отдыха, сухой фонтан и площадка для подростков. Пространство для работы, оборудованное кофепоинтом и удобными переговорными. Также к вашим услугам кафе и рестораны в коммерческом кластере. Игровая комната, расположенная в центральном лобби, оборудована двухэтажным комплексом, мягкими татами, книжками и играми, способными увлечь ребятню В каждом подъезде на минус первом этаже оборудованы комнаты для хранения взрослых и детских велосипедов, колясок и самокатов Вкуснейшая горячая выпечка, ресторан с любимыми блюдами, надежная мастерская по ремонту обуви, художественная или спортивная секция для ребенка, фитнес или йога для вас, а также всё, что вам нужно для повседневной жизни - есть в нескольких минутах от вашего подъезда Внутри проекта расположена парковая территория площадью 3,5 га с игровыми и спортивными площадками, зонами для отдыха, центральной площадью, сухим фонтаном и декоративным прудом. Прилегающая набережная благоустроена для неспешных прогулок и отдыха у воды Мы создали все условия, чтобы вы могли себя поддерживать в отличной физической форме: площадка для воркаута на свежем воздухе, зона для занятий йогой, спортивные студии, отдельная инфраструктура для любителей велоспорта и живописные маршрутры для любителей бега
Максимальные скидки при 100% оплате. Прямая продажа от застройщика! Жилой Комплекс Бизнес класса. Продаётся 2-к квартира №326 общей площадью 51.6 кв.м на 29-м этаже 31 этажного дома. Отделка Whitebox. Особенности: - Квартира доступна к покупке в Trade-In. - Мастер-зона с гардеробной. Просторное место для отдыха и удобного хранения вещей. - Просторная спальня, в которой можно разместить большую кровать. - Линейная планировка - максимальная функциональность и удобство. - Панорамное остекление тёплого окна - наслаждайтесь видами, не выходя из дома. - Увеличенная ширина окна/окон - больше света и визуального простора. - Панорамное окно (1 и более) - раскрывает просторы вашего дома. - Евроформат - просторное и удобное жилье с отличной планировкой. - Гибкая планировка - создайте пространство по своему вкусу. - Место для игры/занятия спортом - идеальное пространство для активных детей. - Можно оборудовать 2 или более рабочих места - пространство для нескольких человек. - Можно оборудовать рабочее место - комфорт для работы и учёбы. - Просторная мягкая зона - комфорт и уют для отдыха всей семьи. - Кухня-гостиная - идеальное пространство для встреч с близкими. - П-образная утопленная кухня - оптимальное решение для большой семьи. - Возможность добавить спальное место - дополнительный комфорт для гостей. - Гардеробная - удобство для хранения и организации вещей. - Ниша под шкаф - компактное и удобное место для вещей. - Лоджия - уютное место для отдыха и тишины. - Вид из окна: город - Вид из окна: река Сходня - Вид из окна на Сходненский канал Квартира с предчистовой отделкой (White box). Вам не придётся заниматься черновыми трудоёмкими работами, а чистовую отделку и дизайн сделаете по своему вкусу. Расположение комплекса: Sky Garden расположен в районе Покровское-Стрешнево. На территории этого района шумит листвой одноименный парк. Зеленый живописный район, реки и каналы поблизости, чистый свежий воздух из подмосковных листов - идеальное место, чтобы ощутить себя частью природы. При этом развитая образовательная, социальная и транспортная инфраструктура оставят вам все преимущества жизни в мегаполисе. Sky Garden - идеальный баланс между природной и городской средой. Транспортная доступность: Всего в 12 минутах пешком до м. Тушинская и 15 минутах до станции "Тушинская" МЦД. На автомобиле: 2 км до Волоколамского шоссе, 2,5 км до МКАД и 15 км до Садового кольца Внутренняя инфраструктура: К вашим услугам современные игровые площадки: тут ваши дети с удовольствием смогут лазить по бревнам, штурмовать горки и стараться не промокнуть, бегая под струями фонтана. В Sky Garden полно возможностей как для совсем маленьких, так и для взрослых. Предусмотрены активности: мастер классы по йоге на английском газоне, воркаут- площадка, велопарковки. Также в вашем распоряжении на территории комплекса будут: поликлиника, аптека, супермаркет, зона для отдыха, сухой фонтан и площадка для подростков. Пространство для работы, оборудованное кофепоинтом и удобными переговорными. Также к вашим услугам кафе и рестораны в коммерческом кластере. Игровая комната, расположенная в центральном лобби, оборудована двухэтажным комплексом, мягкими татами, книжками и играми, способными увлечь ребятню В каждом подъезде на минус первом этаже оборудованы комнаты для хранения взрослых и детских велосипедов, колясок и самокатов Вкуснейшая горячая выпечка, ресторан с любимыми блюдами, надежная мастерская по ремонту обуви, художественная или спортивная секция для ребенка, фитнес или йога для вас, а также всё, что вам нужно для повседневной жизни - есть в нескольких минутах от вашего подъезда Внутри проекта расположена парковая территория площадью 3,5 га с игровыми и спортивными площадками, зонами для отдыха, центральной площадью, сухим фонтаном и декоративным прудом. Прилегающая набережная благоустроена для неспешных прогулок и отдыха у воды Мы создали все условия, чтобы вы могли себя поддерживать в отличной физической форме: площадка для воркаута на свежем воздухе, зона для занятий йогой, спортивные студии, отдельная инфраструктура для любителей велоспорта и живописные маршрутры для любителей бега
Максимальные скидки при 100% оплате. Корпус сдан! Прямая продажа от застройщика! Жилой Комплекс Бизнес класса. Продаётся 2-к квартира №959 в сданном корпусе общей площадью 61.1 кв.м на 39-м этаже 43 этажного дома. Особенности: - Квартира доступна к покупке в Trade-In. - Просторная спальня, в которой можно разместить большую кровать. - Угловая планировка - больше пространства для ваших идей. - Окно в ванной - натуральное освещение для уюта и комфорта. - Увеличенная ширина окна/окон - больше света и визуального простора. - Панорамное окно (1 и более) - раскрывает просторы вашего дома. - Гостевой санузел - комфорт и удобство для ваших гостей. - Постирочная - организуйте пространство для стирки и сушки вещей. - Гибкая планировка - создайте пространство по своему вкусу. - Можно оборудовать 2 или более рабочих места - пространство для нескольких человек. - Можно оборудовать рабочее место - комфорт для работы и учёбы. - Можно сделать распашные двери - удобный доступ и стильный акцент. - Просторная кухня - место для семейных ужинов и кулинарных экспериментов. - Ниша под шкаф - компактное и удобное место для вещей. - Лоджия - уютное место для отдыха и тишины. - Вид из окна: город Расположение комплекса: Sky Garden расположен в районе Покровское-Стрешнево. На территории этого района шумит листвой одноименный парк. Зеленый живописный район, реки и каналы поблизости, чистый свежий воздух из подмосковных листов - идеальное место, чтобы ощутить себя частью природы. При этом развитая образовательная, социальная и транспортная инфраструктура оставят вам все преимущества жизни в мегаполисе. Sky Garden - идеальный баланс между природной и городской средой. Транспортная доступность: Всего в 12 минутах пешком до м. Тушинская и 15 минутах до станции "Тушинская" МЦД. На автомобиле: 2 км до Волоколамского шоссе, 2,5 км до МКАД и 15 км до Садового кольца Внутренняя инфраструктура: К вашим услугам современные игровые площадки: тут ваши дети с удовольствием смогут лазить по бревнам, штурмовать горки и стараться не промокнуть, бегая под струями фонтана. В Sky Garden полно возможностей как для совсем маленьких, так и для взрослых. Предусмотрены активности: мастер классы по йоге на английском газоне, воркаут- площадка, велопарковки. Также в вашем распоряжении на территории комплекса будут: поликлиника, аптека, супермаркет, зона для отдыха, сухой фонтан и площадка для подростков. Пространство для работы, оборудованное кофепоинтом и удобными переговорными. Также к вашим услугам кафе и рестораны в коммерческом кластере. Игровая комната, расположенная в центральном лобби, оборудована двухэтажным комплексом, мягкими татами, книжками и играми, способными увлечь ребятню В каждом подъезде на минус первом этаже оборудованы комнаты для хранения взрослых и детских велосипедов, колясок и самокатов Вкуснейшая горячая выпечка, ресторан с любимыми блюдами, надежная мастерская по ремонту обуви, художественная или спортивная секция для ребенка, фитнес или йога для вас, а также всё, что вам нужно для повседневной жизни - есть в нескольких минутах от вашего подъезда Внутри проекта расположена парковая территория площадью 3,5 га с игровыми и спортивными площадками, зонами для отдыха, центральной площадью, сухим фонтаном и декоративным прудом. Прилегающая набережная благоустроена для неспешных прогулок и отдыха у воды Мы создали все условия, чтобы вы могли себя поддерживать в отличной физической форме: площадка для воркаута на свежем воздухе, зона для занятий йогой, спортивные студии, отдельная инфраструктура для любителей велоспорта и живописные маршрутры для любителей бега

Реклама: adv@mapestate.ru

Редакция: info@mapestate.ru

О проекте

Контакты

Реклама на сайте

Правообладателям

X
Авторизуйтесь для этого действия
Нажимая на иконку социальной сети для регистрации или авторизации, я соглашаюсь с условиями использования сайта Mapestate.ru и подтверждаю, что ознакомился с политикой обработки персональных данных.