Ваш регион: Москва г
+
Объявления / Продажа / Жилая / Москва г
Сортировка:
Продаётся 1-комн.квартира площадью 31.90 кв.м на 15 этаже 24 этажного дома (Корпус 5.6, секция 4) проекта ПИК Зелёный парк. Светлый просторный подъезд на уровне земли, функциональная планировка, большие окна, с отделкой. «Зелёный парк» — масштабный проект в экологичном районе Зеленограда на северо-западе Москвы. До станции МЦД-3 «Зеленоград-Крюково» — 20 минут пешком. Для автомобилистов путь до Кутузовского шоссе займёт 3 минуты, до Пятницкого шоссе — 15 минут, а до ЦКАД — 20 минут. В районе рядом с проектом есть всё для комфортной жизни: детские сады, школы, поликлиники и магазины. Для прогулок и отдыха рядом расположен парк Победы, Михайловский пруд, парк «Зелёный бор» и Зеленоградский лес. А для занятий спортом есть ледовый дворец «Зеленоградский» и стадион «Юность». Архитектура и лобби Квартал состоит из разноэтажных домов со ступенчатыми фасадами. Цветовая палитра проекта спокойная: оттенки белого и коричневого сочетаются с пастельным розовым и мятным. Дизайн проработан и внутри домов. На первых этажах — просторные и светлые лобби: мягкие тона выразительно дополнят контрастные чёрные и терракотовые акценты, а стеклянные двери дарят пространству много естественного света и ощущение простора. Инфраструктура проекта На территории квартала появятся две школы, два детских сада — один уже открыт — и паркинг. На первых этажах домов работают магазины и полезные сервисы. В уютных дворах-парках появятся детские и спортивные площадки, кофейни и зоны отдыха. А через квартал протянется пешеходный бульвар для неспешных прогулок у дома. Планировки Планировки в проекте максимально продуманные и адаптивные: есть варианты с мастер-спальней, кухней-гостиной, сквозным санузлом и гардеробной. Можно выбрать квартиру с террасой или открытым балконом. Окна в пол и угловые окна дадут ощущение простора, а виды на долину реки Горетовки станут неотъемлемой частью вашего интерьера. Все квартиры сдаются с готовой отделкой — можно сразу переехать. Артикул - 1061361
Продаётся 1-комн.квартира площадью 41.28 кв.м на 31 этаже 32 этажного дома (Корпус 3.4, секция 4) проекта ПИК Квартал Мит. Светлый просторный подъезд на уровне земли, функциональная планировка, большие окна, с отделкой. «Квартал Мит» — проект «Серии плюс» в экологически чистом районе Митино, где по соседству расположен большой лесопарк, а с двух сторон протекают реки Сходня и Журавка. В 20 минутах пешком находится станция метро «Пятницкое шоссе», а за 10 минут на автомобиле можно доехать до МКАД. Район, в котором строится проект, хорошо развит. Рядом школы, детские сады и поликлиники. За 11 минут можно доехать до гипермаркета «Глобус» и крупных фитнес-клубов. В культурном окружении квартала — музей Морского космического флота и Академгородок Митино, где дети могут познакомиться с наукой через игру. Архитектура и лобби Архитектурную концепцию квартала разработало бюро «Слава+». Башня-доминанта и разновысотные корпуса с террасами формируют узнаваемый силуэт современного городского пространства. Терракотовые, белые и графитовые фасады корпусов создают сдержанный фон для башни-доминанты цвета красной охры. На первых этажах — просторные и светлые лобби с дизайнерской отделкой. Здесь появятся зоны ожидания, гостевой санузел, скоростные лифты и помещение для хранения колясок и велосипедов. Инфраструктура проекта На территории квартала появится детский сад на 235 мест. Во дворах-парках появятся игровые и спортивные площадки, зоны отдыха и зелёные лужайки, где можно устроить пикник. Вдоль домов протянется торговая аллея с магазинами, кафе и полезными сервисами, где можно заняться шопингом или устроить тёплый вечер в кругу близких. А для автовладельцев — двухуровневый подземный паркинг. Рядом с «Кварталом Мит» появится школа для 1100 учеников. Планировки В «Квартале Мит» широкий выбор квартир для разных сценариев жизни: есть варианты с мастер-спальней, кухней-гостиной, сквозным санузлом и гардеробной. Окна в пол, балконы и террасы наполнят квартиры светом и расширят пространство, а виды на лес и реки станут неотъемлемой частью вашего интерьера. Все квартиры в проекте с готовой отделкой. Артикул - 1035019
Продаётся 1-комн.квартира площадью 35.24 кв.м на 17 этаже 32 этажного дома (Корпус 3.4, секция 4) проекта ПИК Квартал Мит. Светлый просторный подъезд на уровне земли, функциональная планировка, большие окна, с отделкой. «Квартал Мит» — проект «Серии плюс» в экологически чистом районе Митино, где по соседству расположен большой лесопарк, а с двух сторон протекают реки Сходня и Журавка. В 20 минутах пешком находится станция метро «Пятницкое шоссе», а за 10 минут на автомобиле можно доехать до МКАД. Район, в котором строится проект, хорошо развит. Рядом школы, детские сады и поликлиники. За 11 минут можно доехать до гипермаркета «Глобус» и крупных фитнес-клубов. В культурном окружении квартала — музей Морского космического флота и Академгородок Митино, где дети могут познакомиться с наукой через игру. Архитектура и лобби Архитектурную концепцию квартала разработало бюро «Слава+». Башня-доминанта и разновысотные корпуса с террасами формируют узнаваемый силуэт современного городского пространства. Терракотовые, белые и графитовые фасады корпусов создают сдержанный фон для башни-доминанты цвета красной охры. На первых этажах — просторные и светлые лобби с дизайнерской отделкой. Здесь появятся зоны ожидания, гостевой санузел, скоростные лифты и помещение для хранения колясок и велосипедов. Инфраструктура проекта На территории квартала появится детский сад на 235 мест. Во дворах-парках появятся игровые и спортивные площадки, зоны отдыха и зелёные лужайки, где можно устроить пикник. Вдоль домов протянется торговая аллея с магазинами, кафе и полезными сервисами, где можно заняться шопингом или устроить тёплый вечер в кругу близких. А для автовладельцев — двухуровневый подземный паркинг. Рядом с «Кварталом Мит» появится школа для 1100 учеников. Планировки В «Квартале Мит» широкий выбор квартир для разных сценариев жизни: есть варианты с мастер-спальней, кухней-гостиной, сквозным санузлом и гардеробной. Окна в пол, балконы и террасы наполнят квартиры светом и расширят пространство, а виды на лес и реки станут неотъемлемой частью вашего интерьера. Все квартиры в проекте с готовой отделкой. Артикул - 1034877
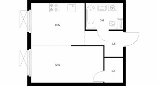
Продается 2-к квартира на 2-м этаже 30-этажного нового дома в корпусе 1 в ЖК «Нижегородская от Гранель».
Продаётся 2-комн.квартира площадью 65.60 кв.м на 13 этаже 27 этажного дома (Корпус 4.5, секция 6) проекта ПИК Амурский парк. Светлый просторный подъезд на уровне земли, функциональная планировка, большие окна, с отделкой. «Амурский парк» — проект «Серии плюс» с видом на Измайловский парк. Квартал возводится на востоке Москвы, в 10 минутах пешком от станций метро «Черкизовская» и МЦК «Локомотив». Доехать от проекта на машине до ТТК или МКАД можно за 15 минут, а до Садового кольца — за 17 минут. В районе вокруг «Амурского парка» есть всё для комфортной жизни: в шаговой доступности школы, детские сады и поликлиника. Всего в 8 минутах от квартала находится уютный Сиреневый сад, а в 20 минутах — Детский Черкизовский парк. За 10 минут на автомобиле можно доехать до парка Лосиный остров. Архитектура и лобби Квартал от архитектурной мастерской М.А.М. органично дополняет городской ландшафт. Разновысотные корпуса в минималистичном стиле сочетают мягкие пластичные линии и строгие геометрические формы. Цветовая гамма фасадов — контраст терракотового и молочно-серого оттенков, которые создают атмосферу тепла и уюта. На первых этажах домов — просторные и светлые лобби с дизайнерской отделкой. Здесь появятся зоны ожидания, скоростные лифты и помещение для хранения колясок и велосипедов. Инфраструктура проекта На территории проекта появится детский сад с бассейном для 250 малышей. В уютных дворах-парках есть места для отдыха, игровые и спортивные площадки. На первых этажах домов откроются магазины, кафе и другие сервисы. А для владельцев автомобилей предусмотрен подземный паркинг. Планировки В проекте большой выбор планировок: есть варианты с мастер-спальней, гардеробной, постирочной и двумя санузлами. Балконы с оригинальными стеклянными ограждениями придадут вашей квартире уникальный стиль. Ещё в проекте можно выбрать квартиру с видом на Измайловский парк — вы сможете ежедневно наслаждаться красотами природы и заряжаться энергией. Артикул - 1021095
Продается 1-к квартира на 4-м этаже 30-этажного нового дома в корпусе 1 в ЖК «Нижегородская от Гранель».
Продаётся 1-комн.квартира площадью 33.60 кв.м на 22 этаже 25 этажного дома (Корпус 18-20, секция 1) проекта ПИК Люблинский парк. Светлый просторный подъезд на уровне земли, функциональная планировка, большие окна, с отделкой. Жилой квартал «Люблинский парк» расположен на юго-востоке Москвы, в шаговой доступности от станции «Братиславская». На метро до центра ехать всего 30 минут. Также недалеко станция МЦД «Перерва», от которой можно уехать в Москву или в область. В проекте 54 жилых корпуса, три школы, семь детских садов, поликлиника. В районе есть все условия для комфортной жизни: торговые центры, школы, детские сады, поликлиники и спортивные центры. Рядом находятся усадьба Люблино, скверы и парки. Различные магазины, кафе и другие сервисы откроются на первых этажах, а на подземных будут паркинги с удобной навигацией. В зелёных дворах без автомобилей мы построим детские площадки и места для отдыха. А ещё «Люблинский парк» стал третьим проектом ПИК с большой игровой площадкой ПлейХаб, которая уже открылась между 1-м и 2-м блоками на безопасном расстоянии от дороги. Новое детское пространство «Остров» воплощает идею бесконечной игры. Ландшафт площадки — это ещё и игровой элемент, который помогает детям придумывать множество самых разнообразных игр. Здесь интересно детям разного возраста — от малышей до подростков. Жителям квартала Люблинский парк и их друзьям доступен проект ПИКСПОРТ — это бесплатные занятия с профессиональными тренерами. Тренировки по разным направлениям, например йога, фитнес, бег, проходят как в группе на улице рядом с домом, так и онлайн. Артикул - 604868
Продаётся 3-комн.квартира площадью 66.65 кв.м на 24 этаже 26 этажного дома (Корпус 3.2, секция 2) проекта ПИК Квартал Мит. Светлый просторный подъезд на уровне земли, функциональная планировка, большие окна, с отделкой. «Квартал Мит» — проект «Серии плюс» в экологически чистом районе Митино, где по соседству расположен большой лесопарк, а с двух сторон протекают реки Сходня и Журавка. В 20 минутах пешком находится станция метро «Пятницкое шоссе», а за 10 минут на автомобиле можно доехать до МКАД. Район, в котором строится проект, хорошо развит. Рядом школы, детские сады и поликлиники. За 11 минут можно доехать до гипермаркета «Глобус» и крупных фитнес-клубов. В культурном окружении квартала — музей Морского космического флота и Академгородок Митино, где дети могут познакомиться с наукой через игру. Архитектура и лобби Архитектурную концепцию квартала разработало бюро «Слава+». Башня-доминанта и разновысотные корпуса с террасами формируют узнаваемый силуэт современного городского пространства. Терракотовые, белые и графитовые фасады корпусов создают сдержанный фон для башни-доминанты цвета красной охры. На первых этажах — просторные и светлые лобби с дизайнерской отделкой. Здесь появятся зоны ожидания, гостевой санузел, скоростные лифты и помещение для хранения колясок и велосипедов. Инфраструктура проекта На территории квартала появится детский сад на 235 мест. Во дворах-парках появятся игровые и спортивные площадки, зоны отдыха и зелёные лужайки, где можно устроить пикник. Вдоль домов протянется торговая аллея с магазинами, кафе и полезными сервисами, где можно заняться шопингом или устроить тёплый вечер в кругу близких. А для автовладельцев — двухуровневый подземный паркинг. Рядом с «Кварталом Мит» появится школа для 1100 учеников. Планировки В «Квартале Мит» широкий выбор квартир для разных сценариев жизни: есть варианты с мастер-спальней, кухней-гостиной, сквозным санузлом и гардеробной. Окна в пол, балконы и террасы наполнят квартиры светом и расширят пространство, а виды на лес и реки станут неотъемлемой частью вашего интерьера. Все квартиры в проекте с готовой отделкой. Артикул - 1034370
Продается 1-к квартира на 18-м этаже 30-этажного нового дома в корпусе 1 в ЖК «Нижегородская от Гранель».
Продаётся 1-комн.квартира площадью 34.20 кв.м на 12 этаже 24 этажного дома (Корпус 3.5, секция 2) проекта ПИК Кавказский бульвар 51. Светлый просторный подъезд на уровне земли, функциональная планировка, большие окна, с отделкой. «Кавказский бульвар 51» — современный квартал в районе Царицыно на юге Москвы. До метро «Кантемировская» 17 минут пешком, а за 20 можно дойти до станции «Чертаново». В 10 минутах на машине — МКАД, в 11 минутах — Варшавское шоссе, а в 16 минутах — ТТК. В районе вокруг «Кавказского бульвара 51» есть всё для комфортной жизни: детские сады, школы, поликлиники, магазины и торговые центры. Девять минут на машине — и вы у музея-заповедника «Царицыно». До Аршиновского парка от проекта можно дойти пешком за 8 минут, а до парка «Сосенки» — за 13 минут. Архитектура и лобби Архитектурную концепцию корпусов «Серии плюс» разработало бюро «Сага». Доминантой проекта станет 32-этажное здание-скульптура, чья активная пластика с цветовыми вкраплениями приковывает взгляды. Другие корпуса поддерживают её образ и не теряются на фоне за счёт фасадных и цветовых решений. Дизайн проработан и внутри домов. На первых этажах — просторные и светлые лобби с дизайнерской отделкой. Здесь появятся зоны ожидания, кондиционеры, скоростные лифты и помещение для хранения колясок и велосипедов. Инфраструктура проекта На территории проекта появятся детский сад и школа. На первых этажах откроются магазины, кафе, салоны красоты и другие сервисы. А для владельцев автомобилей предусмотрены многоуровневый и подземные паркинги. В уютных дворах-парках есть места для отдыха и детские площадки. Через квартал протянется пешеходный бульвар, где приятно гулять, отдыхать на удобных скамейках и шезлонгах или играть в настольный теннис. Маленькие жители оценят современные детские площадки с каруселями, горками и лазательными комплексами. Для любителей спорта в квартале появится СпортПарк — большое пространство для командных игр и индивидуальных тренировок. Планировки Квартиры с умными планировками подойдут для любого сценария жизни: есть варианты с мастер-спальней, гардеробной и постирочной. Увеличенные окна дадут больше естественного света. А угловые окна и террасы позволят создать собственное уникальное пространство для работы или отдыха. Артикул - 998613
Новостройки на старте продаж

Реклама: adv@mapestate.ru

Редакция: info@mapestate.ru

О проекте

Контакты

Реклама на сайте

Правообладателям

X
Авторизуйтесь для этого действия
Нажимая на иконку социальной сети для регистрации или авторизации, я соглашаюсь с условиями использования сайта Mapestate.ru и подтверждаю, что ознакомился с политикой обработки персональных данных.
Отправить заявку
Заполните все обязательные поля
Вы не дали согласия на обработку персональных данных и рекламную рассылку
Вы не верно ввели код
Ваши данные отправлены
Нажимая кнопку «Отправить», я соглашаюсь с условиями использования сайта Mapestate.ru и подтверждаю, что ознакомился с политикой обработки персональных данных.