Ваш регион: Москва г
+
Объявления / Продажа / Жилая / Москва г
Сортировка:
Продается 1-к квартира на 8-м этаже 39-этажного нового дома в корпусе 1 в ЖК «Мнёвники от Гранель».
Продаётся 2-комн.квартира площадью 53.20 кв.м на 5 этаже 43 этажного дома (Корпус 1.1, секция 1) проекта ПИК 2-й Иртышский. Светлый просторный подъезд на уровне земли, функциональная планировка, большие окна, с отделкой. «2-й Иртышский» возводится на востоке Москвы, между тремя станциями метро — «Щёлковская», «Черкизовская» и «Бульвар Рокоссовского». Автомобилисты оценят удобные выезды на Щёлковское шоссе и СВХ, а дорога на машине до МКАД займёт около 14 минут, до ТТК — 20 минут. Проект строится в районе с развитой инфраструктурой. Здесь работают детские сады, школы, поликлиники и спортивные комплексы. До ближайшего крупного ТРЦ «Щёлковский» можно доехать на машине за 12 минут. Вокруг много парков: всего 15 минут пешком — и вы в «Сиреневом саду», а дорога до парка «Лосиный остров» или Гольяновского пруда займёт 6 минут на авто. Архитектура и лобби Проект состоит из зданий разной высоты и разной по характеру архитектуры. Узнаваемой доминантой квартала станет башня из стекла и металла. На первых этажах домов — просторные и светлые лобби с дизайнерской отделкой. Здесь будут зоны ожидания, современные лифты и помещения для хранения колясок и велосипедов. Инфраструктура проекта В проекте будет вся необходимая инфраструктура: детский сад на 350 малышей и школа на 950 мест. Через весь квартал протянется пешеходный бульвар для прогулок и отдыха на свежем воздухе. А на первых этажах домов откроются кафе, магазины, пункты выдачи маркетплейсов и другие полезные сервисы. Планировки Во «2-м Иртышском» вы найдёте планировки с мастер-спальней с собственной ванной и гардеробной, компактной кухней-нишей, постирочной и сквозным санузлом. Семьям с детьми понравятся планировки со спальнями, разнесёнными по разные стороны гостиной. А ценители красивых пейзажей могут выбрать квартиру с живописным видом на парк Лосиный Остров. Артикул - 980601
Продаётся 1-комн.квартира площадью 38.00 кв.м на 3 этаже 43 этажного дома (Корпус 1.1, секция 1) проекта ПИК 2-й Иртышский. Светлый просторный подъезд на уровне земли, функциональная планировка, большие окна, с отделкой. «2-й Иртышский» возводится на востоке Москвы, между тремя станциями метро — «Щёлковская», «Черкизовская» и «Бульвар Рокоссовского». Автомобилисты оценят удобные выезды на Щёлковское шоссе и СВХ, а дорога на машине до МКАД займёт около 14 минут, до ТТК — 20 минут. Проект строится в районе с развитой инфраструктурой. Здесь работают детские сады, школы, поликлиники и спортивные комплексы. До ближайшего крупного ТРЦ «Щёлковский» можно доехать на машине за 12 минут. Вокруг много парков: всего 15 минут пешком — и вы в «Сиреневом саду», а дорога до парка «Лосиный остров» или Гольяновского пруда займёт 6 минут на авто. Архитектура и лобби Проект состоит из зданий разной высоты и разной по характеру архитектуры. Узнаваемой доминантой квартала станет башня из стекла и металла. На первых этажах домов — просторные и светлые лобби с дизайнерской отделкой. Здесь будут зоны ожидания, современные лифты и помещения для хранения колясок и велосипедов. Инфраструктура проекта В проекте будет вся необходимая инфраструктура: детский сад на 350 малышей и школа на 950 мест. Через весь квартал протянется пешеходный бульвар для прогулок и отдыха на свежем воздухе. А на первых этажах домов откроются кафе, магазины, пункты выдачи маркетплейсов и другие полезные сервисы. Планировки Во «2-м Иртышском» вы найдёте планировки с мастер-спальней с собственной ванной и гардеробной, компактной кухней-нишей, постирочной и сквозным санузлом. Семьям с детьми понравятся планировки со спальнями, разнесёнными по разные стороны гостиной. А ценители красивых пейзажей могут выбрать квартиру с живописным видом на парк Лосиный Остров. Артикул - 980577
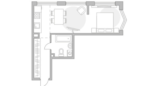
Продаётся 1-комн.квартира площадью 33.60 кв.м на 18 этаже 25 этажного дома (Корпус 19, секция 1) проекта ПИК Люблинский парк. Светлый просторный подъезд на уровне земли, функциональная планировка, большие окна, с отделкой. Жилой квартал «Люблинский парк» расположен на юго-востоке Москвы, в шаговой доступности от станции «Братиславская». На метро до центра ехать всего 30 минут. Также недалеко станция МЦД «Перерва», от которой можно уехать в Москву или в область. В проекте 54 жилых корпуса, три школы, семь детских садов, поликлиника. В районе есть все условия для комфортной жизни: торговые центры, школы, детские сады, поликлиники и спортивные центры. Рядом находятся усадьба Люблино, скверы и парки. Различные магазины, кафе и другие сервисы откроются на первых этажах, а на подземных будут паркинги с удобной навигацией. В зелёных дворах без автомобилей мы построим детские площадки и места для отдыха. А ещё «Люблинский парк» стал третьим проектом ПИК с большой игровой площадкой ПлейХаб, которая уже открылась между 1-м и 2-м блоками на безопасном расстоянии от дороги. Новое детское пространство «Остров» воплощает идею бесконечной игры. Ландшафт площадки — это ещё и игровой элемент, который помогает детям придумывать множество самых разнообразных игр. Здесь интересно детям разного возраста — от малышей до подростков. Жителям квартала Люблинский парк и их друзьям доступен проект ПИКСПОРТ — это бесплатные занятия с профессиональными тренерами. Тренировки по разным направлениям, например йога, фитнес, бег, проходят как в группе на улице рядом с домом, так и онлайн. Артикул - 605245
Продаётся 1-комн.квартира площадью 31.70 кв.м на 2 этаже 9 этажного дома (Корпус 1.1.6, секция 6) проекта ПИК Онежский вал. Светлый просторный подъезд на уровне земли, функциональная планировка, большие окна, с отделкой. «Онежский вал» — квартал «Серии плюс» с продуманной архитектурой в историческом районе Западное Дегунино на севере Москвы. До станции метро «Селигерская» можно дойти за 10 минут, а до МЦД «Моссельмаш» — 15 минут. Автомобилисты оценят удобный выезд на Дмитровское шоссе, до которого всего пара минут пути, а до МСД и СВХ — 10 минут. Район, в котором строится проект, хорошо развит и окружён парками. В шаговой доступности есть школы, детские сады и поликлиники. В 14 минутах пешком от проекта работают торговые центры. Рядом с кварталом несколько природных зон: 11 минут пешком до парка им. Святослава Фёдорова и 15 минут до Орловского сада. Архитектура и лобби Архитектура квартала навеяна северной природой: разновысотные здания повторяют живописные линии северных скал и высоких хвойных деревьев. Это отражено и в колористике — фасады окрашены в цвета серого гранита, сосновой коры и серебристой глади воды. Дизайн лобби на первых этажах домов выполнен в стиле современного минимализма. Для комфорта жителей и их гостей в лобби есть зона ожидания, быстрые тихие лифты и помещение для хранения колясок и велосипедов. Инфраструктура В проекте появится детский сад на 350 мест, школа для 800 учеников и современная поликлиника. А ещё четырёхэтажный физкультурный комплекс с бассейном и деловое пространство ЛАВИН воркплейс с современными офисами, пространствами для работы и ритейлом. Благоустройство в проекте навеяно северной природой. Через квартал протянется пешеходный бульвар для прогулок и отдыха на свежем воздухе. Во дворах будут ждать зелёные парки с местами для отдыха, детскими и спортивными площадками. На первых этажах домов — торговая аллея с магазинами, кафе и полезными сервисами. А для владельцев автомобилей построим двухуровневый подземный и два наземных паркинга. Планировки В «Онежском валу» широкий выбор планировок с мастер-спальнями с собственной ванной, просторными кухнями-гостиными, компактными кухнями-нишами и двумя санузлами. Для ценителей простора и обилия солнечного света есть квартиры с панорамными окнами в пол, террасами, открытыми, французскими и угловыми балконами. Артикул - 1058406
Продаётся 2-комн.квартира площадью 51.20 кв.м на 22 этаже 27 этажного дома (Корпус 14, секция 4) проекта ПИК Митинский лес. Светлый просторный подъезд на уровне земли, функциональная планировка, большие окна, с отделкой. «Митинский лес» возводится в Митино — районе, известном хорошей экологией. По соседству с домами протянулся большой парк. За 20 минут можно дойти от проекта до метро «Пятницкое шоссе», а за 30 — доехать на автомобиле до центра Москвы. Район, в котором строится проект, хорошо развит. Рядом школы, детские сады и поликлиники. За 11 минут можно доехать до гипермаркета «Глобус» и крупных фитнес-клубов. В культурном окружении квартала — музей Морского космического флота и Академгородок Митино, где дети могут познакомиться с наукой через игру. Инфраструктура проекта На территории квартала будет вся необходимая инфраструктура: школа для 1100 учеников и два детских сада — один из них, на 150 мест, уже открыт. Во дворах — благоустроенные зелёные парки с местами для отдыха, детскими и спортивными площадками. Через квартал протянется широкий пешеходный бульвар для прогулок на свежем воздухе. На первых этажах домов работают магазины, кафе и полезные сервисы. А для владельцев автомобилей предусмотрены подземные паркинги. Планировки В проекте «Митинский лес» широкий выбор планировок: от компактных и продуманных студий до просторных четырёхкомнатных квартир для большой семьи. Есть варианты с кухней-гостиной, гардеробной, постирочной и двумя санузлами. Для тех, кому важно дополнительное пространство, есть планировки с балконом или собственной лоджией. Квартиры сдаются с отделкой на выбор: готовая — для тех, кто хочет переехать сразу, или без отделки — чтобы сделать всё по-своему и воплотить самые смелые дизайнерские идеи. Артикул - 860393
Продаётся 2-комн.квартира площадью 48.90 кв.м на 25 этаже 27 этажного дома (Корпус 14, секция 4) проекта ПИК Митинский лес. Светлый просторный подъезд на уровне земли, функциональная планировка, большие окна, с отделкой. «Митинский лес» возводится в Митино — районе, известном хорошей экологией. По соседству с домами протянулся большой парк. За 20 минут можно дойти от проекта до метро «Пятницкое шоссе», а за 30 — доехать на автомобиле до центра Москвы. Район, в котором строится проект, хорошо развит. Рядом школы, детские сады и поликлиники. За 11 минут можно доехать до гипермаркета «Глобус» и крупных фитнес-клубов. В культурном окружении квартала — музей Морского космического флота и Академгородок Митино, где дети могут познакомиться с наукой через игру. Инфраструктура проекта На территории квартала будет вся необходимая инфраструктура: школа для 1100 учеников и два детских сада — один из них, на 150 мест, уже открыт. Во дворах — благоустроенные зелёные парки с местами для отдыха, детскими и спортивными площадками. Через квартал протянется широкий пешеходный бульвар для прогулок на свежем воздухе. На первых этажах домов работают магазины, кафе и полезные сервисы. А для владельцев автомобилей предусмотрены подземные паркинги. Планировки В проекте «Митинский лес» широкий выбор планировок: от компактных и продуманных студий до просторных четырёхкомнатных квартир для большой семьи. Есть варианты с кухней-гостиной, гардеробной, постирочной и двумя санузлами. Для тех, кому важно дополнительное пространство, есть планировки с балконом или собственной лоджией. Квартиры сдаются с отделкой на выбор: готовая — для тех, кто хочет переехать сразу, или без отделки — чтобы сделать всё по-своему и воплотить самые смелые дизайнерские идеи. Артикул - 860446
Продаётся 3-комн.квартира площадью 77.50 кв.м на 15 этаже 16 этажного дома (Корпус 2.6/1.1, секция 1) проекта ПИК Бунинская набережная. Светлый просторный подъезд на уровне земли, функциональная планировка, большие окна, с отделкой. «Бунинская набережная» — камерный квартал «Серии плюс» в Новой Москве, на берегу Ивановского пруда. До станции метро «Потапово» 18 минут пешком, а до метро «Бунинская аллея» — 12 минут на машине. Дорога на автомобиле до Солнцево-Бутово-Варшавского шоссе займёт 9 минут, а до МКАД — 17 минут. В шаговой доступности от проекта есть школы, детские сады, поликлиника, фитнес-клубы и магазины. До гипермаркета «Глобус» можно доехать на машине за 8 минут. В окружении квартала несколько природных зон: в минуте пешком — Ивановский пруд, за 17 минут можно доехать на автомобиле до Бутовского лесопарка, а за 20 минут — до заказника Южное Бутово. Архитектура и лобби При создании концепции проекта архитекторы бюро КК вдохновились локацией. Природные оттенки и активная пластика корпусов напоминают рельефные выступы на берегу, а окна отражают водную гладь, визуально объединяя дома с природой. На первых этажах домов — светлые и просторные лобби по авторскому дизайн-проекту. Мягкие ненавязчивые цвета гармонируют с металлизированными вставками. Для комфорта жителей в лобби предусмотрены два выхода и быстрые тихие лифты. Инфраструктура проекта По соседству с «Бунинской набережной» расположен ещё один квартал ПИК «Бунинские луга», где уже открыты детская и взрослая поликлиники, 5 детских садов и 2 школы ПИК. В будущем здесь появится ещё одна школа и детский сад. Открыта игровая площадка ПлейХаб «Пирамиды» и скейт-парк. На территории самого квартала «Бунинская набережная» появится пешеходный бульвар для прогулок и отдыха. Во дворах — зелёные парки с игровыми и спортивными площадками. На первых этажах домов откроются магазины, кафе и полезные сервисы, на подземном этаже — паркинг для автомобилей. А всего в минуте ходьбы — Ивановский пруд, который мы благоустроим для неспешных прогулок и отдыха у воды. Планировки В «Бунинской набережной» можно подобрать квартиру, которая подходит именно для вашего сценария жизни. ПИК продумал разнесённые спальни и постирочные для семей с нескольким детьми. Добавили в проект квартиры с террасами, которые особенно понравятся тем, кто проводит много времени дома. Можно выбрать квартиру с видом на воду или остановиться на варианте с видом на тихий зелёный двор. Квартиры сдаются с отделкой на выбор: готовая — для тех, кто хочет переехать сразу, и предчистовая — чтобы сделать финальную часть ремонта самостоятельно и реализовать собственный дизайн. Артикул - 968442
Продаётся 1-комн.квартира площадью 36.30 кв.м на 7 этаже 16 этажного дома (Корпус 2.6/1.5, секция 5) проекта ПИК Бунинская набережная. Светлый просторный подъезд на уровне земли, функциональная планировка, большие окна, с отделкой. «Бунинская набережная» — камерный квартал «Серии плюс» в Новой Москве, на берегу Ивановского пруда. До станции метро «Потапово» 18 минут пешком, а до метро «Бунинская аллея» — 12 минут на машине. Дорога на автомобиле до Солнцево-Бутово-Варшавского шоссе займёт 9 минут, а до МКАД — 17 минут. В шаговой доступности от проекта есть школы, детские сады, поликлиника, фитнес-клубы и магазины. До гипермаркета «Глобус» можно доехать на машине за 8 минут. В окружении квартала несколько природных зон: в минуте пешком — Ивановский пруд, за 17 минут можно доехать на автомобиле до Бутовского лесопарка, а за 20 минут — до заказника Южное Бутово. Архитектура и лобби При создании концепции проекта архитекторы бюро КК вдохновились локацией. Природные оттенки и активная пластика корпусов напоминают рельефные выступы на берегу, а окна отражают водную гладь, визуально объединяя дома с природой. На первых этажах домов — светлые и просторные лобби по авторскому дизайн-проекту. Мягкие ненавязчивые цвета гармонируют с металлизированными вставками. Для комфорта жителей в лобби предусмотрены два выхода и быстрые тихие лифты. Инфраструктура проекта По соседству с «Бунинской набережной» расположен ещё один квартал ПИК «Бунинские луга», где уже открыты детская и взрослая поликлиники, 5 детских садов и 2 школы ПИК. В будущем здесь появится ещё одна школа и детский сад. Открыта игровая площадка ПлейХаб «Пирамиды» и скейт-парк. На территории самого квартала «Бунинская набережная» появится пешеходный бульвар для прогулок и отдыха. Во дворах — зелёные парки с игровыми и спортивными площадками. На первых этажах домов откроются магазины, кафе и полезные сервисы, на подземном этаже — паркинг для автомобилей. А всего в минуте ходьбы — Ивановский пруд, который мы благоустроим для неспешных прогулок и отдыха у воды. Планировки В «Бунинской набережной» можно подобрать квартиру, которая подходит именно для вашего сценария жизни. ПИК продумал разнесённые спальни и постирочные для семей с нескольким детьми. Добавили в проект квартиры с террасами, которые особенно понравятся тем, кто проводит много времени дома. Можно выбрать квартиру с видом на воду или остановиться на варианте с видом на тихий зелёный двор. Квартиры сдаются с отделкой на выбор: готовая — для тех, кто хочет переехать сразу, и предчистовая — чтобы сделать финальную часть ремонта самостоятельно и реализовать собственный дизайн. Артикул - 969243
Продаётся квартира-студия площадью 28.90 кв.м на 16 этаже 28 этажного дома (Корпус 5.4, секция 5) проекта ПИК Зелёный парк. Светлый просторный подъезд на уровне земли, функциональная планировка, большие окна, с отделкой. «Зелёный парк» — масштабный проект в экологичном районе Зеленограда на северо-западе Москвы. До станции МЦД-3 «Зеленоград-Крюково» — 20 минут пешком. Для автомобилистов путь до Кутузовского шоссе займёт 3 минуты, до Пятницкого шоссе — 15 минут, а до ЦКАД — 20 минут. В районе рядом с проектом есть всё для комфортной жизни: детские сады, школы, поликлиники и магазины. Для прогулок и отдыха рядом расположен парк Победы, Михайловский пруд, парк «Зелёный бор» и Зеленоградский лес. А для занятий спортом есть ледовый дворец «Зеленоградский» и стадион «Юность». Архитектура и лобби Квартал состоит из разноэтажных домов со ступенчатыми фасадами. Цветовая палитра проекта спокойная: оттенки белого и коричневого сочетаются с пастельным розовым и мятным. Дизайн проработан и внутри домов. На первых этажах — просторные и светлые лобби: мягкие тона выразительно дополнят контрастные чёрные и терракотовые акценты, а стеклянные двери дарят пространству много естественного света и ощущение простора. Инфраструктура проекта На территории квартала появятся две школы, два детских сада — один уже открыт — и паркинг. На первых этажах домов работают магазины и полезные сервисы. В уютных дворах-парках появятся детские и спортивные площадки, кофейни и зоны отдыха. А через квартал протянется пешеходный бульвар для неспешных прогулок у дома. Планировки Планировки в проекте максимально продуманные и адаптивные: есть варианты с мастер-спальней, кухней-гостиной, сквозным санузлом и гардеробной. Можно выбрать квартиру с террасой или открытым балконом. Окна в пол и угловые окна дадут ощущение простора, а виды на долину реки Горетовки станут неотъемлемой частью вашего интерьера. Все квартиры сдаются с готовой отделкой — можно сразу переехать. Артикул - 1031459
Новостройки на старте продаж

Реклама: adv@mapestate.ru

Редакция: info@mapestate.ru

О проекте

Контакты

Реклама на сайте

Правообладателям

X
Авторизуйтесь для этого действия
Нажимая на иконку социальной сети для регистрации или авторизации, я соглашаюсь с условиями использования сайта Mapestate.ru и подтверждаю, что ознакомился с политикой обработки персональных данных.
Отправить заявку
Заполните все обязательные поля
Вы не дали согласия на обработку персональных данных и рекламную рассылку
Вы не верно ввели код
Ваши данные отправлены
Нажимая кнопку «Отправить», я соглашаюсь с условиями использования сайта Mapestate.ru и подтверждаю, что ознакомился с политикой обработки персональных данных.