Ваш регион: Москва г
+
Объявления / Продажа / Жилая / Москва г
Сортировка:
Продаётся 1-комн.квартира площадью 33.30 кв.м на 14 этаже 27 этажного дома (Корпус 4.3, секция 3) проекта ПИК Амурский парк. Светлый просторный подъезд на уровне земли, функциональная планировка, большие окна, с отделкой. «Амурский парк» — проект «Серии плюс» с видом на Измайловский парк. Квартал возводится на востоке Москвы, в 10 минутах пешком от станций метро «Черкизовская» и МЦК «Локомотив». Доехать от проекта на машине до ТТК или МКАД можно за 15 минут, а до Садового кольца — за 17 минут. В районе вокруг «Амурского парка» есть всё для комфортной жизни: в шаговой доступности школы, детские сады и поликлиника. Всего в 8 минутах от квартала находится уютный Сиреневый сад, а в 20 минутах — Детский Черкизовский парк. За 10 минут на автомобиле можно доехать до парка Лосиный остров. Архитектура и лобби Квартал от архитектурной мастерской М.А.М. органично дополняет городской ландшафт. Разновысотные корпуса в минималистичном стиле сочетают мягкие пластичные линии и строгие геометрические формы. Цветовая гамма фасадов — контраст терракотового и молочно-серого оттенков, которые создают атмосферу тепла и уюта. На первых этажах домов — просторные и светлые лобби с дизайнерской отделкой. Здесь появятся зоны ожидания, скоростные лифты и помещение для хранения колясок и велосипедов. Инфраструктура проекта На территории проекта появится детский сад с бассейном для 250 малышей. В уютных дворах-парках есть места для отдыха, игровые и спортивные площадки. На первых этажах домов откроются магазины, кафе и другие сервисы. А для владельцев автомобилей предусмотрен подземный паркинг. Планировки В проекте большой выбор планировок: есть варианты с мастер-спальней, гардеробной, постирочной и двумя санузлами. Балконы с оригинальными стеклянными ограждениями придадут вашей квартире уникальный стиль. Ещё в проекте можно выбрать квартиру с видом на Измайловский парк — вы сможете ежедневно наслаждаться красотами природы и заряжаться энергией. Артикул - 1020535
Продаётся квартира-студия площадью 30.15 кв.м на 6 этаже 32 этажного дома (Корпус 3.4, секция 4) проекта ПИК Квартал Мит. Светлый просторный подъезд на уровне земли, функциональная планировка, большие окна, с отделкой. «Квартал Мит» — проект «Серии плюс» в экологически чистом районе Митино, где по соседству расположен большой лесопарк, а с двух сторон протекают реки Сходня и Журавка. В 20 минутах пешком находится станция метро «Пятницкое шоссе», а за 10 минут на автомобиле можно доехать до МКАД. Район, в котором строится проект, хорошо развит. Рядом школы, детские сады и поликлиники. За 11 минут можно доехать до гипермаркета «Глобус» и крупных фитнес-клубов. В культурном окружении квартала — музей Морского космического флота и Академгородок Митино, где дети могут познакомиться с наукой через игру. Архитектура и лобби Архитектурную концепцию квартала разработало бюро «Слава+». Башня-доминанта и разновысотные корпуса с террасами формируют узнаваемый силуэт современного городского пространства. Терракотовые, белые и графитовые фасады корпусов создают сдержанный фон для башни-доминанты цвета красной охры. На первых этажах — просторные и светлые лобби с дизайнерской отделкой. Здесь появятся зоны ожидания, гостевой санузел, скоростные лифты и помещение для хранения колясок и велосипедов. Инфраструктура проекта На территории квартала появится детский сад на 235 мест. Во дворах-парках появятся игровые и спортивные площадки, зоны отдыха и зелёные лужайки, где можно устроить пикник. Вдоль домов протянется торговая аллея с магазинами, кафе и полезными сервисами, где можно заняться шопингом или устроить тёплый вечер в кругу близких. А для автовладельцев — двухуровневый подземный паркинг. Рядом с «Кварталом Мит» появится школа для 1100 учеников. Планировки В «Квартале Мит» широкий выбор квартир для разных сценариев жизни: есть варианты с мастер-спальней, кухней-гостиной, сквозным санузлом и гардеробной. Окна в пол, балконы и террасы наполнят квартиры светом и расширят пространство, а виды на лес и реки станут неотъемлемой частью вашего интерьера. Все квартиры в проекте с готовой отделкой. Артикул - 1034687
Продаётся 1-комн.квартира площадью 38.60 кв.м на 9 этаже 19 этажного дома (Корпус 1.2, секция 2) проекта ПИК Нарвин. Светлый просторный подъезд на уровне земли, функциональная планировка, большие окна, с отделкой. «Нарвин» — камерный квартал с продуманной архитектурой в зелёном районе на северо-западе Москвы. Всего в 10 минутах пешком — метро «Водный стадион», а в 20 минутах — МЦК «Коптево». Дорога на автомобиле до ТТК займёт 10 минут. Район хорошо развит: в шаговой доступности от проекта есть школы, детские сады, поликлиники, студии фитнеса и кафе. Всего в 5 минутах пешком от квартала есть крупный ТЦ «Водный стадион». За 8 минут можно дойти до Головинских прудов, за 10 минут — до Кронштадтского сквера, а за 15 минут — до парка Дружбы. Архитектура и лобби Архитектурную концепцию разработало бюро российское бюро «ГАФА». В проекте три здания, каждое обладает уникальным строгим силуэтом, созданным за счёт чередования цветов и форм. Дизайн проработан и внутри домов. На первых этажах — просторные и светлые лобби с дизайнерской отделкой. Здесь появятся зоны ожидания, скоростные лифты и помещение для хранения колясок и велосипедов. Инфраструктура На территории проекта появятся уютные дворы-парки с местами для отдыха, лавочками с разъёмами для зарядки под разные устройства, детскими и спортивными площадками. На первых этажах домов откроются магазины, кафе и другие сервисы. А для владельцев автомобилей предусмотрен подземный паркинг. Планировки В проекте вы найдёте квартиры с готовой отделкой и умными планировками: есть варианты с мастер-спальней, кухней-гостиной, двумя санузлами и гардеробной. Большим семьям понравятся квартиры со спальнями, которые разнесены по разные стороны гостиной. В проекте представлены разнообразные балконы: французские, открытые и закрытые. Есть планировки с угловыми окнами и окнами в пол с видами на Головинские пруды. Артикул - 979952
Продаётся 1-комн.квартира площадью 37.50 кв.м на 10 этаже 20 этажного дома (Корпус 1.7, секция 7) проекта ПИК 2-й Иртышский. Светлый просторный подъезд на уровне земли, функциональная планировка, большие окна, с отделкой. «2-й Иртышский» возводится на востоке Москвы, между тремя станциями метро — «Щёлковская», «Черкизовская» и «Бульвар Рокоссовского». Автомобилисты оценят удобные выезды на Щёлковское шоссе и СВХ, а дорога на машине до МКАД займёт около 14 минут, до ТТК — 20 минут. Проект строится в районе с развитой инфраструктурой. Здесь работают детские сады, школы, поликлиники и спортивные комплексы. До ближайшего крупного ТРЦ «Щёлковский» можно доехать на машине за 12 минут. Вокруг много парков: всего 15 минут пешком — и вы в «Сиреневом саду», а дорога до парка «Лосиный остров» или Гольяновского пруда займёт 6 минут на авто. Архитектура и лобби Проект состоит из зданий разной высоты и разной по характеру архитектуры. Узнаваемой доминантой квартала станет башня из стекла и металла. На первых этажах домов — просторные и светлые лобби с дизайнерской отделкой. Здесь будут зоны ожидания, современные лифты и помещения для хранения колясок и велосипедов. Инфраструктура проекта В проекте будет вся необходимая инфраструктура: детский сад на 350 малышей и школа на 950 мест. Через весь квартал протянется пешеходный бульвар для прогулок и отдыха на свежем воздухе. А на первых этажах домов откроются кафе, магазины, пункты выдачи маркетплейсов и другие полезные сервисы. Планировки Во «2-м Иртышском» вы найдёте планировки с мастер-спальней с собственной ванной и гардеробной, компактной кухней-нишей, постирочной и сквозным санузлом. Семьям с детьми понравятся планировки со спальнями, разнесёнными по разные стороны гостиной. А ценители красивых пейзажей могут выбрать квартиру с живописным видом на парк Лосиный Остров. Артикул - 988655
Продаётся 2-комн.квартира площадью 58.80 кв.м на 16 этаже 16 этажного дома (Корпус 2.6/1.1, секция 1) проекта ПИК Бунинская набережная. Светлый просторный подъезд на уровне земли, функциональная планировка, большие окна, с отделкой. «Бунинская набережная» — камерный квартал «Серии плюс» в Новой Москве, на берегу Ивановского пруда. До станции метро «Потапово» 18 минут пешком, а до метро «Бунинская аллея» — 12 минут на машине. Дорога на автомобиле до Солнцево-Бутово-Варшавского шоссе займёт 9 минут, а до МКАД — 17 минут. В шаговой доступности от проекта есть школы, детские сады, поликлиника, фитнес-клубы и магазины. До гипермаркета «Глобус» можно доехать на машине за 8 минут. В окружении квартала несколько природных зон: в минуте пешком — Ивановский пруд, за 17 минут можно доехать на автомобиле до Бутовского лесопарка, а за 20 минут — до заказника Южное Бутово. Архитектура и лобби При создании концепции проекта архитекторы бюро КК вдохновились локацией. Природные оттенки и активная пластика корпусов напоминают рельефные выступы на берегу, а окна отражают водную гладь, визуально объединяя дома с природой. На первых этажах домов — светлые и просторные лобби по авторскому дизайн-проекту. Мягкие ненавязчивые цвета гармонируют с металлизированными вставками. Для комфорта жителей в лобби предусмотрены два выхода и быстрые тихие лифты. Инфраструктура проекта По соседству с «Бунинской набережной» расположен ещё один квартал ПИК «Бунинские луга», где уже открыты детская и взрослая поликлиники, 5 детских садов и 2 школы ПИК. В будущем здесь появится ещё одна школа и детский сад. Открыта игровая площадка ПлейХаб «Пирамиды» и скейт-парк. На территории самого квартала «Бунинская набережная» появится пешеходный бульвар для прогулок и отдыха. Во дворах — зелёные парки с игровыми и спортивными площадками. На первых этажах домов откроются магазины, кафе и полезные сервисы, на подземном этаже — паркинг для автомобилей. А всего в минуте ходьбы — Ивановский пруд, который мы благоустроим для неспешных прогулок и отдыха у воды. Планировки В «Бунинской набережной» можно подобрать квартиру, которая подходит именно для вашего сценария жизни. ПИК продумал разнесённые спальни и постирочные для семей с нескольким детьми. Добавили в проект квартиры с террасами, которые особенно понравятся тем, кто проводит много времени дома. Можно выбрать квартиру с видом на воду или остановиться на варианте с видом на тихий зелёный двор. Квартиры сдаются с отделкой на выбор: готовая — для тех, кто хочет переехать сразу, и предчистовая — чтобы сделать финальную часть ремонта самостоятельно и реализовать собственный дизайн. Артикул - 968458
Продаётся 1-комн.квартира площадью 34.10 кв.м на 25 этаже 26 этажного дома (Корпус 1.5, секция 5) проекта ПИК 2-й Иртышский. Светлый просторный подъезд на уровне земли, функциональная планировка, большие окна, с отделкой. «2-й Иртышский» возводится на востоке Москвы, между тремя станциями метро — «Щёлковская», «Черкизовская» и «Бульвар Рокоссовского». Автомобилисты оценят удобные выезды на Щёлковское шоссе и СВХ, а дорога на машине до МКАД займёт около 14 минут, до ТТК — 20 минут. Проект строится в районе с развитой инфраструктурой. Здесь работают детские сады, школы, поликлиники и спортивные комплексы. До ближайшего крупного ТРЦ «Щёлковский» можно доехать на машине за 12 минут. Вокруг много парков: всего 15 минут пешком — и вы в «Сиреневом саду», а дорога до парка «Лосиный остров» или Гольяновского пруда займёт 6 минут на авто. Архитектура и лобби Проект состоит из зданий разной высоты и разной по характеру архитектуры. Узнаваемой доминантой квартала станет башня из стекла и металла. На первых этажах домов — просторные и светлые лобби с дизайнерской отделкой. Здесь будут зоны ожидания, современные лифты и помещения для хранения колясок и велосипедов. Инфраструктура проекта В проекте будет вся необходимая инфраструктура: детский сад на 350 малышей и школа на 950 мест. Через весь квартал протянется пешеходный бульвар для прогулок и отдыха на свежем воздухе. А на первых этажах домов откроются кафе, магазины, пункты выдачи маркетплейсов и другие полезные сервисы. Планировки Во «2-м Иртышском» вы найдёте планировки с мастер-спальней с собственной ванной и гардеробной, компактной кухней-нишей, постирочной и сквозным санузлом. Семьям с детьми понравятся планировки со спальнями, разнесёнными по разные стороны гостиной. А ценители красивых пейзажей могут выбрать квартиру с живописным видом на парк Лосиный Остров. Артикул - 988478
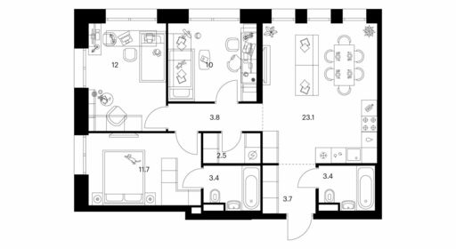
Продаётся 1-комн.квартира площадью 31.80 кв.м на 18 этаже 21 этажного дома (Корпус 3.7, секция 3) проекта ПИК Руставели 14. Светлый просторный подъезд на уровне земли, функциональная планировка, большие окна, с отделкой. «Руставели 14» — квартал «Серии плюс» с уникальной архитектурой в историческом районе Москвы Останкино. До станции метро «Бутырская» всего 3 минуты пешком, а до МЦД «Останкино» — 12 минут. Дорога на автомобиле до ТТК займёт 5 минут. Проект возводится в перспективном и быстроразвивающемся Бутырском районе, здесь есть школы, детские сады, поликлиника и ведущие вузы столицы. Рядом несколько парков, откуда открываются виды на Останкинскую башню, и арт-пространства: дизайн-завод и «Хлебозавод № 9». Идти до них всего 15 минут. Архитектура и лобби Архитектурная концепция от бюро «ХАДА-АРХИТЕКТС» объединяет в проекте акцентные высотные корпуса и малоэтажные здания. Квартал выделяется за счёт узнаваемого силуэта фасадов с цветовыми акцентами и продуманных внутренних пространств. Лобби на первых этажах домов с дизайнерской отделкой: тёплые оттенки терракоты, матовый серебристый цвет и мягкое освещение создают приятную и спокойную обстановку. Здесь появятся зоны ожидания, скоростные лифты и помещение для хранения колясок и велосипедов. Инфраструктура проекта На территории проекта появится детский сад для 300 малышей и образовательный центр с детским садом на 125 мест и школой для 950 учеников. В уютных дворах-парках будут места для отдыха, игровые и спортивные площадки. На первых этажах домов откроются магазины, кафе и другие сервисы. А для владельцев автомобилей предусмотрен двухуровневый подземный паркинг с местами для электрокаров. Планировки В проекте широкий выбор умных планировок: от продуманных студий до трёхкомнатных квартир. Есть варианты с мастер-спальней с собственной ванной и гардеробной, кухней-гостиной, сквозным санузлом и кладовой. Благодаря окнам в пол, балконам и террасам в помещениях будет много света и дополнительного пространства. Можно купить квартиру с готовой отделкой и видом на Останкинскую башню. Артикул - 1040601
Продаётся 2-комн.квартира площадью 53.30 кв.м на 2 этаже 27 этажного дома (Корпус 4.3, секция 3) проекта ПИК Амурский парк. Светлый просторный подъезд на уровне земли, функциональная планировка, большие окна, с отделкой. «Амурский парк» — проект «Серии плюс» с видом на Измайловский парк. Квартал возводится на востоке Москвы, в 10 минутах пешком от станций метро «Черкизовская» и МЦК «Локомотив». Доехать от проекта на машине до ТТК или МКАД можно за 15 минут, а до Садового кольца — за 17 минут. В районе вокруг «Амурского парка» есть всё для комфортной жизни: в шаговой доступности школы, детские сады и поликлиника. Всего в 8 минутах от квартала находится уютный Сиреневый сад, а в 20 минутах — Детский Черкизовский парк. За 10 минут на автомобиле можно доехать до парка Лосиный остров. Архитектура и лобби Квартал от архитектурной мастерской М.А.М. органично дополняет городской ландшафт. Разновысотные корпуса в минималистичном стиле сочетают мягкие пластичные линии и строгие геометрические формы. Цветовая гамма фасадов — контраст терракотового и молочно-серого оттенков, которые создают атмосферу тепла и уюта. На первых этажах домов — просторные и светлые лобби с дизайнерской отделкой. Здесь появятся зоны ожидания, скоростные лифты и помещение для хранения колясок и велосипедов. Инфраструктура проекта На территории проекта появится детский сад с бассейном для 250 малышей. В уютных дворах-парках есть места для отдыха, игровые и спортивные площадки. На первых этажах домов откроются магазины, кафе и другие сервисы. А для владельцев автомобилей предусмотрен подземный паркинг. Планировки В проекте большой выбор планировок: есть варианты с мастер-спальней, гардеробной, постирочной и двумя санузлами. Балконы с оригинальными стеклянными ограждениями придадут вашей квартире уникальный стиль. Ещё в проекте можно выбрать квартиру с видом на Измайловский парк — вы сможете ежедневно наслаждаться красотами природы и заряжаться энергией. Артикул - 1020428
Продаётся 1-комн.квартира площадью 36.70 кв.м на 28 этаже 31 этажного дома (Корпус 4.3, секция 2) проекта ПИК Мичуринский парк. Светлый просторный подъезд на уровне земли, функциональная планировка, большие окна, с отделкой. «Мичуринский парк» — проект с уникальной архитектурой в районе Очаково-Матвеевское на западе Москвы. В 7 минутах пешком от проекта — станция метро «Озёрная». Дорога до МКАД на автомобиле займёт 3 минуты, а до ТТК — 20 минут. Район отлично развит: есть университеты, школы и детские сады, магазины и торговые центры. Для прогулок и отдыха в пешей доступности от проекта есть Очаковский парк, парк Школьников и парк Олимпийской деревни. Архитектура и лобби Архитектурную концепцию корпусов «Серии плюс» разработала российское бюро КК. У каждого здания свой характер за счёт уникальной формы и рельефа фасадов. А разноуровневые завершения башен создают выразительные силуэты. Дизайн проработан и внутри домов. На первых этажах — просторные и светлые лобби с дизайнерской отделкой. Здесь появятся зоны ожидания, скоростные лифты и помещение для хранения колясок и велосипедов. Инфраструктура На территории проекта появятся две школы, два детских сада и МФК ЛЕЙКС, для шопинга и работы. Для отдыха, игр и спорта мы построим большое многофункциональное пространство — МультиХаб «Клевер». Во дворах-парках появятся места для отдыха, детские и спортивные площадки. Для автомобилистов предусмотрен подземный паркинг, а на первых этажах домов откроются магазины, кафе и полезные сервисы. Планировки В «Мичуринском парке» широкий выбор планировок для разных сценариев жизни. Мы предусмотрели мастер-спальни с собственной ванной и местом для гардероба. Есть планировки с просторной кухней-гостиной, постирочной и дополнительным санузлом. В проекте можно найти уникальные форматы квартир с эркерами, окнами в пол, одним или двумя балконами в квартире. Артикул - 983544
Продаётся 3-комн.квартира площадью 73.60 кв.м на 3 этаже 10 этажного дома (Корпус 1.1.2, секция 2) проекта ПИК Строгино 360. Светлый просторный подъезд на уровне земли, функциональная планировка, большие окна. «Строгино 360» — флагманский проект ПИК в 20 минутах от центра Москвы, в одном из самых экологичных районов столицы. В 2027 году — к моменту заселения первых домов — в 10 минутах пешком от проекта откроется станция метро «Липовая роща». В квартале всё настроено на 360 градусов: квартиры с террасами и панорамными видами на лес и воду, спорт — от йоги до яхтинга — и деловой кластер, где будет создана комфортная среда для работы и бизнеса. Всего в 10 минутах от проекта расположен ТЦ «Вегас Сити» с десятками магазинов в интерьерах городских улиц, каток, кинотеатр, рестораны и аттракционы. Архитектура и гранд-лобби Архитектура квартала органично вписывается в окружающий ландшафт. В отделке используются натуральные материалы и спокойные цвета, которые дополняют природные пространства вокруг квартала. Специально для «Строгино 360» бюро разработало авторский дизайн гранд-лобби, где можно встретиться с близкими или партнёрами, поработать или поиграть с детьми. Для этого здесь появятся коворкинг, ресепшен, пространства для отдыха, игровая для детей и гостевой санузел. Инфраструктура проекта «Строгино 360» — больше чем жилой квартал. Здесь создана вся необходимая инфраструктура для комфортной и насыщенной жизни. Главной артерией станет пешеходный бульвар, длиной 3,4 км — с магазинами, кафе и продуманными пространствами для спорта и отдыха. Для детей в партнёрстве с «Фондом развития Физтех-школ» при поддержке МФТИ мы построим образовательный центр. Планировки В доминанте проекта — корпусе 1.2 — вы найдёте квартиры с террасами и живописными видами на на Москву-реку, Строгинский затон и Серебряный Бор. А в малоэтажных корпусах 1.1.1–1.1.3 создана уютная камерная атмосфера благодаря небольшому количеству квартир на этаже. Также здесь вы можете выбрать квартиру с системой умного дома. Артикул - 1050832
Новостройки на старте продаж

Реклама: adv@mapestate.ru

Редакция: info@mapestate.ru

О проекте

Контакты

Реклама на сайте

Правообладателям

X
Авторизуйтесь для этого действия
Нажимая на иконку социальной сети для регистрации или авторизации, я соглашаюсь с условиями использования сайта Mapestate.ru и подтверждаю, что ознакомился с политикой обработки персональных данных.
Отправить заявку
Заполните все обязательные поля
Вы не дали согласия на обработку персональных данных и рекламную рассылку
Вы не верно ввели код
Ваши данные отправлены
Нажимая кнопку «Отправить», я соглашаюсь с условиями использования сайта Mapestate.ru и подтверждаю, что ознакомился с политикой обработки персональных данных.