Ваш регион: Москва г
+
Объявления / Продажа / Жилая / Республика Башкортостан, г Уфа
Сортировка:
Продается квартира в ЖК Terle Park с 2 спальнями на 16 этаже 29 этажного дома. Общая площадь: 54.08 кв.м. Высота потолков 2.95 м. Срок сдачи 3 квартал 2026 г. Вид на лес. Вид на реку. С отделкой White box. Эскроу-счет. Застройщик ГК «Садовое кольцо». Новый современный жилой комплекс Terle Park расположен на улице Авроры — на самом краю лесопарка, который огибает река Уфа. Это настоящий курорт на свежем воздухе: район «Зеленая роща» признан самым экологически чистым в городе. При этом до центра — рукой подать: удобный и быстрый выезд на главные магистрали города — улицу Менделеева и проспект Салавата Юлаева. 6 корпусов класса "Комфорт+" жилого комплекса TERLE PARK расположатся на границе природы и города. Фасады оформлены панелями различных текстур и оттенков: хай-тек материалы преломляют свет, меняя цвета под разными углами зрения. Среди шести домов комфорт-класса есть как высотки в 29 этажей, так и небольшие десятиэтажные дома. Благодаря грамотному планированию этажности, двор будет всегда солнечным, а ветер - останется снаружи. Комфорт проживания максимально учтен и в планировочных решениях квартир, где каждый метр функционален. Евро-форматы, квартиры с мастер-спальнями, террасы и многое другое уже ждет вас в сказочном ЖК. Все продумано до мелочей, квартиры полностью соответствует вашим желаниям и потребностям. Виды из окон в сторону леса и реки — вашими соседями станут тишина и свежий воздух. Сочетание пригородного спокойствия и принципов жизни в большом городе. На территории ЖК есть все элементы инфраструктуры, необходимые современному человеку: - Благоустроенный двор с концепцией «Городской парк», - Закрытая и безопасная территория: двор без машин и посторонних людей, - Современные лобби с консьержами. Двухуровневый подземный паркинг с удобным доступом на лифте прямо от квартиры, въезд только для жителей, круглосуточное видеонаблюдение.
Продается квартира в ЖК Terle Park с 2 спальнями на 2 этаже 12 этажного дома. Общая площадь: 67.44 кв.м. Высота потолков 2.95 м. Срок сдачи 4 квартал 2025 г. Терраса или Патио. Вид на лес. Эскроу-счет. Застройщик ГК «Садовое кольцо». Новый современный жилой комплекс Terle Park расположен на улице Авроры — на самом краю лесопарка, который огибает река Уфа. Это настоящий курорт на свежем воздухе: район «Зеленая роща» признан самым экологически чистым в городе. При этом до центра — рукой подать: удобный и быстрый выезд на главные магистрали города — улицу Менделеева и проспект Салавата Юлаева. 6 корпусов класса "Комфорт+" жилого комплекса TERLE PARK расположатся на границе природы и города. Фасады оформлены панелями различных текстур и оттенков: хай-тек материалы преломляют свет, меняя цвета под разными углами зрения. Среди шести домов комфорт-класса есть как высотки в 29 этажей, так и небольшие десятиэтажные дома. Благодаря грамотному планированию этажности, двор будет всегда солнечным, а ветер - останется снаружи. Комфорт проживания максимально учтен и в планировочных решениях квартир, где каждый метр функционален. Евро-форматы, квартиры с мастер-спальнями, террасы и многое другое уже ждет вас в сказочном ЖК. Все продумано до мелочей, квартиры полностью соответствует вашим желаниям и потребностям. Виды из окон в сторону леса и реки — вашими соседями станут тишина и свежий воздух. Сочетание пригородного спокойствия и принципов жизни в большом городе. На территории ЖК есть все элементы инфраструктуры, необходимые современному человеку: - Благоустроенный двор с концепцией «Городской парк», - Закрытая и безопасная территория: двор без машин и посторонних людей, - Современные лобби с консьержами. Двухуровневый подземный паркинг с удобным доступом на лифте прямо от квартиры, въезд только для жителей, круглосуточное видеонаблюдение.
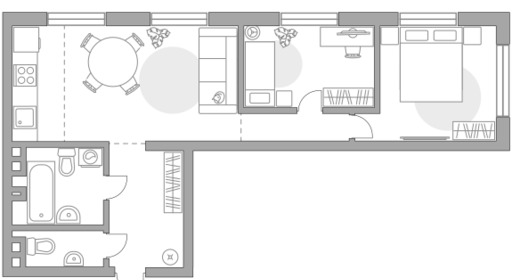
Продается квартира в ЖК Terle Park с 2 спальнями на 9 этаже 10 этажного дома. Общая площадь: 70.97 кв.м. Высота потолков 2.95 м. Срок сдачи 4 квартал 2025 г. Мастер-спальня. Вид на лес. Вид на реку. Эскроу-счет. Застройщик ГК «Садовое кольцо». Новый современный жилой комплекс Terle Park расположен на улице Авроры — на самом краю лесопарка, который огибает река Уфа. Это настоящий курорт на свежем воздухе: район «Зеленая роща» признан самым экологически чистым в городе. При этом до центра — рукой подать: удобный и быстрый выезд на главные магистрали города — улицу Менделеева и проспект Салавата Юлаева. 6 корпусов класса "Комфорт+" жилого комплекса TERLE PARK расположатся на границе природы и города. Фасады оформлены панелями различных текстур и оттенков: хай-тек материалы преломляют свет, меняя цвета под разными углами зрения. Среди шести домов комфорт-класса есть как высотки в 29 этажей, так и небольшие десятиэтажные дома. Благодаря грамотному планированию этажности, двор будет всегда солнечным, а ветер - останется снаружи. Комфорт проживания максимально учтен и в планировочных решениях квартир, где каждый метр функционален. Евро-форматы, квартиры с мастер-спальнями, террасы и многое другое уже ждет вас в сказочном ЖК. Все продумано до мелочей, квартиры полностью соответствует вашим желаниям и потребностям. Виды из окон в сторону леса и реки — вашими соседями станут тишина и свежий воздух. Сочетание пригородного спокойствия и принципов жизни в большом городе. На территории ЖК есть все элементы инфраструктуры, необходимые современному человеку: - Благоустроенный двор с концепцией «Городской парк», - Закрытая и безопасная территория: двор без машин и посторонних людей, - Современные лобби с консьержами. Двухуровневый подземный паркинг с удобным доступом на лифте прямо от квартиры, въезд только для жителей, круглосуточное видеонаблюдение.
Продается квартира в ЖК Terle Park с 2 спальнями на 27 этаже 29 этажного дома. Общая площадь: 59.82 кв.м. Высота потолков 2.95 м. Срок сдачи 3 квартал 2026 г. Вид на лес. С отделкой White box. Эскроу-счет. Застройщик ГК «Садовое кольцо». Новый современный жилой комплекс Terle Park расположен на улице Авроры — на самом краю лесопарка, который огибает река Уфа. Это настоящий курорт на свежем воздухе: район «Зеленая роща» признан самым экологически чистым в городе. При этом до центра — рукой подать: удобный и быстрый выезд на главные магистрали города — улицу Менделеева и проспект Салавата Юлаева. 6 корпусов класса "Комфорт+" жилого комплекса TERLE PARK расположатся на границе природы и города. Фасады оформлены панелями различных текстур и оттенков: хай-тек материалы преломляют свет, меняя цвета под разными углами зрения. Среди шести домов комфорт-класса есть как высотки в 29 этажей, так и небольшие десятиэтажные дома. Благодаря грамотному планированию этажности, двор будет всегда солнечным, а ветер - останется снаружи. Комфорт проживания максимально учтен и в планировочных решениях квартир, где каждый метр функционален. Евро-форматы, квартиры с мастер-спальнями, террасы и многое другое уже ждет вас в сказочном ЖК. Все продумано до мелочей, квартиры полностью соответствует вашим желаниям и потребностям. Виды из окон в сторону леса и реки — вашими соседями станут тишина и свежий воздух. Сочетание пригородного спокойствия и принципов жизни в большом городе. На территории ЖК есть все элементы инфраструктуры, необходимые современному человеку: - Благоустроенный двор с концепцией «Городской парк», - Закрытая и безопасная территория: двор без машин и посторонних людей, - Современные лобби с консьержами. Двухуровневый подземный паркинг с удобным доступом на лифте прямо от квартиры, въезд только для жителей, круглосуточное видеонаблюдение.
Продается квартира в ЖК Terle Park с 2 спальнями на 2 этаже 18 этажного дома. Общая площадь: 70.26 кв.м. Высота потолков 2.95 м. Срок сдачи 4 квартал 2025 г. Терраса или Патио. Эскроу-счет. Застройщик ГК «Садовое кольцо». Новый современный жилой комплекс Terle Park расположен на улице Авроры — на самом краю лесопарка, который огибает река Уфа. Это настоящий курорт на свежем воздухе: район «Зеленая роща» признан самым экологически чистым в городе. При этом до центра — рукой подать: удобный и быстрый выезд на главные магистрали города — улицу Менделеева и проспект Салавата Юлаева. 6 корпусов класса "Комфорт+" жилого комплекса TERLE PARK расположатся на границе природы и города. Фасады оформлены панелями различных текстур и оттенков: хай-тек материалы преломляют свет, меняя цвета под разными углами зрения. Среди шести домов комфорт-класса есть как высотки в 29 этажей, так и небольшие десятиэтажные дома. Благодаря грамотному планированию этажности, двор будет всегда солнечным, а ветер - останется снаружи. Комфорт проживания максимально учтен и в планировочных решениях квартир, где каждый метр функционален. Евро-форматы, квартиры с мастер-спальнями, террасы и многое другое уже ждет вас в сказочном ЖК. Все продумано до мелочей, квартиры полностью соответствует вашим желаниям и потребностям. Виды из окон в сторону леса и реки — вашими соседями станут тишина и свежий воздух. Сочетание пригородного спокойствия и принципов жизни в большом городе. На территории ЖК есть все элементы инфраструктуры, необходимые современному человеку: - Благоустроенный двор с концепцией «Городской парк», - Закрытая и безопасная территория: двор без машин и посторонних людей, - Современные лобби с консьержами. Двухуровневый подземный паркинг с удобным доступом на лифте прямо от квартиры, въезд только для жителей, круглосуточное видеонаблюдение.
Продается квартира в ЖК Terle Park с 3 спальнями на 14 этаже 14 этажного дома. Общая площадь: 135.16 кв.м. Высота потолков 2.95 м. Срок сдачи 3 квартал 2026 г. Окна выходят на 3 стороны. Мастер-спальня. Терраса или Патио. Вид на лес. Вид на реку. Эскроу-счет. Застройщик ГК «Садовое кольцо». Новый современный жилой комплекс Terle Park расположен на улице Авроры — на самом краю лесопарка, который огибает река Уфа. Это настоящий курорт на свежем воздухе: район «Зеленая роща» признан самым экологически чистым в городе. При этом до центра — рукой подать: удобный и быстрый выезд на главные магистрали города — улицу Менделеева и проспект Салавата Юлаева. 6 корпусов класса "Комфорт+" жилого комплекса TERLE PARK расположатся на границе природы и города. Фасады оформлены панелями различных текстур и оттенков: хай-тек материалы преломляют свет, меняя цвета под разными углами зрения. Среди шести домов комфорт-класса есть как высотки в 29 этажей, так и небольшие десятиэтажные дома. Благодаря грамотному планированию этажности, двор будет всегда солнечным, а ветер - останется снаружи. Комфорт проживания максимально учтен и в планировочных решениях квартир, где каждый метр функционален. Евро-форматы, квартиры с мастер-спальнями, террасы и многое другое уже ждет вас в сказочном ЖК. Все продумано до мелочей, квартиры полностью соответствует вашим желаниям и потребностям. Виды из окон в сторону леса и реки — вашими соседями станут тишина и свежий воздух. Сочетание пригородного спокойствия и принципов жизни в большом городе. На территории ЖК есть все элементы инфраструктуры, необходимые современному человеку: - Благоустроенный двор с концепцией «Городской парк», - Закрытая и безопасная территория: двор без машин и посторонних людей, - Современные лобби с консьержами. Двухуровневый подземный паркинг с удобным доступом на лифте прямо от квартиры, въезд только для жителей, круглосуточное видеонаблюдение.
Продается квартира в ЖК Terle Park с 3 спальнями на 5 этаже 29 этажного дома. Общая площадь: 79.29 кв.м. Высота потолков 2.95 м. Срок сдачи 3 квартал 2026 г. Мастер-спальня. С отделкой White box. Эскроу-счет. Застройщик ГК «Садовое кольцо». Новый современный жилой комплекс Terle Park расположен на улице Авроры — на самом краю лесопарка, который огибает река Уфа. Это настоящий курорт на свежем воздухе: район «Зеленая роща» признан самым экологически чистым в городе. При этом до центра — рукой подать: удобный и быстрый выезд на главные магистрали города — улицу Менделеева и проспект Салавата Юлаева. 6 корпусов класса "Комфорт+" жилого комплекса TERLE PARK расположатся на границе природы и города. Фасады оформлены панелями различных текстур и оттенков: хай-тек материалы преломляют свет, меняя цвета под разными углами зрения. Среди шести домов комфорт-класса есть как высотки в 29 этажей, так и небольшие десятиэтажные дома. Благодаря грамотному планированию этажности, двор будет всегда солнечным, а ветер - останется снаружи. Комфорт проживания максимально учтен и в планировочных решениях квартир, где каждый метр функционален. Евро-форматы, квартиры с мастер-спальнями, террасы и многое другое уже ждет вас в сказочном ЖК. Все продумано до мелочей, квартиры полностью соответствует вашим желаниям и потребностям. Виды из окон в сторону леса и реки — вашими соседями станут тишина и свежий воздух. Сочетание пригородного спокойствия и принципов жизни в большом городе. На территории ЖК есть все элементы инфраструктуры, необходимые современному человеку: - Благоустроенный двор с концепцией «Городской парк», - Закрытая и безопасная территория: двор без машин и посторонних людей, - Современные лобби с консьержами. Двухуровневый подземный паркинг с удобным доступом на лифте прямо от квартиры, въезд только для жителей, круглосуточное видеонаблюдение.
Продается квартира в ЖК Terle Park с 3 спальнями на 2 этаже 27 этажного дома. Общая площадь: 85.09 кв.м. Высота потолков 2.95 м. Срок сдачи 4 квартал 2025 г. Мастер-спальня. Вид на лес. С отделкой White box. Эскроу-счет. Застройщик ГК «Садовое кольцо». Новый современный жилой комплекс Terle Park расположен на улице Авроры — на самом краю лесопарка, который огибает река Уфа. Это настоящий курорт на свежем воздухе: район «Зеленая роща» признан самым экологически чистым в городе. При этом до центра — рукой подать: удобный и быстрый выезд на главные магистрали города — улицу Менделеева и проспект Салавата Юлаева. 6 корпусов класса "Комфорт+" жилого комплекса TERLE PARK расположатся на границе природы и города. Фасады оформлены панелями различных текстур и оттенков: хай-тек материалы преломляют свет, меняя цвета под разными углами зрения. Среди шести домов комфорт-класса есть как высотки в 29 этажей, так и небольшие десятиэтажные дома. Благодаря грамотному планированию этажности, двор будет всегда солнечным, а ветер - останется снаружи. Комфорт проживания максимально учтен и в планировочных решениях квартир, где каждый метр функционален. Евро-форматы, квартиры с мастер-спальнями, террасы и многое другое уже ждет вас в сказочном ЖК. Все продумано до мелочей, квартиры полностью соответствует вашим желаниям и потребностям. Виды из окон в сторону леса и реки — вашими соседями станут тишина и свежий воздух. Сочетание пригородного спокойствия и принципов жизни в большом городе. На территории ЖК есть все элементы инфраструктуры, необходимые современному человеку: - Благоустроенный двор с концепцией «Городской парк», - Закрытая и безопасная территория: двор без машин и посторонних людей, - Современные лобби с консьержами. Двухуровневый подземный паркинг с удобным доступом на лифте прямо от квартиры, въезд только для жителей, круглосуточное видеонаблюдение.
Продается квартира в ЖК Terle Park с 2 спальнями на 20 этаже 29 этажного дома. Общая площадь: 53.98 кв.м. Высота потолков 2.95 м. Срок сдачи 3 квартал 2026 г. С отделкой White box. Эскроу-счет. Застройщик ГК «Садовое кольцо». Новый современный жилой комплекс Terle Park расположен на улице Авроры — на самом краю лесопарка, который огибает река Уфа. Это настоящий курорт на свежем воздухе: район «Зеленая роща» признан самым экологически чистым в городе. При этом до центра — рукой подать: удобный и быстрый выезд на главные магистрали города — улицу Менделеева и проспект Салавата Юлаева. 6 корпусов класса "Комфорт+" жилого комплекса TERLE PARK расположатся на границе природы и города. Фасады оформлены панелями различных текстур и оттенков: хай-тек материалы преломляют свет, меняя цвета под разными углами зрения. Среди шести домов комфорт-класса есть как высотки в 29 этажей, так и небольшие десятиэтажные дома. Благодаря грамотному планированию этажности, двор будет всегда солнечным, а ветер - останется снаружи. Комфорт проживания максимально учтен и в планировочных решениях квартир, где каждый метр функционален. Евро-форматы, квартиры с мастер-спальнями, террасы и многое другое уже ждет вас в сказочном ЖК. Все продумано до мелочей, квартиры полностью соответствует вашим желаниям и потребностям. Виды из окон в сторону леса и реки — вашими соседями станут тишина и свежий воздух. Сочетание пригородного спокойствия и принципов жизни в большом городе. На территории ЖК есть все элементы инфраструктуры, необходимые современному человеку: - Благоустроенный двор с концепцией «Городской парк», - Закрытая и безопасная территория: двор без машин и посторонних людей, - Современные лобби с консьержами. Двухуровневый подземный паркинг с удобным доступом на лифте прямо от квартиры, въезд только для жителей, круглосуточное видеонаблюдение.
Продается квартира в ЖК Terle Park студия на 11 этаже 14 этажного дома. Общая площадь: 29.47 кв.м. Высота потолков 3.1 м. Срок сдачи 4 квартал 2025 г. Вид на лес. Вид на реку. Эскроу-счет. Застройщик ГК «Садовое кольцо». Новый современный жилой комплекс Terle Park расположен на улице Авроры — на самом краю лесопарка, который огибает река Уфа. Это настоящий курорт на свежем воздухе: район «Зеленая роща» признан самым экологически чистым в городе. При этом до центра — рукой подать: удобный и быстрый выезд на главные магистрали города — улицу Менделеева и проспект Салавата Юлаева. 6 корпусов класса "Комфорт+" жилого комплекса TERLE PARK расположатся на границе природы и города. Фасады оформлены панелями различных текстур и оттенков: хай-тек материалы преломляют свет, меняя цвета под разными углами зрения. Среди шести домов комфорт-класса есть как высотки в 29 этажей, так и небольшие десятиэтажные дома. Благодаря грамотному планированию этажности, двор будет всегда солнечным, а ветер - останется снаружи. Комфорт проживания максимально учтен и в планировочных решениях квартир, где каждый метр функционален. Евро-форматы, квартиры с мастер-спальнями, террасы и многое другое уже ждет вас в сказочном ЖК. Все продумано до мелочей, квартиры полностью соответствует вашим желаниям и потребностям. Виды из окон в сторону леса и реки — вашими соседями станут тишина и свежий воздух. Сочетание пригородного спокойствия и принципов жизни в большом городе. На территории ЖК есть все элементы инфраструктуры, необходимые современному человеку: - Благоустроенный двор с концепцией «Городской парк», - Закрытая и безопасная территория: двор без машин и посторонних людей, - Современные лобби с консьержами. Двухуровневый подземный паркинг с удобным доступом на лифте прямо от квартиры, въезд только для жителей, круглосуточное видеонаблюдение.
Новостройки на старте продаж

Реклама: adv@mapestate.ru

Редакция: info@mapestate.ru

О проекте

Контакты

Реклама на сайте

Правообладателям

X
Авторизуйтесь для этого действия
Нажимая на иконку социальной сети для регистрации или авторизации, я соглашаюсь с условиями использования сайта Mapestate.ru и подтверждаю, что ознакомился с политикой обработки персональных данных.

Отправить заявку
Заполните все обязательные поля
Вы не дали согласия на обработку персональных данных и рекламную рассылку
Вы не верно ввели код
Ваши данные отправлены
Нажимая кнопку «Отправить», я соглашаюсь с условиями использования сайта Mapestate.ru и подтверждаю, что ознакомился с политикой обработки персональных данных.