Ваш регион: Москва г
+
Объявления / Продажа / Жилая / Москва г
Сортировка:
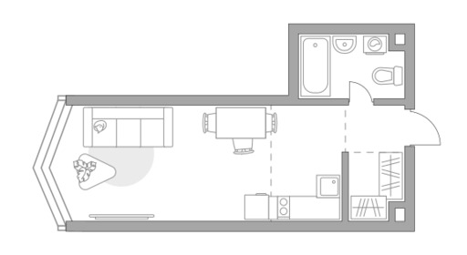
Продаётся 1-комн.квартира площадью 39.90 кв.м на 8 этаже 13 этажного дома (Корпус 5.3, секция 3) проекта ПИК Зелёный парк. Светлый просторный подъезд на уровне земли, функциональная планировка, большие окна, с отделкой. «Зелёный парк» — масштабный проект в экологичном районе Зеленограда на северо-западе Москвы. До станции МЦД-3 «Зеленоград-Крюково» — 20 минут пешком. Для автомобилистов путь до Кутузовского шоссе займёт 3 минуты, до Пятницкого шоссе — 15 минут, а до ЦКАД — 20 минут. В районе рядом с проектом есть всё для комфортной жизни: детские сады, школы, поликлиники и магазины. Для прогулок и отдыха рядом расположен парк Победы, Михайловский пруд, парк «Зелёный бор» и Зеленоградский лес. А для занятий спортом есть ледовый дворец «Зеленоградский» и стадион «Юность». Архитектура и лобби Квартал состоит из разноэтажных домов со ступенчатыми фасадами. Цветовая палитра проекта спокойная: оттенки белого и коричневого сочетаются с пастельным розовым и мятным. Дизайн проработан и внутри домов. На первых этажах — просторные и светлые лобби: мягкие тона выразительно дополнят контрастные чёрные и терракотовые акценты, а стеклянные двери дарят пространству много естественного света и ощущение простора. Инфраструктура проекта На территории квартала появятся две школы, два детских сада — один уже открыт — и паркинг. На первых этажах домов работают магазины и полезные сервисы. В уютных дворах-парках появятся детские и спортивные площадки, кофейни и зоны отдыха. А через квартал протянется пешеходный бульвар для неспешных прогулок у дома. Планировки Планировки в проекте максимально продуманные и адаптивные: есть варианты с мастер-спальней, кухней-гостиной, сквозным санузлом и гардеробной. Можно выбрать квартиру с террасой или открытым балконом. Окна в пол и угловые окна дадут ощущение простора, а виды на долину реки Горетовки станут неотъемлемой частью вашего интерьера. Все квартиры сдаются с готовой отделкой — можно сразу переехать. Артикул - 1031101
Продаётся 2-комн.квартира площадью 50.30 кв.м на 1 этаже 16 этажного дома (Корпус 2.6/1.1, секция 1) проекта ПИК Бунинская набережная. Светлый просторный подъезд на уровне земли, функциональная планировка, большие окна, с отделкой. «Бунинская набережная» — камерный квартал «Серии плюс» в Новой Москве, на берегу Ивановского пруда. До станции метро «Потапово» 18 минут пешком, а до метро «Бунинская аллея» — 12 минут на машине. Дорога на автомобиле до Солнцево-Бутово-Варшавского шоссе займёт 9 минут, а до МКАД — 17 минут. В шаговой доступности от проекта есть школы, детские сады, поликлиника, фитнес-клубы и магазины. До гипермаркета «Глобус» можно доехать на машине за 8 минут. В окружении квартала несколько природных зон: в минуте пешком — Ивановский пруд, за 17 минут можно доехать на автомобиле до Бутовского лесопарка, а за 20 минут — до заказника Южное Бутово. Архитектура и лобби При создании концепции проекта архитекторы бюро КК вдохновились локацией. Природные оттенки и активная пластика корпусов напоминают рельефные выступы на берегу, а окна отражают водную гладь, визуально объединяя дома с природой. На первых этажах домов — светлые и просторные лобби по авторскому дизайн-проекту. Мягкие ненавязчивые цвета гармонируют с металлизированными вставками. Для комфорта жителей в лобби предусмотрены два выхода и быстрые тихие лифты. Инфраструктура проекта По соседству с «Бунинской набережной» расположен ещё один квартал ПИК «Бунинские луга», где уже открыты детская и взрослая поликлиники, 5 детских садов и 2 школы ПИК. В будущем здесь появится ещё одна школа и детский сад. Открыта игровая площадка ПлейХаб «Пирамиды» и скейт-парк. На территории самого квартала «Бунинская набережная» появится пешеходный бульвар для прогулок и отдыха. Во дворах — зелёные парки с игровыми и спортивными площадками. На первых этажах домов откроются магазины, кафе и полезные сервисы, на подземном этаже — паркинг для автомобилей. А всего в минуте ходьбы — Ивановский пруд, который мы благоустроим для неспешных прогулок и отдыха у воды. Планировки В «Бунинской набережной» можно подобрать квартиру, которая подходит именно для вашего сценария жизни. ПИК продумал разнесённые спальни и постирочные для семей с нескольким детьми. Добавили в проект квартиры с террасами, которые особенно понравятся тем, кто проводит много времени дома. Можно выбрать квартиру с видом на воду или остановиться на варианте с видом на тихий зелёный двор. Квартиры сдаются с отделкой на выбор: готовая — для тех, кто хочет переехать сразу, и предчистовая — чтобы сделать финальную часть ремонта самостоятельно и реализовать собственный дизайн. Артикул - 968292
Продаётся квартира-студия площадью 24.60 кв.м на 9 этаже 32 этажного дома (Корпус 4.1, секция 1) проекта ПИК Мичуринский парк. Светлый просторный подъезд на уровне земли, функциональная планировка, большие окна, с отделкой. «Мичуринский парк» — проект с уникальной архитектурой в районе Очаково-Матвеевское на западе Москвы. В 7 минутах пешком от проекта — станция метро «Озёрная». Дорога до МКАД на автомобиле займёт 3 минуты, а до ТТК — 20 минут. Район отлично развит: есть университеты, школы и детские сады, магазины и торговые центры. Для прогулок и отдыха в пешей доступности от проекта есть Очаковский парк, парк Школьников и парк Олимпийской деревни. Архитектура и лобби Архитектурную концепцию корпусов «Серии плюс» разработала российское бюро КК. У каждого здания свой характер за счёт уникальной формы и рельефа фасадов. А разноуровневые завершения башен создают выразительные силуэты. Дизайн проработан и внутри домов. На первых этажах — просторные и светлые лобби с дизайнерской отделкой. Здесь появятся зоны ожидания, скоростные лифты и помещение для хранения колясок и велосипедов. Инфраструктура На территории проекта появятся две школы, два детских сада и МФК ЛЕЙКС, для шопинга и работы. Для отдыха, игр и спорта мы построим большое многофункциональное пространство — МультиХаб «Клевер». Во дворах-парках появятся места для отдыха, детские и спортивные площадки. Для автомобилистов предусмотрен подземный паркинг, а на первых этажах домов откроются магазины, кафе и полезные сервисы. Планировки В «Мичуринском парке» широкий выбор планировок для разных сценариев жизни. Мы предусмотрели мастер-спальни с собственной ванной и местом для гардероба. Есть планировки с просторной кухней-гостиной, постирочной и дополнительным санузлом. В проекте можно найти уникальные форматы квартир с эркерами, окнами в пол, одним или двумя балконами в квартире. Артикул - 1054285
Продаётся 1-комн.квартира площадью 36.10 кв.м на 2 этаже 9 этажного дома (Корпус 1.1.5, секция 5) проекта ПИК Онежский вал. Светлый просторный подъезд на уровне земли, функциональная планировка, большие окна, с отделкой. «Онежский вал» — квартал «Серии плюс» с продуманной архитектурой в историческом районе Западное Дегунино на севере Москвы. До станции метро «Селигерская» можно дойти за 10 минут, а до МЦД «Моссельмаш» — 15 минут. Автомобилисты оценят удобный выезд на Дмитровское шоссе, до которого всего пара минут пути, а до МСД и СВХ — 10 минут. Район, в котором строится проект, хорошо развит и окружён парками. В шаговой доступности есть школы, детские сады и поликлиники. В 14 минутах пешком от проекта работают торговые центры. Рядом с кварталом несколько природных зон: 11 минут пешком до парка им. Святослава Фёдорова и 15 минут до Орловского сада. Архитектура и лобби Архитектура квартала навеяна северной природой: разновысотные здания повторяют живописные линии северных скал и высоких хвойных деревьев. Это отражено и в колористике — фасады окрашены в цвета серого гранита, сосновой коры и серебристой глади воды. Дизайн лобби на первых этажах домов выполнен в стиле современного минимализма. Для комфорта жителей и их гостей в лобби есть зона ожидания, быстрые тихие лифты и помещение для хранения колясок и велосипедов. Инфраструктура В проекте появится детский сад на 350 мест, школа для 800 учеников и современная поликлиника. А ещё четырёхэтажный физкультурный комплекс с бассейном и деловое пространство ЛАВИН воркплейс с современными офисами, пространствами для работы и ритейлом. Благоустройство в проекте навеяно северной природой. Через квартал протянется пешеходный бульвар для прогулок и отдыха на свежем воздухе. Во дворах будут ждать зелёные парки с местами для отдыха, детскими и спортивными площадками. На первых этажах домов — торговая аллея с магазинами, кафе и полезными сервисами. А для владельцев автомобилей построим двухуровневый подземный и два наземных паркинга. Планировки В «Онежском валу» широкий выбор планировок с мастер-спальнями с собственной ванной, просторными кухнями-гостиными, компактными кухнями-нишами и двумя санузлами. Для ценителей простора и обилия солнечного света есть квартиры с панорамными окнами в пол, террасами, открытыми, французскими и угловыми балконами. Артикул - 1058363
Продаётся 2-комн.квартира площадью 65.40 кв.м на 27 этаже 38 этажного дома (Корпус 1.3, секция 3) проекта ПИК Нарвин. Светлый просторный подъезд на уровне земли, функциональная планировка, большие окна, с отделкой. «Нарвин» — камерный квартал с продуманной архитектурой в зелёном районе на северо-западе Москвы. Всего в 10 минутах пешком — метро «Водный стадион», а в 20 минутах — МЦК «Коптево». Дорога на автомобиле до ТТК займёт 10 минут. Район хорошо развит: в шаговой доступности от проекта есть школы, детские сады, поликлиники, студии фитнеса и кафе. Всего в 5 минутах пешком от квартала есть крупный ТЦ «Водный стадион». За 8 минут можно дойти до Головинских прудов, за 10 минут — до Кронштадтского сквера, а за 15 минут — до парка Дружбы. Архитектура и лобби Архитектурную концепцию разработало бюро российское бюро «ГАФА». В проекте три здания, каждое обладает уникальным строгим силуэтом, созданным за счёт чередования цветов и форм. Дизайн проработан и внутри домов. На первых этажах — просторные и светлые лобби с дизайнерской отделкой. Здесь появятся зоны ожидания, скоростные лифты и помещение для хранения колясок и велосипедов. Инфраструктура На территории проекта появятся уютные дворы-парки с местами для отдыха, лавочками с разъёмами для зарядки под разные устройства, детскими и спортивными площадками. На первых этажах домов откроются магазины, кафе и другие сервисы. А для владельцев автомобилей предусмотрен подземный паркинг. Планировки В проекте вы найдёте квартиры с готовой отделкой и умными планировками: есть варианты с мастер-спальней, кухней-гостиной, двумя санузлами и гардеробной. Большим семьям понравятся квартиры со спальнями, которые разнесены по разные стороны гостиной. В проекте представлены разнообразные балконы: французские, открытые и закрытые. Есть планировки с угловыми окнами и окнами в пол с видами на Головинские пруды. Артикул - 980405
Продаётся 1-комн.квартира площадью 34.30 кв.м на 16 этаже 16 этажного дома (Корпус 2.1.5, секция 5) проекта ПИК Середневский лес. Светлый просторный подъезд на уровне земли, функциональная планировка, большие окна, с отделкой. «Середневский лес» — тихий и зелёный квартал в экологичном районе Новой Москвы, недалеко от Валуевского леса. В 10 минутах пути на автомобиле находится станция метро «Аэропорт Внуково», а в 15 минутах — станции «Филатов луг» и «Саларьево». Переехав сюда, вы получаете московскую регистрацию, а вместе с ней — доступ ко всем преимуществам жизни в Москве. Инфраструктура проекта В квартале уже открыта школа на 1100 мест и детский сад для 325 малышей, а в дальнейшем откроется ещё один детсад для 340 детей. Уже открыто общественное пространство для прогулок, отдыха и встреч жителей: есть игровые площадки, места для отдыха, пешеходные маршруты и велопарковка. На первых этажах домов работают кафе, магазины, аптеки, медицинские центры и пункты выдачи онлайн-магазинов. Планировки В «Середневском лесу» широкий выбор умных планировок с мастер-спальней, кухней-гостиной и гардеробной, которые подстроятся под любой сценарий жизни. Можно выбрать квартиру с балконом, террасой, эркером и окнами в пол. Все квартиры сдаются с готовой отделкой. Артикул - 1038552
Продаётся 2-комн.квартира площадью 61.70 кв.м на 32 этаже 38 этажного дома (Корпус 1.1, секция 1) проекта ПИК Нарвин. Светлый просторный подъезд на уровне земли, функциональная планировка, большие окна, с отделкой. «Нарвин» — камерный квартал с продуманной архитектурой в зелёном районе на северо-западе Москвы. Всего в 10 минутах пешком — метро «Водный стадион», а в 20 минутах — МЦК «Коптево». Дорога на автомобиле до ТТК займёт 10 минут. Район хорошо развит: в шаговой доступности от проекта есть школы, детские сады, поликлиники, студии фитнеса и кафе. Всего в 5 минутах пешком от квартала есть крупный ТЦ «Водный стадион». За 8 минут можно дойти до Головинских прудов, за 10 минут — до Кронштадтского сквера, а за 15 минут — до парка Дружбы. Архитектура и лобби Архитектурную концепцию разработало бюро российское бюро «ГАФА». В проекте три здания, каждое обладает уникальным строгим силуэтом, созданным за счёт чередования цветов и форм. Дизайн проработан и внутри домов. На первых этажах — просторные и светлые лобби с дизайнерской отделкой. Здесь появятся зоны ожидания, скоростные лифты и помещение для хранения колясок и велосипедов. Инфраструктура На территории проекта появятся уютные дворы-парки с местами для отдыха, лавочками с разъёмами для зарядки под разные устройства, детскими и спортивными площадками. На первых этажах домов откроются магазины, кафе и другие сервисы. А для владельцев автомобилей предусмотрен подземный паркинг. Планировки В проекте вы найдёте квартиры с готовой отделкой и умными планировками: есть варианты с мастер-спальней, кухней-гостиной, двумя санузлами и гардеробной. Большим семьям понравятся квартиры со спальнями, которые разнесены по разные стороны гостиной. В проекте представлены разнообразные балконы: французские, открытые и закрытые. Есть планировки с угловыми окнами и окнами в пол с видами на Головинские пруды. Артикул - 979837
Продаётся 1-комн.квартира площадью 32.50 кв.м на 10 этаже 23 этажного дома (Корпус 1.1.1, секция 1) проекта ПИК Онежский вал. Светлый просторный подъезд на уровне земли, функциональная планировка, большие окна, с отделкой. «Онежский вал» — квартал «Серии плюс» с продуманной архитектурой в историческом районе Западное Дегунино на севере Москвы. До станции метро «Селигерская» можно дойти за 10 минут, а до МЦД «Моссельмаш» — 15 минут. Автомобилисты оценят удобный выезд на Дмитровское шоссе, до которого всего пара минут пути, а до МСД и СВХ — 10 минут. Район, в котором строится проект, хорошо развит и окружён парками. В шаговой доступности есть школы, детские сады и поликлиники. В 14 минутах пешком от проекта работают торговые центры. Рядом с кварталом несколько природных зон: 11 минут пешком до парка им. Святослава Фёдорова и 15 минут до Орловского сада. Архитектура и лобби Архитектура квартала навеяна северной природой: разновысотные здания повторяют живописные линии северных скал и высоких хвойных деревьев. Это отражено и в колористике — фасады окрашены в цвета серого гранита, сосновой коры и серебристой глади воды. Дизайн лобби на первых этажах домов выполнен в стиле современного минимализма. Для комфорта жителей и их гостей в лобби есть зона ожидания, быстрые тихие лифты и помещение для хранения колясок и велосипедов. Инфраструктура В проекте появится детский сад на 350 мест, школа для 800 учеников и современная поликлиника. А ещё четырёхэтажный физкультурный комплекс с бассейном и деловое пространство ЛАВИН воркплейс с современными офисами, пространствами для работы и ритейлом. Благоустройство в проекте навеяно северной природой. Через квартал протянется пешеходный бульвар для прогулок и отдыха на свежем воздухе. Во дворах будут ждать зелёные парки с местами для отдыха, детскими и спортивными площадками. На первых этажах домов — торговая аллея с магазинами, кафе и полезными сервисами. А для владельцев автомобилей построим двухуровневый подземный и два наземных паркинга. Планировки В «Онежском валу» широкий выбор планировок с мастер-спальнями с собственной ванной, просторными кухнями-гостиными, компактными кухнями-нишами и двумя санузлами. Для ценителей простора и обилия солнечного света есть квартиры с панорамными окнами в пол, террасами, открытыми, французскими и угловыми балконами. Артикул - 1039472
Продаётся квартира-студия площадью 22.70 кв.м на 6 этаже 38 этажного дома (Корпус 1.1, секция 1) проекта ПИК Нарвин. Светлый просторный подъезд на уровне земли, функциональная планировка, большие окна, с отделкой. «Нарвин» — камерный квартал с продуманной архитектурой в зелёном районе на северо-западе Москвы. Всего в 10 минутах пешком — метро «Водный стадион», а в 20 минутах — МЦК «Коптево». Дорога на автомобиле до ТТК займёт 10 минут. Район хорошо развит: в шаговой доступности от проекта есть школы, детские сады, поликлиники, студии фитнеса и кафе. Всего в 5 минутах пешком от квартала есть крупный ТЦ «Водный стадион». За 8 минут можно дойти до Головинских прудов, за 10 минут — до Кронштадтского сквера, а за 15 минут — до парка Дружбы. Архитектура и лобби Архитектурную концепцию разработало бюро российское бюро «ГАФА». В проекте три здания, каждое обладает уникальным строгим силуэтом, созданным за счёт чередования цветов и форм. Дизайн проработан и внутри домов. На первых этажах — просторные и светлые лобби с дизайнерской отделкой. Здесь появятся зоны ожидания, скоростные лифты и помещение для хранения колясок и велосипедов. Инфраструктура На территории проекта появятся уютные дворы-парки с местами для отдыха, лавочками с разъёмами для зарядки под разные устройства, детскими и спортивными площадками. На первых этажах домов откроются магазины, кафе и другие сервисы. А для владельцев автомобилей предусмотрен подземный паркинг. Планировки В проекте вы найдёте квартиры с готовой отделкой и умными планировками: есть варианты с мастер-спальней, кухней-гостиной, двумя санузлами и гардеробной. Большим семьям понравятся квартиры со спальнями, которые разнесены по разные стороны гостиной. В проекте представлены разнообразные балконы: французские, открытые и закрытые. Есть планировки с угловыми окнами и окнами в пол с видами на Головинские пруды. Артикул - 979441
Продаётся 1-комн.квартира площадью 38.40 кв.м на 2 этаже 16 этажного дома (Корпус 2.1.6, секция 6) проекта ПИК Середневский лес. Светлый просторный подъезд на уровне земли, функциональная планировка, большие окна, с отделкой. «Середневский лес» — тихий и зелёный квартал в экологичном районе Новой Москвы, недалеко от Валуевского леса. В 10 минутах пути на автомобиле находится станция метро «Аэропорт Внуково», а в 15 минутах — станции «Филатов луг» и «Саларьево». Переехав сюда, вы получаете московскую регистрацию, а вместе с ней — доступ ко всем преимуществам жизни в Москве. Инфраструктура проекта В квартале уже открыта школа на 1100 мест и детский сад для 325 малышей, а в дальнейшем откроется ещё один детсад для 340 детей. Уже открыто общественное пространство для прогулок, отдыха и встреч жителей: есть игровые площадки, места для отдыха, пешеходные маршруты и велопарковка. На первых этажах домов работают кафе, магазины, аптеки, медицинские центры и пункты выдачи онлайн-магазинов. Планировки В «Середневском лесу» широкий выбор умных планировок с мастер-спальней, кухней-гостиной и гардеробной, которые подстроятся под любой сценарий жизни. Можно выбрать квартиру с балконом, террасой, эркером и окнами в пол. Все квартиры сдаются с готовой отделкой. Артикул - 1038569
Новостройки на старте продаж

Реклама: adv@mapestate.ru

Редакция: info@mapestate.ru

О проекте

Контакты

Реклама на сайте

Правообладателям

X
Авторизуйтесь для этого действия
Нажимая на иконку социальной сети для регистрации или авторизации, я соглашаюсь с условиями использования сайта Mapestate.ru и подтверждаю, что ознакомился с политикой обработки персональных данных.
Отправить заявку
Заполните все обязательные поля
Вы не дали согласия на обработку персональных данных и рекламную рассылку
Вы не верно ввели код
Ваши данные отправлены
Нажимая кнопку «Отправить», я соглашаюсь с условиями использования сайта Mapestate.ru и подтверждаю, что ознакомился с политикой обработки персональных данных.