Ваш регион: Москва г
+
Объявления / Продажа / Жилая / Москва г
Сортировка:
Продаётся 1-комн.квартира площадью 32.30 кв.м на 2 этаже 23 этажного дома (Корпус 1.1.1, секция 1) проекта ПИК Онежский вал. Светлый просторный подъезд на уровне земли, функциональная планировка, большие окна, с отделкой. «Онежский вал» — квартал «Серии плюс» с продуманной архитектурой в историческом районе Западное Дегунино на севере Москвы. До станции метро «Селигерская» можно дойти за 10 минут, а до МЦД «Моссельмаш» — 15 минут. Автомобилисты оценят удобный выезд на Дмитровское шоссе, до которого всего пара минут пути, а до МСД и СВХ — 10 минут. Район, в котором строится проект, хорошо развит и окружён парками. В шаговой доступности есть школы, детские сады и поликлиники. В 14 минутах пешком от проекта работают торговые центры. Рядом с кварталом несколько природных зон: 11 минут пешком до парка им. Святослава Фёдорова и 15 минут до Орловского сада. Архитектура и лобби Архитектура квартала навеяна северной природой: разновысотные здания повторяют живописные линии северных скал и высоких хвойных деревьев. Это отражено и в колористике — фасады окрашены в цвета серого гранита, сосновой коры и серебристой глади воды. Дизайн лобби на первых этажах домов выполнен в стиле современного минимализма. Для комфорта жителей и их гостей в лобби есть зона ожидания, быстрые тихие лифты и помещение для хранения колясок и велосипедов. Инфраструктура В проекте появится детский сад на 350 мест, школа для 800 учеников и современная поликлиника. А ещё четырёхэтажный физкультурный комплекс с бассейном и деловое пространство ЛАВИН воркплейс с современными офисами, пространствами для работы и ритейлом. Благоустройство в проекте навеяно северной природой. Через квартал протянется пешеходный бульвар для прогулок и отдыха на свежем воздухе. Во дворах будут ждать зелёные парки с местами для отдыха, детскими и спортивными площадками. На первых этажах домов — торговая аллея с магазинами, кафе и полезными сервисами. А для владельцев автомобилей построим двухуровневый подземный и два наземных паркинга. Планировки В «Онежском валу» широкий выбор планировок с мастер-спальнями с собственной ванной, просторными кухнями-гостиными, компактными кухнями-нишами и двумя санузлами. Для ценителей простора и обилия солнечного света есть квартиры с панорамными окнами в пол, террасами, открытыми, французскими и угловыми балконами. Артикул - 1039401
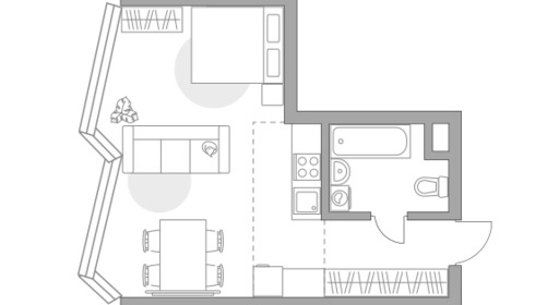
Продаётся 2-комн.квартира площадью 59.00 кв.м на 2 этаже 18 этажного дома (Корпус 1.1.3, секция 3) проекта ПИК Онежский вал. Светлый просторный подъезд на уровне земли, функциональная планировка, большие окна, с отделкой. «Онежский вал» — квартал «Серии плюс» с продуманной архитектурой в историческом районе Западное Дегунино на севере Москвы. До станции метро «Селигерская» можно дойти за 10 минут, а до МЦД «Моссельмаш» — 15 минут. Автомобилисты оценят удобный выезд на Дмитровское шоссе, до которого всего пара минут пути, а до МСД и СВХ — 10 минут. Район, в котором строится проект, хорошо развит и окружён парками. В шаговой доступности есть школы, детские сады и поликлиники. В 14 минутах пешком от проекта работают торговые центры. Рядом с кварталом несколько природных зон: 11 минут пешком до парка им. Святослава Фёдорова и 15 минут до Орловского сада. Архитектура и лобби Архитектура квартала навеяна северной природой: разновысотные здания повторяют живописные линии северных скал и высоких хвойных деревьев. Это отражено и в колористике — фасады окрашены в цвета серого гранита, сосновой коры и серебристой глади воды. Дизайн лобби на первых этажах домов выполнен в стиле современного минимализма. Для комфорта жителей и их гостей в лобби есть зона ожидания, быстрые тихие лифты и помещение для хранения колясок и велосипедов. Инфраструктура В проекте появится детский сад на 350 мест, школа для 800 учеников и современная поликлиника. А ещё четырёхэтажный физкультурный комплекс с бассейном и деловое пространство ЛАВИН воркплейс с современными офисами, пространствами для работы и ритейлом. Благоустройство в проекте навеяно северной природой. Через квартал протянется пешеходный бульвар для прогулок и отдыха на свежем воздухе. Во дворах будут ждать зелёные парки с местами для отдыха, детскими и спортивными площадками. На первых этажах домов — торговая аллея с магазинами, кафе и полезными сервисами. А для владельцев автомобилей построим двухуровневый подземный и два наземных паркинга. Планировки В «Онежском валу» широкий выбор планировок с мастер-спальнями с собственной ванной, просторными кухнями-гостиными, компактными кухнями-нишами и двумя санузлами. Для ценителей простора и обилия солнечного света есть квартиры с панорамными окнами в пол, террасами, открытыми, французскими и угловыми балконами. Артикул - 1039653
Продаётся квартира-студия площадью 23.60 кв.м на 28 этаже 32 этажного дома (Корпус 4.5, секция 2) проекта ПИК Мичуринский парк. Светлый просторный подъезд на уровне земли, функциональная планировка, большие окна, с отделкой. «Мичуринский парк» — проект с уникальной архитектурой в районе Очаково-Матвеевское на западе Москвы. В 7 минутах пешком от проекта — станция метро «Озёрная». Дорога до МКАД на автомобиле займёт 3 минуты, а до ТТК — 20 минут. Район отлично развит: есть университеты, школы и детские сады, магазины и торговые центры. Для прогулок и отдыха в пешей доступности от проекта есть Очаковский парк, парк Школьников и парк Олимпийской деревни. Архитектура и лобби Архитектурную концепцию корпусов «Серии плюс» разработала российское бюро КК. У каждого здания свой характер за счёт уникальной формы и рельефа фасадов. А разноуровневые завершения башен создают выразительные силуэты. Дизайн проработан и внутри домов. На первых этажах — просторные и светлые лобби с дизайнерской отделкой. Здесь появятся зоны ожидания, скоростные лифты и помещение для хранения колясок и велосипедов. Инфраструктура На территории проекта появятся две школы, два детских сада и МФК ЛЕЙКС, для шопинга и работы. Для отдыха, игр и спорта мы построим большое многофункциональное пространство — МультиХаб «Клевер». Во дворах-парках появятся места для отдыха, детские и спортивные площадки. Для автомобилистов предусмотрен подземный паркинг, а на первых этажах домов откроются магазины, кафе и полезные сервисы. Планировки В «Мичуринском парке» широкий выбор планировок для разных сценариев жизни. Мы предусмотрели мастер-спальни с собственной ванной и местом для гардероба. Есть планировки с просторной кухней-гостиной, постирочной и дополнительным санузлом. В проекте можно найти уникальные форматы квартир с эркерами, окнами в пол, одним или двумя балконами в квартире. Артикул - 955961
Продаётся 2-комн.квартира площадью 53.00 кв.м на 11 этаже 12 этажного дома (Корпус 4.2, секция 2) проекта ПИК Амурский парк. Светлый просторный подъезд на уровне земли, функциональная планировка, большие окна, с отделкой. «Амурский парк» — проект «Серии плюс» с видом на Измайловский парк. Квартал возводится на востоке Москвы, в 10 минутах пешком от станций метро «Черкизовская» и МЦК «Локомотив». Доехать от проекта на машине до ТТК или МКАД можно за 15 минут, а до Садового кольца — за 17 минут. В районе вокруг «Амурского парка» есть всё для комфортной жизни: в шаговой доступности школы, детские сады и поликлиника. Всего в 8 минутах от квартала находится уютный Сиреневый сад, а в 20 минутах — Детский Черкизовский парк. За 10 минут на автомобиле можно доехать до парка Лосиный остров. Архитектура и лобби Квартал от архитектурной мастерской М.А.М. органично дополняет городской ландшафт. Разновысотные корпуса в минималистичном стиле сочетают мягкие пластичные линии и строгие геометрические формы. Цветовая гамма фасадов — контраст терракотового и молочно-серого оттенков, которые создают атмосферу тепла и уюта. На первых этажах домов — просторные и светлые лобби с дизайнерской отделкой. Здесь появятся зоны ожидания, скоростные лифты и помещение для хранения колясок и велосипедов. Инфраструктура проекта На территории проекта появится детский сад с бассейном для 250 малышей. В уютных дворах-парках есть места для отдыха, игровые и спортивные площадки. На первых этажах домов откроются магазины, кафе и другие сервисы. А для владельцев автомобилей предусмотрен подземный паркинг. Планировки В проекте большой выбор планировок: есть варианты с мастер-спальней, гардеробной, постирочной и двумя санузлами. Балконы с оригинальными стеклянными ограждениями придадут вашей квартире уникальный стиль. Ещё в проекте можно выбрать квартиру с видом на Измайловский парк — вы сможете ежедневно наслаждаться красотами природы и заряжаться энергией. Артикул - 1020411
Продаётся 1-комн.квартира площадью 41.20 кв.м на 2 этаже 23 этажного дома (Корпус 1.1.1, секция 1) проекта ПИК Онежский вал. Светлый просторный подъезд на уровне земли, функциональная планировка, большие окна, с отделкой. «Онежский вал» — квартал «Серии плюс» с продуманной архитектурой в историческом районе Западное Дегунино на севере Москвы. До станции метро «Селигерская» можно дойти за 10 минут, а до МЦД «Моссельмаш» — 15 минут. Автомобилисты оценят удобный выезд на Дмитровское шоссе, до которого всего пара минут пути, а до МСД и СВХ — 10 минут. Район, в котором строится проект, хорошо развит и окружён парками. В шаговой доступности есть школы, детские сады и поликлиники. В 14 минутах пешком от проекта работают торговые центры. Рядом с кварталом несколько природных зон: 11 минут пешком до парка им. Святослава Фёдорова и 15 минут до Орловского сада. Архитектура и лобби Архитектура квартала навеяна северной природой: разновысотные здания повторяют живописные линии северных скал и высоких хвойных деревьев. Это отражено и в колористике — фасады окрашены в цвета серого гранита, сосновой коры и серебристой глади воды. Дизайн лобби на первых этажах домов выполнен в стиле современного минимализма. Для комфорта жителей и их гостей в лобби есть зона ожидания, быстрые тихие лифты и помещение для хранения колясок и велосипедов. Инфраструктура В проекте появится детский сад на 350 мест, школа для 800 учеников и современная поликлиника. А ещё четырёхэтажный физкультурный комплекс с бассейном и деловое пространство ЛАВИН воркплейс с современными офисами, пространствами для работы и ритейлом. Благоустройство в проекте навеяно северной природой. Через квартал протянется пешеходный бульвар для прогулок и отдыха на свежем воздухе. Во дворах будут ждать зелёные парки с местами для отдыха, детскими и спортивными площадками. На первых этажах домов — торговая аллея с магазинами, кафе и полезными сервисами. А для владельцев автомобилей построим двухуровневый подземный и два наземных паркинга. Планировки В «Онежском валу» широкий выбор планировок с мастер-спальнями с собственной ванной, просторными кухнями-гостиными, компактными кухнями-нишами и двумя санузлами. Для ценителей простора и обилия солнечного света есть квартиры с панорамными окнами в пол, террасами, открытыми, французскими и угловыми балконами. Артикул - 1039397
Продаётся 3-комн.квартира площадью 67.30 кв.м на 19 этаже 19 этажного дома (Корпус 1.2, секция 2) проекта ПИК Нарвин. Светлый просторный подъезд на уровне земли, функциональная планировка, большие окна, с отделкой. «Нарвин» — камерный квартал с продуманной архитектурой в зелёном районе на северо-западе Москвы. Всего в 10 минутах пешком — метро «Водный стадион», а в 20 минутах — МЦК «Коптево». Дорога на автомобиле до ТТК займёт 10 минут. Район хорошо развит: в шаговой доступности от проекта есть школы, детские сады, поликлиники, студии фитнеса и кафе. Всего в 5 минутах пешком от квартала есть крупный ТЦ «Водный стадион». За 8 минут можно дойти до Головинских прудов, за 10 минут — до Кронштадтского сквера, а за 15 минут — до парка Дружбы. Архитектура и лобби Архитектурную концепцию разработало бюро российское бюро «ГАФА». В проекте три здания, каждое обладает уникальным строгим силуэтом, созданным за счёт чередования цветов и форм. Дизайн проработан и внутри домов. На первых этажах — просторные и светлые лобби с дизайнерской отделкой. Здесь появятся зоны ожидания, скоростные лифты и помещение для хранения колясок и велосипедов. Инфраструктура На территории проекта появятся уютные дворы-парки с местами для отдыха, лавочками с разъёмами для зарядки под разные устройства, детскими и спортивными площадками. На первых этажах домов откроются магазины, кафе и другие сервисы. А для владельцев автомобилей предусмотрен подземный паркинг. Планировки В проекте вы найдёте квартиры с готовой отделкой и умными планировками: есть варианты с мастер-спальней, кухней-гостиной, двумя санузлами и гардеробной. Большим семьям понравятся квартиры со спальнями, которые разнесены по разные стороны гостиной. В проекте представлены разнообразные балконы: французские, открытые и закрытые. Есть планировки с угловыми окнами и окнами в пол с видами на Головинские пруды. Артикул - 980011
Продаётся 1-комн.квартира площадью 33.70 кв.м на 7 этаже 31 этажного дома (Корпус 4.3, секция 2) проекта ПИК Мичуринский парк. Светлый просторный подъезд на уровне земли, функциональная планировка, большие окна, с отделкой. «Мичуринский парк» — проект с уникальной архитектурой в районе Очаково-Матвеевское на западе Москвы. В 7 минутах пешком от проекта — станция метро «Озёрная». Дорога до МКАД на автомобиле займёт 3 минуты, а до ТТК — 20 минут. Район отлично развит: есть университеты, школы и детские сады, магазины и торговые центры. Для прогулок и отдыха в пешей доступности от проекта есть Очаковский парк, парк Школьников и парк Олимпийской деревни. Архитектура и лобби Архитектурную концепцию корпусов «Серии плюс» разработала российское бюро КК. У каждого здания свой характер за счёт уникальной формы и рельефа фасадов. А разноуровневые завершения башен создают выразительные силуэты. Дизайн проработан и внутри домов. На первых этажах — просторные и светлые лобби с дизайнерской отделкой. Здесь появятся зоны ожидания, скоростные лифты и помещение для хранения колясок и велосипедов. Инфраструктура На территории проекта появятся две школы, два детских сада и МФК ЛЕЙКС, для шопинга и работы. Для отдыха, игр и спорта мы построим большое многофункциональное пространство — МультиХаб «Клевер». Во дворах-парках появятся места для отдыха, детские и спортивные площадки. Для автомобилистов предусмотрен подземный паркинг, а на первых этажах домов откроются магазины, кафе и полезные сервисы. Планировки В «Мичуринском парке» широкий выбор планировок для разных сценариев жизни. Мы предусмотрели мастер-спальни с собственной ванной и местом для гардероба. Есть планировки с просторной кухней-гостиной, постирочной и дополнительным санузлом. В проекте можно найти уникальные форматы квартир с эркерами, окнами в пол, одним или двумя балконами в квартире. Артикул - 983218
Продаётся 2-комн.квартира площадью 53.40 кв.м на 12 этаже 27 этажного дома (Корпус 4.3, секция 3) проекта ПИК Амурский парк. Светлый просторный подъезд на уровне земли, функциональная планировка, большие окна, с отделкой. «Амурский парк» — проект «Серии плюс» с видом на Измайловский парк. Квартал возводится на востоке Москвы, в 10 минутах пешком от станций метро «Черкизовская» и МЦК «Локомотив». Доехать от проекта на машине до ТТК или МКАД можно за 15 минут, а до Садового кольца — за 17 минут. В районе вокруг «Амурского парка» есть всё для комфортной жизни: в шаговой доступности школы, детские сады и поликлиника. Всего в 8 минутах от квартала находится уютный Сиреневый сад, а в 20 минутах — Детский Черкизовский парк. За 10 минут на автомобиле можно доехать до парка Лосиный остров. Архитектура и лобби Квартал от архитектурной мастерской М.А.М. органично дополняет городской ландшафт. Разновысотные корпуса в минималистичном стиле сочетают мягкие пластичные линии и строгие геометрические формы. Цветовая гамма фасадов — контраст терракотового и молочно-серого оттенков, которые создают атмосферу тепла и уюта. На первых этажах домов — просторные и светлые лобби с дизайнерской отделкой. Здесь появятся зоны ожидания, скоростные лифты и помещение для хранения колясок и велосипедов. Инфраструктура проекта На территории проекта появится детский сад с бассейном для 250 малышей. В уютных дворах-парках есть места для отдыха, игровые и спортивные площадки. На первых этажах домов откроются магазины, кафе и другие сервисы. А для владельцев автомобилей предусмотрен подземный паркинг. Планировки В проекте большой выбор планировок: есть варианты с мастер-спальней, гардеробной, постирочной и двумя санузлами. Балконы с оригинальными стеклянными ограждениями придадут вашей квартире уникальный стиль. Ещё в проекте можно выбрать квартиру с видом на Измайловский парк — вы сможете ежедневно наслаждаться красотами природы и заряжаться энергией. Артикул - 1020522
Продаётся 2-комн.квартира площадью 59.00 кв.м на 9 этаже 16 этажного дома (Корпус 2.1.3, секция 3) проекта ПИК Середневский лес. Светлый просторный подъезд на уровне земли, функциональная планировка, большие окна, с отделкой. «Середневский лес» — тихий и зелёный квартал в экологичном районе Новой Москвы, недалеко от Валуевского леса. В 10 минутах пути на автомобиле находится станция метро «Аэропорт Внуково», а в 15 минутах — станции «Филатов луг» и «Саларьево». Переехав сюда, вы получаете московскую регистрацию, а вместе с ней — доступ ко всем преимуществам жизни в Москве. Инфраструктура проекта В квартале уже открыта школа на 1100 мест и детский сад для 325 малышей, а в дальнейшем откроется ещё один детсад для 340 детей. Уже открыто общественное пространство для прогулок, отдыха и встреч жителей: есть игровые площадки, места для отдыха, пешеходные маршруты и велопарковка. На первых этажах домов работают кафе, магазины, аптеки, медицинские центры и пункты выдачи онлайн-магазинов. Планировки В «Середневском лесу» широкий выбор умных планировок с мастер-спальней, кухней-гостиной и гардеробной, которые подстроятся под любой сценарий жизни. Можно выбрать квартиру с балконом, террасой, эркером и окнами в пол. Все квартиры сдаются с готовой отделкой. Артикул - 1037967
Продаётся 1-комн.квартира площадью 37.60 кв.м на 2 этаже 19 этажного дома (Корпус 4.4, секция 4) проекта ПИК Амурский парк. Светлый просторный подъезд на уровне земли, функциональная планировка, большие окна, с отделкой. «Амурский парк» — проект «Серии плюс» с видом на Измайловский парк. Квартал возводится на востоке Москвы, в 10 минутах пешком от станций метро «Черкизовская» и МЦК «Локомотив». Доехать от проекта на машине до ТТК или МКАД можно за 15 минут, а до Садового кольца — за 17 минут. В районе вокруг «Амурского парка» есть всё для комфортной жизни: в шаговой доступности школы, детские сады и поликлиника. Всего в 8 минутах от квартала находится уютный Сиреневый сад, а в 20 минутах — Детский Черкизовский парк. За 10 минут на автомобиле можно доехать до парка Лосиный остров. Архитектура и лобби Квартал от архитектурной мастерской М.А.М. органично дополняет городской ландшафт. Разновысотные корпуса в минималистичном стиле сочетают мягкие пластичные линии и строгие геометрические формы. Цветовая гамма фасадов — контраст терракотового и молочно-серого оттенков, которые создают атмосферу тепла и уюта. На первых этажах домов — просторные и светлые лобби с дизайнерской отделкой. Здесь появятся зоны ожидания, скоростные лифты и помещение для хранения колясок и велосипедов. Инфраструктура проекта На территории проекта появится детский сад с бассейном для 250 малышей. В уютных дворах-парках есть места для отдыха, игровые и спортивные площадки. На первых этажах домов откроются магазины, кафе и другие сервисы. А для владельцев автомобилей предусмотрен подземный паркинг. Планировки В проекте большой выбор планировок: есть варианты с мастер-спальней, гардеробной, постирочной и двумя санузлами. Балконы с оригинальными стеклянными ограждениями придадут вашей квартире уникальный стиль. Ещё в проекте можно выбрать квартиру с видом на Измайловский парк — вы сможете ежедневно наслаждаться красотами природы и заряжаться энергией. Артикул - 1020662
Новостройки на старте продаж

Реклама: adv@mapestate.ru

Редакция: info@mapestate.ru

О проекте

Контакты

Реклама на сайте

Правообладателям

X
Авторизуйтесь для этого действия
Нажимая на иконку социальной сети для регистрации или авторизации, я соглашаюсь с условиями использования сайта Mapestate.ru и подтверждаю, что ознакомился с политикой обработки персональных данных.
Отправить заявку
Заполните все обязательные поля
Вы не дали согласия на обработку персональных данных и рекламную рассылку
Вы не верно ввели код
Ваши данные отправлены
Нажимая кнопку «Отправить», я соглашаюсь с условиями использования сайта Mapestate.ru и подтверждаю, что ознакомился с политикой обработки персональных данных.