Ваш регион: Москва г
+
Объявления / Продажа / Жилая / Москва г
Сортировка:
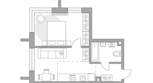
Продаётся 1-комн.квартира площадью 33.60 кв.м на 15 этаже 25 этажного дома (Корпус 18-20, секция 1) проекта ПИК Люблинский парк. Светлый просторный подъезд на уровне земли, функциональная планировка, большие окна, с отделкой. Жилой квартал «Люблинский парк» расположен на юго-востоке Москвы, в шаговой доступности от станции «Братиславская». На метро до центра ехать всего 30 минут. Также недалеко станция МЦД «Перерва», от которой можно уехать в Москву или в область. В проекте 54 жилых корпуса, три школы, семь детских садов, поликлиника. В районе есть все условия для комфортной жизни: торговые центры, школы, детские сады, поликлиники и спортивные центры. Рядом находятся усадьба Люблино, скверы и парки. Различные магазины, кафе и другие сервисы откроются на первых этажах, а на подземных будут паркинги с удобной навигацией. В зелёных дворах без автомобилей мы построим детские площадки и места для отдыха. А ещё «Люблинский парк» стал третьим проектом ПИК с большой игровой площадкой ПлейХаб, которая уже открылась между 1-м и 2-м блоками на безопасном расстоянии от дороги. Новое детское пространство «Остров» воплощает идею бесконечной игры. Ландшафт площадки — это ещё и игровой элемент, который помогает детям придумывать множество самых разнообразных игр. Здесь интересно детям разного возраста — от малышей до подростков. Жителям квартала Люблинский парк и их друзьям доступен проект ПИКСПОРТ — это бесплатные занятия с профессиональными тренерами. Тренировки по разным направлениям, например йога, фитнес, бег, проходят как в группе на улице рядом с домом, так и онлайн. Артикул - 604777
Продаётся квартира-студия площадью 19.80 кв.м на 23 этаже 25 этажного дома (Корпус 19, секция 1) проекта ПИК Люблинский парк. Светлый просторный подъезд на уровне земли, функциональная планировка, большие окна, с отделкой. Жилой квартал «Люблинский парк» расположен на юго-востоке Москвы, в шаговой доступности от станции «Братиславская». На метро до центра ехать всего 30 минут. Также недалеко станция МЦД «Перерва», от которой можно уехать в Москву или в область. В проекте 54 жилых корпуса, три школы, семь детских садов, поликлиника. В районе есть все условия для комфортной жизни: торговые центры, школы, детские сады, поликлиники и спортивные центры. Рядом находятся усадьба Люблино, скверы и парки. Различные магазины, кафе и другие сервисы откроются на первых этажах, а на подземных будут паркинги с удобной навигацией. В зелёных дворах без автомобилей мы построим детские площадки и места для отдыха. А ещё «Люблинский парк» стал третьим проектом ПИК с большой игровой площадкой ПлейХаб, которая уже открылась между 1-м и 2-м блоками на безопасном расстоянии от дороги. Новое детское пространство «Остров» воплощает идею бесконечной игры. Ландшафт площадки — это ещё и игровой элемент, который помогает детям придумывать множество самых разнообразных игр. Здесь интересно детям разного возраста — от малышей до подростков. Жителям квартала Люблинский парк и их друзьям доступен проект ПИКСПОРТ — это бесплатные занятия с профессиональными тренерами. Тренировки по разным направлениям, например йога, фитнес, бег, проходят как в группе на улице рядом с домом, так и онлайн. Артикул - 605314
Продаётся 2-комн.квартира площадью 49.70 кв.м на 3 этаже 16 этажного дома (Корпус 2.1.4, секция 4) проекта ПИК Середневский лес. Светлый просторный подъезд на уровне земли, функциональная планировка, большие окна, с отделкой. «Середневский лес» — тихий и зелёный квартал в экологичном районе Новой Москвы, недалеко от Валуевского леса. В 10 минутах пути на автомобиле находится станция метро «Аэропорт Внуково», а в 15 минутах — станции «Филатов луг» и «Саларьево». Переехав сюда, вы получаете московскую регистрацию, а вместе с ней — доступ ко всем преимуществам жизни в Москве. Инфраструктура проекта В квартале уже открыта школа на 1100 мест и детский сад для 325 малышей, а в дальнейшем откроется ещё один детсад для 340 детей. Уже открыто общественное пространство для прогулок, отдыха и встреч жителей: есть игровые площадки, места для отдыха, пешеходные маршруты и велопарковка. На первых этажах домов работают кафе, магазины, аптеки, медицинские центры и пункты выдачи онлайн-магазинов. Планировки В «Середневском лесу» широкий выбор умных планировок с мастер-спальней, кухней-гостиной и гардеробной, которые подстроятся под любой сценарий жизни. Можно выбрать квартиру с балконом, террасой, эркером и окнами в пол. Все квартиры сдаются с готовой отделкой. Артикул - 1038062
Продаётся 2-комн.квартира площадью 55.00 кв.м на 3 этаже 31 этажного дома (Корпус 4.3, секция 2) проекта ПИК Мичуринский парк. Светлый просторный подъезд на уровне земли, функциональная планировка, большие окна, с отделкой. «Мичуринский парк» — проект с уникальной архитектурой в районе Очаково-Матвеевское на западе Москвы. В 7 минутах пешком от проекта — станция метро «Озёрная». Дорога до МКАД на автомобиле займёт 3 минуты, а до ТТК — 20 минут. Район отлично развит: есть университеты, школы и детские сады, магазины и торговые центры. Для прогулок и отдыха в пешей доступности от проекта есть Очаковский парк, парк Школьников и парк Олимпийской деревни. Архитектура и лобби Архитектурную концепцию корпусов «Серии плюс» разработала российское бюро КК. У каждого здания свой характер за счёт уникальной формы и рельефа фасадов. А разноуровневые завершения башен создают выразительные силуэты. Дизайн проработан и внутри домов. На первых этажах — просторные и светлые лобби с дизайнерской отделкой. Здесь появятся зоны ожидания, скоростные лифты и помещение для хранения колясок и велосипедов. Инфраструктура На территории проекта появятся две школы, два детских сада и МФК ЛЕЙКС, для шопинга и работы. Для отдыха, игр и спорта мы построим большое многофункциональное пространство — МультиХаб «Клевер». Во дворах-парках появятся места для отдыха, детские и спортивные площадки. Для автомобилистов предусмотрен подземный паркинг, а на первых этажах домов откроются магазины, кафе и полезные сервисы. Планировки В «Мичуринском парке» широкий выбор планировок для разных сценариев жизни. Мы предусмотрели мастер-спальни с собственной ванной и местом для гардероба. Есть планировки с просторной кухней-гостиной, постирочной и дополнительным санузлом. В проекте можно найти уникальные форматы квартир с эркерами, окнами в пол, одним или двумя балконами в квартире. Артикул - 983894
Продаётся 2-комн.квартира площадью 53.20 кв.м на 18 этаже 18 этажного дома (Корпус 1.1.3, секция 3) проекта ПИК Онежский вал. Светлый просторный подъезд на уровне земли, функциональная планировка, большие окна, с отделкой. «Онежский вал» — квартал «Серии плюс» с продуманной архитектурой в историческом районе Западное Дегунино на севере Москвы. До станции метро «Селигерская» можно дойти за 10 минут, а до МЦД «Моссельмаш» — 15 минут. Автомобилисты оценят удобный выезд на Дмитровское шоссе, до которого всего пара минут пути, а до МСД и СВХ — 10 минут. Район, в котором строится проект, хорошо развит и окружён парками. В шаговой доступности есть школы, детские сады и поликлиники. В 14 минутах пешком от проекта работают торговые центры. Рядом с кварталом несколько природных зон: 11 минут пешком до парка им. Святослава Фёдорова и 15 минут до Орловского сада. Архитектура и лобби Архитектура квартала навеяна северной природой: разновысотные здания повторяют живописные линии северных скал и высоких хвойных деревьев. Это отражено и в колористике — фасады окрашены в цвета серого гранита, сосновой коры и серебристой глади воды. Дизайн лобби на первых этажах домов выполнен в стиле современного минимализма. Для комфорта жителей и их гостей в лобби есть зона ожидания, быстрые тихие лифты и помещение для хранения колясок и велосипедов. Инфраструктура В проекте появится детский сад на 350 мест, школа для 800 учеников и современная поликлиника. А ещё четырёхэтажный физкультурный комплекс с бассейном и деловое пространство ЛАВИН воркплейс с современными офисами, пространствами для работы и ритейлом. Благоустройство в проекте навеяно северной природой. Через квартал протянется пешеходный бульвар для прогулок и отдыха на свежем воздухе. Во дворах будут ждать зелёные парки с местами для отдыха, детскими и спортивными площадками. На первых этажах домов — торговая аллея с магазинами, кафе и полезными сервисами. А для владельцев автомобилей построим двухуровневый подземный и два наземных паркинга. Планировки В «Онежском валу» широкий выбор планировок с мастер-спальнями с собственной ванной, просторными кухнями-гостиными, компактными кухнями-нишами и двумя санузлами. Для ценителей простора и обилия солнечного света есть квартиры с панорамными окнами в пол, террасами, открытыми, французскими и угловыми балконами. Артикул - 1039788
Продаётся 1-комн.квартира площадью 33.20 кв.м на 12 этаже 14 этажного дома (Корпус 2.3, секция 1) проекта ПИК Лосиноостровский парк. Светлый просторный подъезд на уровне земли, функциональная планировка, большие окна. «Лосиноостровский парк» — проект с выразительной архитектурой на северо-востоке Москвы, в зелёном районе Метрогородок. В 12 минутах пешком — станция метро и МЦК «Бульвар Рокоссовского». На автомобиле дорога до Северо-Восточной хорды займёт 3 минуты, а до ТТК — 15 минут. В пешей доступности от проекта уже работают школы и детские сады, взрослая и детская поликлиника. В 20 минутах пешком — ТЦ «Место встречи Янтарь». В 10 минутах на машине — стадион «РЖД Арена». Большую часть района занимает парк Лосиный остров — до него от проекта всего 6 минут пешком. Архитектура и лобби Архитектурную концепцию корпуса «Серии плюс» разработало бюро «ХАДА-АРХИТЕКТС». Секции разной этажности формируют верхний и нижний город, которые различаются цветовыми решениями и настроением. Верхние этажи с большими окнами отражают динамику мегаполиса, а на первых этажах расположатся уютные кафе и магазины. Дизайн проработан и внутри домов. На первых этажах — просторные и светлые лобби с дизайнерской отделкой. Здесь появятся зоны ожидания, скоростные лифты и помещение для хранения колясок и велосипедов. Инфраструктура Проект частично реализован: дома первой очереди заселены, на первых этажах открыты магазины и кафе, благоустроены дворы-парки с игровыми и спортивными площадками. Скоро у жителей проекта появится своя школа и детский сад, а через весь квартал протянется длинный пешеходный бульвар для прогулок и отдыха. Планировки Планировки квартир в «Лосиноостровском парке» максимально комфортные и адаптивные — вы можете организовать быт с учётом личных предпочтений. Мы предусмотрели мастер-спальни с собственной ванной и выделенной зоной для гардероба. Также есть варианты с компактной кухней-нишей, постирочной и сквозным санузлом. Артикул - 1017929
Продаётся квартира-студия площадью 28.30 кв.м на 11 этаже 23 этажного дома (Корпус 1.1.1, секция 1) проекта ПИК Онежский вал. Светлый просторный подъезд на уровне земли, функциональная планировка, большие окна, с отделкой. «Онежский вал» — квартал «Серии плюс» с продуманной архитектурой в историческом районе Западное Дегунино на севере Москвы. До станции метро «Селигерская» можно дойти за 10 минут, а до МЦД «Моссельмаш» — 15 минут. Автомобилисты оценят удобный выезд на Дмитровское шоссе, до которого всего пара минут пути, а до МСД и СВХ — 10 минут. Район, в котором строится проект, хорошо развит и окружён парками. В шаговой доступности есть школы, детские сады и поликлиники. В 14 минутах пешком от проекта работают торговые центры. Рядом с кварталом несколько природных зон: 11 минут пешком до парка им. Святослава Фёдорова и 15 минут до Орловского сада. Архитектура и лобби Архитектура квартала навеяна северной природой: разновысотные здания повторяют живописные линии северных скал и высоких хвойных деревьев. Это отражено и в колористике — фасады окрашены в цвета серого гранита, сосновой коры и серебристой глади воды. Дизайн лобби на первых этажах домов выполнен в стиле современного минимализма. Для комфорта жителей и их гостей в лобби есть зона ожидания, быстрые тихие лифты и помещение для хранения колясок и велосипедов. Инфраструктура В проекте появится детский сад на 350 мест, школа для 800 учеников и современная поликлиника. А ещё четырёхэтажный физкультурный комплекс с бассейном и деловое пространство ЛАВИН воркплейс с современными офисами, пространствами для работы и ритейлом. Благоустройство в проекте навеяно северной природой. Через квартал протянется пешеходный бульвар для прогулок и отдыха на свежем воздухе. Во дворах будут ждать зелёные парки с местами для отдыха, детскими и спортивными площадками. На первых этажах домов — торговая аллея с магазинами, кафе и полезными сервисами. А для владельцев автомобилей построим двухуровневый подземный и два наземных паркинга. Планировки В «Онежском валу» широкий выбор планировок с мастер-спальнями с собственной ванной, просторными кухнями-гостиными, компактными кухнями-нишами и двумя санузлами. Для ценителей простора и обилия солнечного света есть квартиры с панорамными окнами в пол, террасами, открытыми, французскими и угловыми балконами. Артикул - 1039488
Продаётся 1-комн.квартира площадью 41.40 кв.м на 19 этаже 23 этажного дома (Корпус 4.6, секция 2) проекта ПИК Мичуринский парк. Светлый просторный подъезд на уровне земли, функциональная планировка, большие окна, с отделкой. «Мичуринский парк» — проект с уникальной архитектурой в районе Очаково-Матвеевское на западе Москвы. В 7 минутах пешком от проекта — станция метро «Озёрная». Дорога до МКАД на автомобиле займёт 3 минуты, а до ТТК — 20 минут. Район отлично развит: есть университеты, школы и детские сады, магазины и торговые центры. Для прогулок и отдыха в пешей доступности от проекта есть Очаковский парк, парк Школьников и парк Олимпийской деревни. Архитектура и лобби Архитектурную концепцию корпусов «Серии плюс» разработала российское бюро КК. У каждого здания свой характер за счёт уникальной формы и рельефа фасадов. А разноуровневые завершения башен создают выразительные силуэты. Дизайн проработан и внутри домов. На первых этажах — просторные и светлые лобби с дизайнерской отделкой. Здесь появятся зоны ожидания, скоростные лифты и помещение для хранения колясок и велосипедов. Инфраструктура На территории проекта появятся две школы, два детских сада и МФК ЛЕЙКС, для шопинга и работы. Для отдыха, игр и спорта мы построим большое многофункциональное пространство — МультиХаб «Клевер». Во дворах-парках появятся места для отдыха, детские и спортивные площадки. Для автомобилистов предусмотрен подземный паркинг, а на первых этажах домов откроются магазины, кафе и полезные сервисы. Планировки В «Мичуринском парке» широкий выбор планировок для разных сценариев жизни. Мы предусмотрели мастер-спальни с собственной ванной и местом для гардероба. Есть планировки с просторной кухней-гостиной, постирочной и дополнительным санузлом. В проекте можно найти уникальные форматы квартир с эркерами, окнами в пол, одним или двумя балконами в квартире. Артикул - 1054841
Продаётся 1-комн.квартира площадью 36.80 кв.м на 2 этаже 12 этажного дома (Корпус 4.2, секция 1) проекта ПИК Амурский парк. Светлый просторный подъезд на уровне земли, функциональная планировка, большие окна, с отделкой. «Амурский парк» — проект «Серии плюс» с видом на Измайловский парк. Квартал возводится на востоке Москвы, в 10 минутах пешком от станций метро «Черкизовская» и МЦК «Локомотив». Доехать от проекта на машине до ТТК или МКАД можно за 15 минут, а до Садового кольца — за 17 минут. В районе вокруг «Амурского парка» есть всё для комфортной жизни: в шаговой доступности школы, детские сады и поликлиника. Всего в 8 минутах от квартала находится уютный Сиреневый сад, а в 20 минутах — Детский Черкизовский парк. За 10 минут на автомобиле можно доехать до парка Лосиный остров. Архитектура и лобби Квартал от архитектурной мастерской М.А.М. органично дополняет городской ландшафт. Разновысотные корпуса в минималистичном стиле сочетают мягкие пластичные линии и строгие геометрические формы. Цветовая гамма фасадов — контраст терракотового и молочно-серого оттенков, которые создают атмосферу тепла и уюта. На первых этажах домов — просторные и светлые лобби с дизайнерской отделкой. Здесь появятся зоны ожидания, скоростные лифты и помещение для хранения колясок и велосипедов. Инфраструктура проекта На территории проекта появится детский сад с бассейном для 250 малышей. В уютных дворах-парках есть места для отдыха, игровые и спортивные площадки. На первых этажах домов откроются магазины, кафе и другие сервисы. А для владельцев автомобилей предусмотрен подземный паркинг. Планировки В проекте большой выбор планировок: есть варианты с мастер-спальней, гардеробной, постирочной и двумя санузлами. Балконы с оригинальными стеклянными ограждениями придадут вашей квартире уникальный стиль. Ещё в проекте можно выбрать квартиру с видом на Измайловский парк — вы сможете ежедневно наслаждаться красотами природы и заряжаться энергией. Артикул - 1020295
Продаётся квартира-студия площадью 20.30 кв.м на 19 этаже 19 этажного дома (Корпус 4.4, секция 4) проекта ПИК Амурский парк. Светлый просторный подъезд на уровне земли, функциональная планировка, большие окна, с отделкой. «Амурский парк» — проект «Серии плюс» с видом на Измайловский парк. Квартал возводится на востоке Москвы, в 10 минутах пешком от станций метро «Черкизовская» и МЦК «Локомотив». Доехать от проекта на машине до ТТК или МКАД можно за 15 минут, а до Садового кольца — за 17 минут. В районе вокруг «Амурского парка» есть всё для комфортной жизни: в шаговой доступности школы, детские сады и поликлиника. Всего в 8 минутах от квартала находится уютный Сиреневый сад, а в 20 минутах — Детский Черкизовский парк. За 10 минут на автомобиле можно доехать до парка Лосиный остров. Архитектура и лобби Квартал от архитектурной мастерской М.А.М. органично дополняет городской ландшафт. Разновысотные корпуса в минималистичном стиле сочетают мягкие пластичные линии и строгие геометрические формы. Цветовая гамма фасадов — контраст терракотового и молочно-серого оттенков, которые создают атмосферу тепла и уюта. На первых этажах домов — просторные и светлые лобби с дизайнерской отделкой. Здесь появятся зоны ожидания, скоростные лифты и помещение для хранения колясок и велосипедов. Инфраструктура проекта На территории проекта появится детский сад с бассейном для 250 малышей. В уютных дворах-парках есть места для отдыха, игровые и спортивные площадки. На первых этажах домов откроются магазины, кафе и другие сервисы. А для владельцев автомобилей предусмотрен подземный паркинг. Планировки В проекте большой выбор планировок: есть варианты с мастер-спальней, гардеробной, постирочной и двумя санузлами. Балконы с оригинальными стеклянными ограждениями придадут вашей квартире уникальный стиль. Ещё в проекте можно выбрать квартиру с видом на Измайловский парк — вы сможете ежедневно наслаждаться красотами природы и заряжаться энергией. Артикул - 1020766
Новостройки на старте продаж

Реклама: adv@mapestate.ru

Редакция: info@mapestate.ru

О проекте

Контакты

Реклама на сайте

Правообладателям

X
Авторизуйтесь для этого действия
Нажимая на иконку социальной сети для регистрации или авторизации, я соглашаюсь с условиями использования сайта Mapestate.ru и подтверждаю, что ознакомился с политикой обработки персональных данных.
Отправить заявку
Заполните все обязательные поля
Вы не дали согласия на обработку персональных данных и рекламную рассылку
Вы не верно ввели код
Ваши данные отправлены
Нажимая кнопку «Отправить», я соглашаюсь с условиями использования сайта Mapestate.ru и подтверждаю, что ознакомился с политикой обработки персональных данных.