Жилой комплекс "Императорские Мытищи" строится компанией "Гранель" у самой границы Пироговского лесопарка, между Болтино и Беляниново Мытищинского района. Под застройку 4-6-этажными домами выделен участок площадью 512 тыс. кв. м. Проект реализуется в несколько этапов. Первыми постоят четыре 6-этажных здания: одно 6-секционное на 189 и три 12-секционных на 349 квартир в каждом. Дома возводятся по монолитно-кирпичной технологии: монолитный каркас, заполненный кладкой из пенобетонных блоков, снаружи по которой монтируется утеплитель и проводится облицовка керамическим кирпичом.
Квартиры
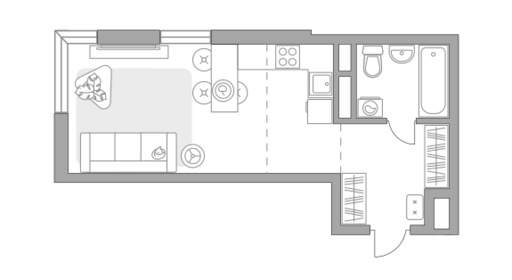
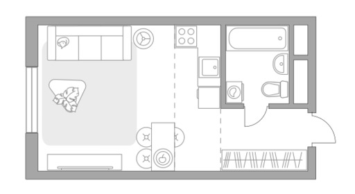
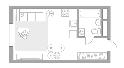
В "Императорских Мытищах" предложены одно-, двух- и трехкомнатные варианты квартир. Продажи стартовали в августе 2015 года. Площадь жилья — от 23 до 85 кв. м. Все помещения сдаются без отделки и межкомнатных перегородок. Исключением служат санузлы, где стены будут выполнены на всю высоту, устраивается цементно-песчаная стяжка и гидроизоляция пола. В окна устанавливаются ПВХ-конструкции с двухкамерными стеклопакетами (без подоконников), проводится одинарное остекление лоджий, и монтируются деревянные входные двери. В квартирах проводится горизонтальная разводка системы отопления с монтажом радиаторов и счетчиков. На электричество устанавливаются двухтарифные однофазные счетчики.
Инфраструктура
Помимо жилой, в квартале появится и социальная инфраструктура, объекты торговли и обслуживания:
поликлиника на 200 пос./в день;
школа на 800 учеников;
2 детских сада на 390 мест;
многоэтажные паркинги;
многофункциональный центр с гаражом;
спортивный центр;
пункты милиции и выдачи детского питания, библиотека.
Новостройка расположена в километре от Пироговского водохранилища. На территории будут устроены прогулочные аллеи и велосипедные дорожки, ведущие к лесопарку, скверы с фонтанами и детские игровые площадки.
Местная инфраструктура развита слабо, но существуют перспективы на будущее. По соседству с ЖК "Императорские Мытищи" строится еще один масштабный проект — "Мытищи Lite". В его составе предусмотрены физкультурно-оздоровительный и торговый центры, школа и детсад. В поселке Болтино строится школа, детсад и медицинский центр. Из существующих объектов, в Болтино работает яхт-клуб и универсам, в Беляниново есть школа. Общественным транспортом можно доехать до Мытищ, где действует ТРК с аквапарком, ФОК "Олимп", несколько гимназий.
Транспортную доступность района обеспечивает Осташковское шоссе, проехав по которому 7 км можно добраться до МКАД. До станции метро "Медведково" курсирует автобус (около полчаса в пути).












Медведково
15 мин
за МКАДом



