Ваш регион: Москва г
+
Объявления / Продажа / Жилая / Москва г
Сортировка:
Продаётся 3-комн.квартира площадью 69.60 кв.м на 17 этаже 27 этажного дома (Корпус 14, секция 1) проекта ПИК Митинский лес. Светлый просторный подъезд на уровне земли, функциональная планировка, большие окна, с отделкой. «Митинский лес» возводится в Митино — районе, известном хорошей экологией. По соседству с домами протянулся большой парк. За 20 минут можно дойти от проекта до метро «Пятницкое шоссе», а за 30 — доехать на автомобиле до центра Москвы. Район, в котором строится проект, хорошо развит. Рядом школы, детские сады и поликлиники. За 11 минут можно доехать до гипермаркета «Глобус» и крупных фитнес-клубов. В культурном окружении квартала — музей Морского космического флота и Академгородок Митино, где дети могут познакомиться с наукой через игру. Инфраструктура проекта На территории квартала будет вся необходимая инфраструктура: школа для 1100 учеников и два детских сада — один из них, на 150 мест, уже открыт. Во дворах — благоустроенные зелёные парки с местами для отдыха, детскими и спортивными площадками. Через квартал протянется широкий пешеходный бульвар для прогулок на свежем воздухе. На первых этажах домов работают магазины, кафе и полезные сервисы. А для владельцев автомобилей предусмотрены подземные паркинги. Планировки В проекте «Митинский лес» широкий выбор планировок: от компактных и продуманных студий до просторных четырёхкомнатных квартир для большой семьи. Есть варианты с кухней-гостиной, гардеробной, постирочной и двумя санузлами. Для тех, кому важно дополнительное пространство, есть планировки с балконом или собственной лоджией. Квартиры сдаются с отделкой на выбор: готовая — для тех, кто хочет переехать сразу, или без отделки — чтобы сделать всё по-своему и воплотить самые смелые дизайнерские идеи. Артикул - 861117
Продаётся 3-комн.квартира площадью 73.60 кв.м на 8 этаже 10 этажного дома (Корпус 1.1.2, секция 2) проекта ПИК Строгино 360. Светлый просторный подъезд на уровне земли, функциональная планировка, большие окна. «Строгино 360» — флагманский проект ПИК в 20 минутах от центра Москвы, в одном из самых экологичных районов столицы. В 2027 году — к моменту заселения первых домов — в 10 минутах пешком от проекта откроется станция метро «Липовая роща». В квартале всё настроено на 360 градусов: квартиры с террасами и панорамными видами на лес и воду, спорт — от йоги до яхтинга — и деловой кластер, где будет создана комфортная среда для работы и бизнеса. Всего в 10 минутах от проекта расположен ТЦ «Вегас Сити» с десятками магазинов в интерьерах городских улиц, каток, кинотеатр, рестораны и аттракционы. Архитектура и гранд-лобби Архитектура квартала органично вписывается в окружающий ландшафт. В отделке используются натуральные материалы и спокойные цвета, которые дополняют природные пространства вокруг квартала. Специально для «Строгино 360» бюро разработало авторский дизайн гранд-лобби, где можно встретиться с близкими или партнёрами, поработать или поиграть с детьми. Для этого здесь появятся коворкинг, ресепшен, пространства для отдыха, игровая для детей и гостевой санузел. Инфраструктура проекта «Строгино 360» — больше чем жилой квартал. Здесь создана вся необходимая инфраструктура для комфортной и насыщенной жизни. Главной артерией станет пешеходный бульвар, длиной 3,4 км — с магазинами, кафе и продуманными пространствами для спорта и отдыха. Для детей в партнёрстве с «Фондом развития Физтех-школ» при поддержке МФТИ мы построим образовательный центр. Планировки В доминанте проекта — корпусе 1.2 — вы найдёте квартиры с террасами и живописными видами на на Москву-реку, Строгинский затон и Серебряный Бор. А в малоэтажных корпусах 1.1.1–1.1.3 создана уютная камерная атмосфера благодаря небольшому количеству квартир на этаже. Также здесь вы можете выбрать квартиру с системой умного дома. Артикул - 1050861
Продается 1-к квартира на 18-м этаже 24-этажного нового дома в корпусе 2 в ЖК «Павелецкая от Гранель».
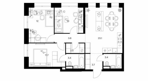
Продаётся 2-комн.квартира площадью 62.40 кв.м на 16 этаже 32 этажного дома (Корпус 1.1, секция 2) проекта ПИК Алтуфьевское 53. Светлый просторный подъезд на уровне земли, функциональная планировка, большие окна, с отделкой. «Алтуфьевское 53» — современный проект «Серии плюс» на северо-востоке Москвы. Рядом удобный выезд на Алтуфьевское шоссе, а оттуда — на ТТК и МКАД, так что дорога до центра Москвы на машине займёт 20 минут. До станции метро «Отрадное» можно доехать за 15 минут на транспорте или по тихим светлым улицам дойти пешком за 25 минут. Рядом с проектом уже есть детские сады, школы, магазины, кафе и рестораны. Для занятий спортом работает фитнес-клуб и бассейн, а для покупок и развлечений — ТЦ «Место встречи Байконур». Для прогулок и отдыха поблизости есть сквер с прудом, районный центр «Марс» с кинотеатром, парк «Отрадное» и усадьба «Свиблово». А до Ботанического сада и ВДНХ — 9 минут на машине. Архитектура и лобби Архитектурную концепцию квартала разработала российская мастерская М.А.М. В основе — искусная работа с формой зданий, разные цветовые решения для верхнего и нижнего этажа. Сверху преобладают лёгкие голубые и молочные оттенки, а нижние этажи окрашены в насыщенные терракотовый и серо-фиолетовый. На первых этажах домов — просторные и светлые лобби с дизайнерской отделкой. Здесь будут зоны ожидания, скоростные лифты, гостевые санузлы и колясочные. Инфраструктура проекта На территории квартала появятся два детских сада с бассейном и подземный паркинг. Всего в минуте ходьбы от проекта откроется школа для 1000 учеников. Во дворах мы построим уютные парки с местами для отдыха и детскими площадками. А на первых этажах домов появятся кафе, магазины и полезные сервисы. Планировки В проекте вы найдёте планировки для разных сценариев жизни: есть квартиры с мастер-спальнями и комнатами, разнесёнными по разным сторонам квартиры. Большие семьи оценят удобные планировки с постирочными и гардеробными. А для тех, кто ценит простор, мы подготовили квартиры с террасами, балконами и лоджиями. Артикул - 1003980
Продаётся 3-комн.квартира площадью 73.10 кв.м на 24 этаже 38 этажного дома (Корпус 1.1, секция 1) проекта ПИК Нарвин. Светлый просторный подъезд на уровне земли, функциональная планировка, большие окна, с отделкой. «Нарвин» — камерный квартал с продуманной архитектурой в зелёном районе на северо-западе Москвы. Всего в 10 минутах пешком — метро «Водный стадион», а в 20 минутах — МЦК «Коптево». Дорога на автомобиле до ТТК займёт 10 минут. Район хорошо развит: в шаговой доступности от проекта есть школы, детские сады, поликлиники, студии фитнеса и кафе. Всего в 5 минутах пешком от квартала есть крупный ТЦ «Водный стадион». За 8 минут можно дойти до Головинских прудов, за 10 минут — до Кронштадтского сквера, а за 15 минут — до парка Дружбы. Архитектура и лобби Архитектурную концепцию разработало бюро российское бюро «ГАФА». В проекте три здания, каждое обладает уникальным строгим силуэтом, созданным за счёт чередования цветов и форм. Дизайн проработан и внутри домов. На первых этажах — просторные и светлые лобби с дизайнерской отделкой. Здесь появятся зоны ожидания, скоростные лифты и помещение для хранения колясок и велосипедов. Инфраструктура На территории проекта появятся уютные дворы-парки с местами для отдыха, лавочками с разъёмами для зарядки под разные устройства, детскими и спортивными площадками. На первых этажах домов откроются магазины, кафе и другие сервисы. А для владельцев автомобилей предусмотрен подземный паркинг. Планировки В проекте вы найдёте квартиры с готовой отделкой и умными планировками: есть варианты с мастер-спальней, кухней-гостиной, двумя санузлами и гардеробной. Большим семьям понравятся квартиры со спальнями, которые разнесены по разные стороны гостиной. В проекте представлены разнообразные балконы: французские, открытые и закрытые. Есть планировки с угловыми окнами и окнами в пол с видами на Головинские пруды. Артикул - 979720
Продается 1-к квартира на 2-м этаже 28-этажного нового дома в корпусе 2 в ЖК «Дубровка от Гранель».
Продается 1-к квартира на 16-м этаже 24-этажного нового дома в корпусе 2 в ЖК «Павелецкая от Гранель».
Продается квартира-студия на 6-м этаже 24-этажного нового дома в корпусе 2 в ЖК «Павелецкая от Гранель».
Продается 2-к квартира на 8-м этаже 24-этажного нового дома в корпусе 2 в ЖК «Павелецкая от Гранель».
Продаётся 2-комн.квартира площадью 58.50 кв.м на 10 этаже 24 этажного дома (Корпус 3.5, секция 2) проекта ПИК Кавказский бульвар 51. Светлый просторный подъезд на уровне земли, функциональная планировка, большие окна, с отделкой. «Кавказский бульвар 51» — современный квартал в районе Царицыно на юге Москвы. До метро «Кантемировская» 17 минут пешком, а за 20 можно дойти до станции «Чертаново». В 10 минутах на машине — МКАД, в 11 минутах — Варшавское шоссе, а в 16 минутах — ТТК. В районе вокруг «Кавказского бульвара 51» есть всё для комфортной жизни: детские сады, школы, поликлиники, магазины и торговые центры. Девять минут на машине — и вы у музея-заповедника «Царицыно». До Аршиновского парка от проекта можно дойти пешком за 8 минут, а до парка «Сосенки» — за 13 минут. Архитектура и лобби Архитектурную концепцию корпусов «Серии плюс» разработало бюро «Сага». Доминантой проекта станет 32-этажное здание-скульптура, чья активная пластика с цветовыми вкраплениями приковывает взгляды. Другие корпуса поддерживают её образ и не теряются на фоне за счёт фасадных и цветовых решений. Дизайн проработан и внутри домов. На первых этажах — просторные и светлые лобби с дизайнерской отделкой. Здесь появятся зоны ожидания, кондиционеры, скоростные лифты и помещение для хранения колясок и велосипедов. Инфраструктура проекта На территории проекта появятся детский сад и школа. На первых этажах откроются магазины, кафе, салоны красоты и другие сервисы. А для владельцев автомобилей предусмотрены многоуровневый и подземные паркинги. В уютных дворах-парках есть места для отдыха и детские площадки. Через квартал протянется пешеходный бульвар, где приятно гулять, отдыхать на удобных скамейках и шезлонгах или играть в настольный теннис. Маленькие жители оценят современные детские площадки с каруселями, горками и лазательными комплексами. Для любителей спорта в квартале появится СпортПарк — большое пространство для командных игр и индивидуальных тренировок. Планировки Квартиры с умными планировками подойдут для любого сценария жизни: есть варианты с мастер-спальней, гардеробной и постирочной. Увеличенные окна дадут больше естественного света. А угловые окна и террасы позволят создать собственное уникальное пространство для работы или отдыха. Артикул - 998590
Новостройки на старте продаж

Реклама: adv@mapestate.ru

Редакция: info@mapestate.ru

О проекте

Контакты

Реклама на сайте

Правообладателям

X
Авторизуйтесь для этого действия
Нажимая на иконку социальной сети для регистрации или авторизации, я соглашаюсь с условиями использования сайта Mapestate.ru и подтверждаю, что ознакомился с политикой обработки персональных данных.
Отправить заявку
Заполните все обязательные поля
Вы не дали согласия на обработку персональных данных и рекламную рассылку
Вы не верно ввели код
Ваши данные отправлены
Нажимая кнопку «Отправить», я соглашаюсь с условиями использования сайта Mapestate.ru и подтверждаю, что ознакомился с политикой обработки персональных данных.