Ваш регион: Москва г
+
Объявления / Продажа / Жилая / Москва г
Сортировка:
Продаётся 3-комн.квартира площадью 80.90 кв.м на 4 этаже 10 этажного дома (Корпус 1.1.3, секция 3) проекта ПИК Строгино 360. Светлый просторный подъезд на уровне земли, функциональная планировка, большие окна, с отделкой. «Строгино 360» — флагманский проект ПИК в 20 минутах от центра Москвы, в одном из самых экологичных районов столицы. В 2027 году — к моменту заселения первых домов — в 10 минутах пешком от проекта откроется станция метро «Липовая роща». В квартале всё настроено на 360 градусов: квартиры с террасами и панорамными видами на лес и воду, спорт — от йоги до яхтинга — и деловой кластер, где будет создана комфортная среда для работы и бизнеса. Всего в 10 минутах от проекта расположен ТЦ «Вегас Сити» с десятками магазинов в интерьерах городских улиц, каток, кинотеатр, рестораны и аттракционы. Архитектура и гранд-лобби Архитектура квартала органично вписывается в окружающий ландшафт. В отделке используются натуральные материалы и спокойные цвета, которые дополняют природные пространства вокруг квартала. Специально для «Строгино 360» бюро разработало авторский дизайн гранд-лобби, где можно встретиться с близкими или партнёрами, поработать или поиграть с детьми. Для этого здесь появятся коворкинг, ресепшен, пространства для отдыха, игровая для детей и гостевой санузел. Инфраструктура проекта «Строгино 360» — больше чем жилой квартал. Здесь создана вся необходимая инфраструктура для комфортной и насыщенной жизни. Главной артерией станет пешеходный бульвар, длиной 3,4 км — с магазинами, кафе и продуманными пространствами для спорта и отдыха. Для детей в партнёрстве с «Фондом развития Физтех-школ» при поддержке МФТИ мы построим образовательный центр. Планировки В доминанте проекта — корпусе 1.2 — вы найдёте квартиры с террасами и живописными видами на на Москву-реку, Строгинский затон и Серебряный Бор. А в малоэтажных корпусах 1.1.1–1.1.3 создана уютная камерная атмосфера благодаря небольшому количеству квартир на этаже. Также здесь вы можете выбрать квартиру с системой умного дома. Артикул - 1050888
Продаётся 1-комн.квартира площадью 32.20 кв.м на 16 этаже 23 этажного дома (Корпус 1.1.1, секция 1) проекта ПИК Онежский вал. Светлый просторный подъезд на уровне земли, функциональная планировка, большие окна, с отделкой. «Онежский вал» — квартал «Серии плюс» с продуманной архитектурой в историческом районе Западное Дегунино на севере Москвы. До станции метро «Селигерская» можно дойти за 10 минут, а до МЦД «Моссельмаш» — 15 минут. Автомобилисты оценят удобный выезд на Дмитровское шоссе, до которого всего пара минут пути, а до МСД и СВХ — 10 минут. Район, в котором строится проект, хорошо развит и окружён парками. В шаговой доступности есть школы, детские сады и поликлиники. В 14 минутах пешком от проекта работают торговые центры. Рядом с кварталом несколько природных зон: 11 минут пешком до парка им. Святослава Фёдорова и 15 минут до Орловского сада. Архитектура и лобби Архитектура квартала навеяна северной природой: разновысотные здания повторяют живописные линии северных скал и высоких хвойных деревьев. Это отражено и в колористике — фасады окрашены в цвета серого гранита, сосновой коры и серебристой глади воды. Дизайн лобби на первых этажах домов выполнен в стиле современного минимализма. Для комфорта жителей и их гостей в лобби есть зона ожидания, быстрые тихие лифты и помещение для хранения колясок и велосипедов. Инфраструктура В проекте появится детский сад на 350 мест, школа для 800 учеников и современная поликлиника. А ещё четырёхэтажный физкультурный комплекс с бассейном и деловое пространство ЛАВИН воркплейс с современными офисами, пространствами для работы и ритейлом. Благоустройство в проекте навеяно северной природой. Через квартал протянется пешеходный бульвар для прогулок и отдыха на свежем воздухе. Во дворах будут ждать зелёные парки с местами для отдыха, детскими и спортивными площадками. На первых этажах домов — торговая аллея с магазинами, кафе и полезными сервисами. А для владельцев автомобилей построим двухуровневый подземный и два наземных паркинга. Планировки В «Онежском валу» широкий выбор планировок с мастер-спальнями с собственной ванной, просторными кухнями-гостиными, компактными кухнями-нишами и двумя санузлами. Для ценителей простора и обилия солнечного света есть квартиры с панорамными окнами в пол, террасами, открытыми, французскими и угловыми балконами. Артикул - 1039547
Продаётся 2-комн.квартира площадью 53.70 кв.м на 23 этаже 27 этажного дома (Корпус 4.3, секция 3) проекта ПИК Амурский парк. Светлый просторный подъезд на уровне земли, функциональная планировка, большие окна, с отделкой. «Амурский парк» — проект «Серии плюс» с видом на Измайловский парк. Квартал возводится на востоке Москвы, в 10 минутах пешком от станций метро «Черкизовская» и МЦК «Локомотив». Доехать от проекта на машине до ТТК или МКАД можно за 15 минут, а до Садового кольца — за 17 минут. В районе вокруг «Амурского парка» есть всё для комфортной жизни: в шаговой доступности школы, детские сады и поликлиника. Всего в 8 минутах от квартала находится уютный Сиреневый сад, а в 20 минутах — Детский Черкизовский парк. За 10 минут на автомобиле можно доехать до парка Лосиный остров. Архитектура и лобби Квартал от архитектурной мастерской М.А.М. органично дополняет городской ландшафт. Разновысотные корпуса в минималистичном стиле сочетают мягкие пластичные линии и строгие геометрические формы. Цветовая гамма фасадов — контраст терракотового и молочно-серого оттенков, которые создают атмосферу тепла и уюта. На первых этажах домов — просторные и светлые лобби с дизайнерской отделкой. Здесь появятся зоны ожидания, скоростные лифты и помещение для хранения колясок и велосипедов. Инфраструктура проекта На территории проекта появится детский сад с бассейном для 250 малышей. В уютных дворах-парках есть места для отдыха, игровые и спортивные площадки. На первых этажах домов откроются магазины, кафе и другие сервисы. А для владельцев автомобилей предусмотрен подземный паркинг. Планировки В проекте большой выбор планировок: есть варианты с мастер-спальней, гардеробной, постирочной и двумя санузлами. Балконы с оригинальными стеклянными ограждениями придадут вашей квартире уникальный стиль. Ещё в проекте можно выбрать квартиру с видом на Измайловский парк — вы сможете ежедневно наслаждаться красотами природы и заряжаться энергией. Артикул - 1020622
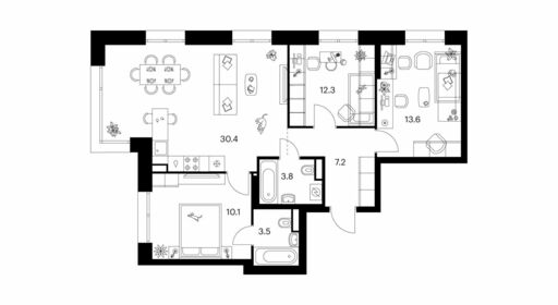
Продается 1-к квартира на 18-м этаже 30-этажного нового дома в корпусе 1 в ЖК «Нижегородская от Гранель».
Продаётся 2-комн.квартира площадью 61.26 кв.м на 2 этаже 32 этажного дома (Корпус 3.4, секция 4) проекта ПИК Квартал Мит. Светлый просторный подъезд на уровне земли, функциональная планировка, большие окна, с отделкой. «Квартал Мит» — проект «Серии плюс» в экологически чистом районе Митино, где по соседству расположен большой лесопарк, а с двух сторон протекают реки Сходня и Журавка. В 20 минутах пешком находится станция метро «Пятницкое шоссе», а за 10 минут на автомобиле можно доехать до МКАД. Район, в котором строится проект, хорошо развит. Рядом школы, детские сады и поликлиники. За 11 минут можно доехать до гипермаркета «Глобус» и крупных фитнес-клубов. В культурном окружении квартала — музей Морского космического флота и Академгородок Митино, где дети могут познакомиться с наукой через игру. Архитектура и лобби Архитектурную концепцию квартала разработало бюро «Слава+». Башня-доминанта и разновысотные корпуса с террасами формируют узнаваемый силуэт современного городского пространства. Терракотовые, белые и графитовые фасады корпусов создают сдержанный фон для башни-доминанты цвета красной охры. На первых этажах — просторные и светлые лобби с дизайнерской отделкой. Здесь появятся зоны ожидания, гостевой санузел, скоростные лифты и помещение для хранения колясок и велосипедов. Инфраструктура проекта На территории квартала появится детский сад на 235 мест. Во дворах-парках появятся игровые и спортивные площадки, зоны отдыха и зелёные лужайки, где можно устроить пикник. Вдоль домов протянется торговая аллея с магазинами, кафе и полезными сервисами, где можно заняться шопингом или устроить тёплый вечер в кругу близких. А для автовладельцев — двухуровневый подземный паркинг. Рядом с «Кварталом Мит» появится школа для 1100 учеников. Планировки В «Квартале Мит» широкий выбор квартир для разных сценариев жизни: есть варианты с мастер-спальней, кухней-гостиной, сквозным санузлом и гардеробной. Окна в пол, балконы и террасы наполнят квартиры светом и расширят пространство, а виды на лес и реки станут неотъемлемой частью вашего интерьера. Все квартиры в проекте с готовой отделкой. Артикул - 1034635
Продаётся 2-комн.квартира площадью 54.65 кв.м на 9 этаже 26 этажного дома (Корпус 3.2, секция 2) проекта ПИК Квартал Мит. Светлый просторный подъезд на уровне земли, функциональная планировка, большие окна, с отделкой. «Квартал Мит» — проект «Серии плюс» в экологически чистом районе Митино, где по соседству расположен большой лесопарк, а с двух сторон протекают реки Сходня и Журавка. В 20 минутах пешком находится станция метро «Пятницкое шоссе», а за 10 минут на автомобиле можно доехать до МКАД. Район, в котором строится проект, хорошо развит. Рядом школы, детские сады и поликлиники. За 11 минут можно доехать до гипермаркета «Глобус» и крупных фитнес-клубов. В культурном окружении квартала — музей Морского космического флота и Академгородок Митино, где дети могут познакомиться с наукой через игру. Архитектура и лобби Архитектурную концепцию квартала разработало бюро «Слава+». Башня-доминанта и разновысотные корпуса с террасами формируют узнаваемый силуэт современного городского пространства. Терракотовые, белые и графитовые фасады корпусов создают сдержанный фон для башни-доминанты цвета красной охры. На первых этажах — просторные и светлые лобби с дизайнерской отделкой. Здесь появятся зоны ожидания, гостевой санузел, скоростные лифты и помещение для хранения колясок и велосипедов. Инфраструктура проекта На территории квартала появится детский сад на 235 мест. Во дворах-парках появятся игровые и спортивные площадки, зоны отдыха и зелёные лужайки, где можно устроить пикник. Вдоль домов протянется торговая аллея с магазинами, кафе и полезными сервисами, где можно заняться шопингом или устроить тёплый вечер в кругу близких. А для автовладельцев — двухуровневый подземный паркинг. Рядом с «Кварталом Мит» появится школа для 1100 учеников. Планировки В «Квартале Мит» широкий выбор квартир для разных сценариев жизни: есть варианты с мастер-спальней, кухней-гостиной, сквозным санузлом и гардеробной. Окна в пол, балконы и террасы наполнят квартиры светом и расширят пространство, а виды на лес и реки станут неотъемлемой частью вашего интерьера. Все квартиры в проекте с готовой отделкой. Артикул - 1034274
Продаётся квартира-студия площадью 19.80 кв.м на 6 этаже 25 этажного дома (Корпус 18-20, секция 2) проекта ПИК Люблинский парк. Светлый просторный подъезд на уровне земли, функциональная планировка, большие окна, с отделкой. Жилой квартал «Люблинский парк» расположен на юго-востоке Москвы, в шаговой доступности от станции «Братиславская». На метро до центра ехать всего 30 минут. Также недалеко станция МЦД «Перерва», от которой можно уехать в Москву или в область. В проекте 54 жилых корпуса, три школы, семь детских садов, поликлиника. В районе есть все условия для комфортной жизни: торговые центры, школы, детские сады, поликлиники и спортивные центры. Рядом находятся усадьба Люблино, скверы и парки. Различные магазины, кафе и другие сервисы откроются на первых этажах, а на подземных будут паркинги с удобной навигацией. В зелёных дворах без автомобилей мы построим детские площадки и места для отдыха. А ещё «Люблинский парк» стал третьим проектом ПИК с большой игровой площадкой ПлейХаб, которая уже открылась между 1-м и 2-м блоками на безопасном расстоянии от дороги. Новое детское пространство «Остров» воплощает идею бесконечной игры. Ландшафт площадки — это ещё и игровой элемент, который помогает детям придумывать множество самых разнообразных игр. Здесь интересно детям разного возраста — от малышей до подростков. Жителям квартала Люблинский парк и их друзьям доступен проект ПИКСПОРТ — это бесплатные занятия с профессиональными тренерами. Тренировки по разным направлениям, например йога, фитнес, бег, проходят как в группе на улице рядом с домом, так и онлайн. Артикул - 660199
Продаётся квартира-студия площадью 31.50 кв.м на 16 этаже 32 этажного дома (Корпус 1.1, секция 4) проекта ПИК Алтуфьевское 53. Светлый просторный подъезд на уровне земли, функциональная планировка, большие окна, с отделкой. «Алтуфьевское 53» — современный проект «Серии плюс» на северо-востоке Москвы. Рядом удобный выезд на Алтуфьевское шоссе, а оттуда — на ТТК и МКАД, так что дорога до центра Москвы на машине займёт 20 минут. До станции метро «Отрадное» можно доехать за 15 минут на транспорте или по тихим светлым улицам дойти пешком за 25 минут. Рядом с проектом уже есть детские сады, школы, магазины, кафе и рестораны. Для занятий спортом работает фитнес-клуб и бассейн, а для покупок и развлечений — ТЦ «Место встречи Байконур». Для прогулок и отдыха поблизости есть сквер с прудом, районный центр «Марс» с кинотеатром, парк «Отрадное» и усадьба «Свиблово». А до Ботанического сада и ВДНХ — 9 минут на машине. Архитектура и лобби Архитектурную концепцию квартала разработала российская мастерская М.А.М. В основе — искусная работа с формой зданий, разные цветовые решения для верхнего и нижнего этажа. Сверху преобладают лёгкие голубые и молочные оттенки, а нижние этажи окрашены в насыщенные терракотовый и серо-фиолетовый. На первых этажах домов — просторные и светлые лобби с дизайнерской отделкой. Здесь будут зоны ожидания, скоростные лифты, гостевые санузлы и колясочные. Инфраструктура проекта На территории квартала появятся два детских сада с бассейном и подземный паркинг. Всего в минуте ходьбы от проекта откроется школа для 1000 учеников. Во дворах мы построим уютные парки с местами для отдыха и детскими площадками. А на первых этажах домов появятся кафе, магазины и полезные сервисы. Планировки В проекте вы найдёте планировки для разных сценариев жизни: есть квартиры с мастер-спальнями и комнатами, разнесёнными по разным сторонам квартиры. Большие семьи оценят удобные планировки с постирочными и гардеробными. А для тех, кто ценит простор, мы подготовили квартиры с террасами, балконами и лоджиями. Артикул - 1004431
Продаётся 2-комн.квартира площадью 49.81 кв.м на 2 этаже 32 этажного дома (Корпус 3.4, секция 4) проекта ПИК Квартал Мит. Светлый просторный подъезд на уровне земли, функциональная планировка, большие окна, с отделкой. «Квартал Мит» — проект «Серии плюс» в экологически чистом районе Митино, где по соседству расположен большой лесопарк, а с двух сторон протекают реки Сходня и Журавка. В 20 минутах пешком находится станция метро «Пятницкое шоссе», а за 10 минут на автомобиле можно доехать до МКАД. Район, в котором строится проект, хорошо развит. Рядом школы, детские сады и поликлиники. За 11 минут можно доехать до гипермаркета «Глобус» и крупных фитнес-клубов. В культурном окружении квартала — музей Морского космического флота и Академгородок Митино, где дети могут познакомиться с наукой через игру. Архитектура и лобби Архитектурную концепцию квартала разработало бюро «Слава+». Башня-доминанта и разновысотные корпуса с террасами формируют узнаваемый силуэт современного городского пространства. Терракотовые, белые и графитовые фасады корпусов создают сдержанный фон для башни-доминанты цвета красной охры. На первых этажах — просторные и светлые лобби с дизайнерской отделкой. Здесь появятся зоны ожидания, гостевой санузел, скоростные лифты и помещение для хранения колясок и велосипедов. Инфраструктура проекта На территории квартала появится детский сад на 235 мест. Во дворах-парках появятся игровые и спортивные площадки, зоны отдыха и зелёные лужайки, где можно устроить пикник. Вдоль домов протянется торговая аллея с магазинами, кафе и полезными сервисами, где можно заняться шопингом или устроить тёплый вечер в кругу близких. А для автовладельцев — двухуровневый подземный паркинг. Рядом с «Кварталом Мит» появится школа для 1100 учеников. Планировки В «Квартале Мит» широкий выбор квартир для разных сценариев жизни: есть варианты с мастер-спальней, кухней-гостиной, сквозным санузлом и гардеробной. Окна в пол, балконы и террасы наполнят квартиры светом и расширят пространство, а виды на лес и реки станут неотъемлемой частью вашего интерьера. Все квартиры в проекте с готовой отделкой. Артикул - 1034629
Продаётся 3-комн.квартира площадью 78.50 кв.м на 7 этаже 25 этажного дома (Корпус 18-20, секция 1) проекта ПИК Люблинский парк. Светлый просторный подъезд на уровне земли, функциональная планировка, большие окна, с отделкой. Жилой квартал «Люблинский парк» расположен на юго-востоке Москвы, в шаговой доступности от станции «Братиславская». На метро до центра ехать всего 30 минут. Также недалеко станция МЦД «Перерва», от которой можно уехать в Москву или в область. В проекте 54 жилых корпуса, три школы, семь детских садов, поликлиника. В районе есть все условия для комфортной жизни: торговые центры, школы, детские сады, поликлиники и спортивные центры. Рядом находятся усадьба Люблино, скверы и парки. Различные магазины, кафе и другие сервисы откроются на первых этажах, а на подземных будут паркинги с удобной навигацией. В зелёных дворах без автомобилей мы построим детские площадки и места для отдыха. А ещё «Люблинский парк» стал третьим проектом ПИК с большой игровой площадкой ПлейХаб, которая уже открылась между 1-м и 2-м блоками на безопасном расстоянии от дороги. Новое детское пространство «Остров» воплощает идею бесконечной игры. Ландшафт площадки — это ещё и игровой элемент, который помогает детям придумывать множество самых разнообразных игр. Здесь интересно детям разного возраста — от малышей до подростков. Жителям квартала Люблинский парк и их друзьям доступен проект ПИКСПОРТ — это бесплатные занятия с профессиональными тренерами. Тренировки по разным направлениям, например йога, фитнес, бег, проходят как в группе на улице рядом с домом, так и онлайн. Артикул - 604672
Новостройки на старте продаж

Реклама: adv@mapestate.ru

Редакция: info@mapestate.ru

О проекте

Контакты

Реклама на сайте

Правообладателям

X
Авторизуйтесь для этого действия
Нажимая на иконку социальной сети для регистрации или авторизации, я соглашаюсь с условиями использования сайта Mapestate.ru и подтверждаю, что ознакомился с политикой обработки персональных данных.
Отправить заявку
Заполните все обязательные поля
Вы не дали согласия на обработку персональных данных и рекламную рассылку
Вы не верно ввели код
Ваши данные отправлены
Нажимая кнопку «Отправить», я соглашаюсь с условиями использования сайта Mapestate.ru и подтверждаю, что ознакомился с политикой обработки персональных данных.